Titel Logo
Oberzent aktuell
Ausgabe 49/2022
Amtliche Bekanntmachungen
Zurück zur vorigen Seite
Zurück zur ersten Seite der aktuellen Ausgabe

Bauleitplanung der Stadt Oberzent

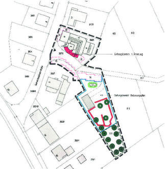
Bebauungsplan „Gerhart-Hauptmann-Straße 9, 1. Änderung“ gem. § 13 a BauGB als vorhabenbezogener B.-Plan gem. § 12 BauGB

hier: Beteiligung der Öffentlichkeit gem. § 3 (2) BauGB

In seiner Sitzung am 5. Dezember 2022 stellte der Magistrat der Stadt Oberzent den vorliegenden Planentwurf zur 1. Änderung des Bebauungsplanes für die Erweiterung der Cafeteria fest und hat beschlossen, vor Einleitung des förmlichen Verfahrens die Anhörung der Öffentlichkeit und die Beteiligung der Träger öffentlicher Belange und Fachbehörden nach §§ 3 (2) und 4 (2) BauGB durchzuführen.

Anlass der Planung ist die Erweiterung der Cafeteria zu einem Speiseraum, um die geregelte Versorgung der Tagespatienten zu ermöglichen. Der Anbau erfolgt niveaugleich zur Cafeteria und wird auf Stahlrohr-Rundstützen freistehend aufgeständert und im bepflanzten Böschungsbereich gegründet. Der Baukörper wird in Holzrahmen-Bauweise erstellt, das flach geneigte Dach als Foliendach erweitert. Die Fassade wird in gleichformatigen, 3-fach verglasten Elementen mit Raffstoren ausgebildet. Die technische Versorgung wird an den Bestand angeschlossen.

Hierdurch wird bekanntgemacht, dass der Planentwurf des B.-Planes „Gerhart-Hauptmann-Straße 9, 1. Änderung“ mit Begründung auf die Dauer eines Monats, und zwar vom 19.12.2022 bis 24.02.2023 im Rathaus der Stadt Oberzent, Verwaltungsstandort Rothenberg, Hauptstraße 23, 64760 Oberzent, Bauverwaltung, Hochbau und Stadtentwicklung, öffentlich ausgelegt wird.

Öffnungszeiten: Montag von 8.30 bis 12.00 Uhr und 13.30 bis 18.00 Uhr, Dienstag, Donnerstag und Freitag von 8.30 Uhr bis 12.00 Uhr.

Während der Auslegung kann sich die Öffentlichkeit gem. § 3 (2) BauGB über die allgemeinen Ziele und Zwecke sowie die wesentlichen Auswirkungen der Planung unterrichten. Der Öffentlichkeit wird Gelegenheit zur Äußerung und Erörterung gegeben. Die Äußerungen können schriftlich eingereicht oder bei der Stadtverwaltung mündlich zu Protokoll gegeben werden.

Oberzent, 9. Dezember 2022

Magistrat der Stadt Oberzent

Kehrer, Bürgermeister