Titel Logo
mossautal aktuell
Ausgabe 16/2025
Amtliche Bekanntmachungen
Zurück zur vorigen Seite
Zurück zur ersten Seite der aktuellen Ausgabe

Bekanntmachung der Gemeinde Mossautal zum Geltungsbereich des Flächennutzungsplans und des Bebauungsplans

Vollzug des Baugesetzbuch in der Fassung der Bekanntmachung vom 3. November 2017 (BGBl. I S. 3634), das zuletzt durch Artikel 3 des Gesetzes vom 20. Dezember 2023 (BGBl. 2023 I Nr. 394) geändert wurde.

Bauleitplanung der Gemeinde Mossautal

-

6. Teiländerung "Freiflächenphotovoltaik" des Flächennutzungsplanes,

-

Bebauungsplan "Sondernutzungsgebiet Photovoltaikanlage Unter-Mossau 2"

Hier: Frühzeitige Beteiligung der Öffentlichkeit (Öffentliche Auslegung) gemäß § 3 Abs. 1 BauGB

Die Gemeindevertretung der Gemeinde Mossautal hat in ihrer Sitzung am 11.11.2024 den Aufstellungsbeschluss gemäß § 2 Abs. 1 BauGB in der Fassung der Bekanntmachung vom 03.11.2017 (BGBl. I S. 3634), in der Bekanntmachung der Neufassung des Baugesetzbuches vom zuletzt geändert durch Art. 3 G v. 20.12.2023 I 394 für die:

-

6. Teiländerung "Freiflächenphotovoltaik" des Flächennutzungsplanes,

-

Bebauungsplan "Sondernutzungsgebiet Photovoltaikanlage Unter-Mossau 2"

beschlossen.

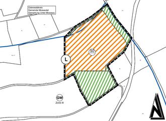
Der Änderungsbereich des Flächennutzungsplanes sowie der Geltungsbereich des Bebauungsplanes kann dem nachfolgenden Lageplan entnommen werden und hat eine Größe von ca. 8,4 ha. Es ist ein Teil des Grundstückes in der Gemarkung Unter-Mossau, Flur 17, mit der Flurstücksnummer 18 betroffen.

Am 11.11.2024 wurde der Vorentwurf sowohl der 6. Teiländerung "Freiflächenphotovoltaik" des Flächennutzungsplanes als auch des Bebauungsplanes "Sondernutzungsgebiet Photovoltaikanlage Unter-Mossau 2" in der Gemeindevertretung angenommen und die jeweilige Durchführung des frühzeitigen Beteiligungsverfahrens gemäß § 3 Abs.1 BauGB und § 4 Abs.1 BauGB beschlossen.

Die Öffentlichkeit kann sich über die allgemeinen Ziele und Zwecke sowie die wesentlichen Auswirkungen der Planung im Rahmen der öffentlichen Auslegung informieren und zur Planung äußern.

Die frühzeitige Beteiligung der Öffentlichkeit gemäß § 3 Abs. 1 BauGB zum Vorentwurf des Flächennutzungsplanes erfolgt in der Zeit vom 22.04.2025 bis einschließlich dem 30.05.2025 arbeitstägig von montags bis freitags beim Gemeindevorstand der Gemeinde Mossautal, Unter-Mossau, Ortsstraße 124, 64756 Mossautal jeweils Montags – Freitags von 8:00h bis 12:00h sowie Montags von 14:00h – 18:00h.

Gleichzeitig besteht die Möglichkeit sich die Unterlagen unter folgendem Link herunterzuladen und anzusehen:

https://mossautal.de/bekanntmachungen/

Stellungnahmen können während der Auslegungsfrist schriftlich eingereicht oder zur Niederschrift bei der Gemeindevertretung der Gemeinde Mossautal vorgebracht werden.

Die fristgerecht abgegebenen Stellungnahmen werden von der Gemeindevertretung der Gemeinde Mossautal geprüft. Das Ergebnis der Prüfung wird mitgeteilt.

Gleichzeitig mit der Offenlage erfolgt gemäß § 4 Abs. 1 BauGB die frühzeitige Beteiligung der Behörden und der sonstigen Träger öffentlicher Belange sowie der Nachbargemeinden gem. § 2 Abs.2 BauGB.

Mossautal, den 14.04.2025
Dietmar Bareis
Bürgermeister

Geltungsbereich des Flächennutzungsplans und des Bebauungsplans

6. Teiländerung "Freiflächenphotovoltaik" des Flächennutzungsplanes:

Bebauungsplan "Sondernutzungsgebiet Photovoltaikanlage Unter-Mossau 2"