Titel Logo
Siegsdorfer Gemeindekurier
Ausgabe 10/2024
Amtliche Bekanntmachungen
Zurück zur vorigen Seite
Zurück zur ersten Seite der aktuellen Ausgabe

Bauamt

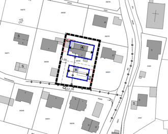
(Auszug, nicht maßstäblich)

7. Änderung des Bebauungsplanes „Hörgering“ im Bereich der Rabensteinstraße als Bebauungsplan der Innenentwicklung gem. § 13a BauGB; Bekanntmachung des Aufstellungsbeschlusses gem. § 2 Abs. 1 S. 2 BauGB und Bekanntmachung über die Beteiligung der Öffentlichkeit gem. § 3 Abs. 2 BauGB

Der Gemeinderat hat in seiner Sitzung am 08.10.2024 die Aufstellung der 7. Änderung des Bebauungsplanes „Hörgering" im Bereich der Rabensteinstraße beschlossen. Der Aufstellungsbeschluss wird hiermit, gem. § 2 Abs. 1 S. 2 BauGB, öffentlich bekannt gemacht. Die Bebauungsplanänderung wird im beschleunigten Verfahren nach § 13a BauGB ohne Durchführung einer Umweltprüfung nach § 2 Abs. 4 BauGB aufgestellt, da durch die Maßnahme der Innenentwicklung keine erheblichen Umweltauswirkungen zu befürchten sind.

Ziel der Bebauungsplanänderung ist die innerörtliche Nachverdichtung zugunsten von Wohnraum im Rahmen einer geordneten städtebaulichen Entwicklung zu ermöglichen. Dies entspricht den planerischen Vorstellungen der Gemeinde und den Grundsätzen der Landes- und Regionalplanung.

Der Geltungsbereich der vorliegenden Bebauungsplanänderung befindet sich im südlichen Gemeindegebiet, im Ortsteil Hörgering an der Rabensteinstraße. Der Änderungsbereich umfasst das Grundstück mit der Flur Nr. 242/22 der Gemarkung Eisenärzt und ist ca. 1.140 m² groß. Der Lageplan vom 04.10.2024, welcher die Abgrenzung des räumlichen Geltungsbereichs der Bebauungsplanänderung enthält, ist Bestandteil des Aufstellungsbeschlusses.

Das Verfahren wird nun mit der Beteiligung der Öffentlichkeit gemäß § 3 Abs. 2 BauGB fortgeführt. Die Beteiligung der Träger öffentlicher Belange und der sonstigen Behörden gemäß § 4 Abs. 2 BauGB erfolgt parallel.

Zu diesem Zweck sind der Inhalt dieser Bekanntmachung, der Entwurf des Bebauungsplanes inklusive des räumlichen Geltungsbereichs sowie die Begründung im Internet auf www.rathaus-siegsdorf.de unter der Rubrik „Wirtschaft und Bauen“ – „Bau- und Gewerbeflächen“ – „Bauleitplanung“

vom 28. Oktober 2024 bis einschließlich 29. November 2024,

veröffentlicht. Scannen Sie mit Ihrem Smartphone diesen QR-Code, um direkt auf die Internetseite zu gelangen:

Während der oben genannten Veröffentlichungsfrist können Sie Stellungnahmen zu der Planung abgeben. Diese sollen elektronisch an bauleitplanung@siegsdorf.bayern.de übermittelt werden.

Bei Bedarf können Stellungnahmen aber auch auf anderem Wege, in Textform oder während der Öffnungszeiten des Rathauses zur Niederschrift, abgegeben werden.

Nicht fristgerecht abgegebene Stellungnahmen können bei der Beschlussfassung über den Bauleitplan unberücksichtigt bleiben, wenn die Gemeinde den Inhalt nicht kannte und nicht hätte kennen müssen und deren Inhalt für die Rechtmäßigkeit des Bauleitplanes nicht von Bedeutung ist.

Zusätzlich liegen die Unterlagen im Rathaus der Gemeinde im Vorzimmer der Bereichs - Planen und Bauen -, Rathausplatz 1, 83313 Siegsdorf, während Öffnungszeiten:

Montag bis Freitag von 8.00 bis 12.00 Uhr, Donnerstag zusätzlich von 14.00 bis 18.00 Uhr

öffentlich aus.

Datenschutz:

Die Verarbeitung personenbezogener Daten erfolgt auf der Grundlage der Art. 6 Abs. 1 Buchst. e (DSGVO) i.V. mit § 3 BauGB und dem BayDSG. Sofern Sie Ihre Stellungnahme ohne Absenderangaben abgeben, erhalten Sie keine Mitteilung über das Ergebnis der Prüfung. Weitere Informationen entnehmen Sie bitte dem Formblatt „Datenschutzrechtliche Informationspflichten im Bauleitplanverfahren“ das ebenfalls öffentlich ausliegt.

Siegsdorf, 11.10.2024

Gemeinde Siegsdorf

gez. Kamm, 1. Bürgermeister

III-610-02/34-Dah