Titel Logo
Siegsdorfer Gemeindekurier
Ausgabe 2/2026
Amtliche Bekanntmachungen
Zurück zur vorigen Seite
Zurück zur ersten Seite der aktuellen Ausgabe

Bauamt

Vollzug des Baugesetzbuches (BauGB); Aufstellung des Bebauungsplanes „Siegsdorf-Öd-Ost“ mit integriertem Grünordnungsplan im beschleunigten Verfahren nach § 13a BauGB ohne Durchführung einer Umweltprüfung; Bekanntmachung des Satzungsbeschlusses und Inkrafttreten des Bebauungsplanes gem. § 10 Abs. 3 BauGB

Die Gemeinde Siegsdorf hat für die Aufstellung des Bebauungsplanes „Siegsdorf-Öd-Ost“ das nach dem Baugesetzbuch (BauGB) vorgeschriebene Verfahren durchgeführt. Das Verfahren wurde nach § 13a BauGB im beschleunigten Verfahren ohne Durchführung einer Umwelt-prüfung nach § 2 Abs. 4 BauGB geführt. Der Gemeinderat hat in seiner Sitzung vom 09.12.2025 den Bebauungsplan gemäß § 10 Abs. 1 BauGB in der Fassung vom 01.09.2025 nebst Begründung gleichen Datums als Satzung beschlossen. Dieser Beschluss wird hiermit gemäß § 10 Abs. 3 des BauGB ortsüblich bekannt gemacht.

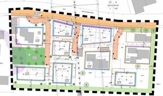
Das Plangebiet liegt östlich des Ortsteiles Öd, südlich der Bundesstraße B 306, zwischen den Anwesen Deutsche Alpenstraße 16 und 24. Der Geltungsbereich ist der nachfolgenden Plandarstellung zu entnehmen.

Ziel der Planung ist eine geordnete Entwicklung eines Wohngebietes durch moderate Nachverdichtung und Ortsrandeingrünung. Das Ortsbild der Gemeinde Siegsdorf soll gewahrt bleiben. Vorgesehen ist ein Allgemeines Wohngebiet gem. § 4 Baunutzungsverordnung (BauNVO). So sieht es auch der bestehende Flächennutzungsplan der Gemeinde Siegsdorf (5. Änderung von 1995) vor.

Mit dieser Bekanntmachung tritt der Bebauungsplan „Siegsdorf-Öd-Ost“ in Kraft. Der Bebauungsplan einschließlich Begründung kann im Rathaus der Gemeinde im Bereich - Planen und Bauen -, Rathausplatz 1, 83313 Siegsdorf, Montag bis Freitag von 8:00 bis 12:00 Uhr, Donnerstag, zusätzlich von 14:00 bis 18:00 Uhr eingesehen werden. Über den Inhalt wird auf Verlangen Auskunft gegeben.

Hinweise:

Auf die Voraussetzungen für die Geltendmachung der Verletzung von Verfahrens- und Formvorschriften und von Mängeln der Abwägung sowie die Rechtsfolgen des § 215 Abs. 1 BauGB wird hingewiesen. Unbeachtlich werden demnach

  1. eine nach § 214 Abs. 1 S. 1 Nr. 1 bis 3 BauGB beachtliche Verletzung der dort bezeichneten Verfahrens- und Formvorschriften,
  2. eine unter Berücksichtigung des § 214 Abs. 2 BauGB beachtliche Verletzung der Vorschriften über das Verhältnis des Bebauungsplans und des Flächennutzungsplans,
  3. nach § 214 Abs. 3 S. 2 BauGB beachtliche Mängel des Abwägungsvorgangs und
  4. nach § 214 Abs. 2a BauGB im beschleunigten Verfahren beachtliche Fehler,

wenn sie nicht innerhalb eines Jahres seit Bekanntmachung des Bebauungsplans schriftlich gegenüber der Gemeinde geltend gemacht worden sind; Der Sachverhalt, der die Verletzung oder den Mangel begründen soll, ist darzulegen. Außerdem wird auf die Vorschriften des § 44 Abs. 3 Satz 1 und 2 sowie Abs. 4 BauGB hingewiesen. Danach erlöschen Entschädigungsansprüche für nach den §§ 39 bis 42 BauGB eingetretene Vermögens-nachteile, wenn nicht innerhalb von drei Jahren nach Ablauf des Kalenderjahres, in dem die Vermögensnachteile eingetreten sind, die Fälligkeit des Anspruches herbeigeführt wird.

Siegsdorf, 09.01.2026
Gemeinde Siegsdorf
gez. Kamm, 1. Bürgermeister
III-610-02/75-Dah