Titel Logo
Siegsdorfer Gemeindekurier
Ausgabe 3/2025
Amtliche Bekanntmachungen
Zurück zur vorigen Seite
Zurück zur ersten Seite der aktuellen Ausgabe

Bauamt

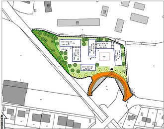
(Auszug, nicht maßstabsgerecht)

Westlich des Buchenwaldes und unweit der Autobahnauffahrt „Traunstein / Siegsdorf-Ost“ (112), wurde ein möglicher Standort gefunden, auf dem das BRK seinen zusätzlichen Flächenbedarf für Rettungswache, Bereitschaft, Katastrophenschutz, Zentrum für Fort- und Weiterbildung, Kreiswasserwacht, Kreisbereitschaft Kreisjugendrotkreuz und entsprechende Unterkünfte einschließlich notwendiger Stellplätze abbilden kann.

Ein Bebauungsplan für diesen Bereich liegt nicht vor. Für die bedarfsgerechte, städtebauliche Entwicklung und Ordnung der Gemeinde Siegsdorf ist eine Bauleitplanung erforderlich. Ziel der Bauleitplanung ist die Festsetzung eines Sondergebietes nach § 11 BauNVO im Bebauungsplan. Die Zweckbestimmung ist als „Rot-Kreuz-Zentrum“ festgelegt.

Die 22. Änderung des Flächennutzungsplanes der Gemeinde Siegsdorf erfolgt im Parallelverfahren.

Der Gemeinderat hat in seiner Sitzung vom 24.06.2024 die Aufstellung des Bebauungsplanes „Buchenwald-West“ beschlossen. Dieser Beschluss wird hiermit öffentlich bekannt gemacht.

Geltungsbereich

Der Geltungsbereich umfasst die Fl. Nr. 130/0, 130/1 (T), 113/2 (T) und 83/0 (T) je der Gemarkung Obersiegsdorf. Im Norden des Plangebietes liegt, getrennt durch den beschränkt öffentlichen „Brunnenweg“ nach Heutau, die Autobahnmeisterei. Westlich schließt die B 306 an, deren Einschleifbereich mit in den Geltungsbereich aufgenommen wurde.

Die genauen Änderungsbereiche sind dem Plan zu entnehmen.

Der Gemeinderat hat in der Sitzung vom 18.03.2025 den Entwurf zum Bebauungsplan „Buchenwald-West“ gebilligt. Das Verfahren wird nun mit der frühzeitigen Beteiligung der Öffentlichkeit gemäß § 3 Abs. 1 BauGB fortgeführt. Die frühzeitige Beteiligung der Träger öffentlicher Belange und der sonstigen Behörden gemäß § 4 Abs. 1 BauGB erfolgt parallel.

Zu diesem Zweck sind der Inhalt dieser Bekanntmachung, der Entwurf des Bebauungsplanes sowie die Begründung inklusive Umweltbericht und sonstigen auszulegenden Unterlagen in der Zeit

vom 31. März 2025 bis einschließlich 09. Mai 2025,

im Internet veröffentlicht und sind auf der Internetseite der Gemeinde

www.rathaus-siegsdorf.de unter der Rubrik „Wirtschaft und Bauen“ – „Bau- und Gewerbeflächen“ – „Bauleitplanung“

bzw. der Adresse https://www.rathaus-siegsdorf.de/wirtschaft-und-bauen/bau-und-gewerbeflaechen/bauleitplanung

und über das Landesportal Bayern https://geoportal.bayern.de/bauleitplanungsportal - Siegsdorf - Bauleitplanungsseite

einsehbar.

Es wird auf folgendes hingewiesen:

1.

Während der Dauer der Veröffentlichungsfrist können Stellungnahmen abgegeben werden.

2.

Stellungnahmen sollen elektronisch, per Mail an bauleitplanung@siegsdorf.bayern.de übermittelt werden, können bei Bedarf aber auch auf anderem Weg abgegeben werden.

3.

Nicht fristgerecht abgegebene Stellungnahmen können bei der Beschlussfassung über den Bebauungsplan unberücksichtigt bleiben.

4.

Neben der Veröffentlichung im Internet liegen die Unterlagen in Papierform im Rathaus der Gemeinde im Vorzimmer der Bereichs - Planen und Bauen -, 1. OG, Rathausplatz 1, 83313 Siegsdorf, während folgender Zeiten:

Montag bis Freitag von 8.00 bis 12.00 Uhr, Donnerstag zusätzlich von 14.00 bis 18.00 Uhr öffentlich aus.

Datenschutz:

Die Verarbeitung personenbezogener Daten erfolgt auf der Grundlage der Art. 6 Abs. 1 Buchst. e (DSGVO) i.V. mit § 3 BauGB und dem BayDSG. Sofern Sie Ihre Stellungnahme ohne Absenderangaben abgeben, erhalten Sie keine Mitteilung über das Ergebnis der Prüfung. Weitere Informationen entnehmen Sie bitte dem Formblatt „Datenschutzrechtliche Informationspflichten im Bauleitplanverfahren“ das ebenfalls öffentlich ausliegt.

Siegsdorf, 19.03.2025
Gemeinde Siegsdorf
gez. Kamm, 1. Bürgermeister
III-610-02/77-Lin