Titel Logo
Siegsdorfer Gemeindekurier
Ausgabe 8/2025
Amtliche Bekanntmachungen
Zurück zur vorigen Seite
Zurück zur ersten Seite der aktuellen Ausgabe

Bauamt

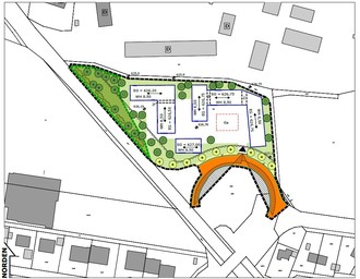
(Auszug, nicht maßstabsgetreu)

Der Gemeinderat hat in seiner Sitzung vom 05.08.2025 den Entwurf zur Neuaufstellung des Bebauungsplanes „Buchenwald-West“ gebilligt.

Ziel der Bauleitplanung ist die Festsetzung eines Sondergebietes nach § 11 BauNVO im Bebauungsplan. Die Zweckbestimmung ist als „Rot-Kreuz-Zentrum“ festgelegt. Die 22. Änderung des Flächennutzungsplanes der Gemeinde Siegsdorf erfolgt im Parallelverfahren.

Der Geltungsbereich umfasst die Fl. Nr. 130/0, 130/1 (T), 113/2 (T) und 83/0 (T) je der Gemarkung Obersiegsdorf. Im Norden des Plangebietes liegt, getrennt durch den beschränkt öffentlichen „Brunnenweg“ nach Heutau, die Autobahnmeisterei. Westlich schließt die B 306 an, deren Einschleifbereich mit in den Geltungsbereich aufgenommen wurde. Der genaue Geltungsbereich ist dem beigefügten Planauszug zu entnehmen.

Das Verfahren wird nun mit der förmlichen Beteiligung der Öffentlichkeit gemäß § 3 Abs. 2 BauGB fortgeführt. Die förmliche Beteiligung der Träger öffentlicher Belange und der sonstigen Behörden gemäß § 4 Abs. 2 BauGB erfolgt parallel.

Zu diesem Zweck sind der Inhalt dieser Bekanntmachung, der Planentwurf der Neuaufstellung des Bebauungsplanes „Buchenwald-West“ sowie die Begründung mit Umweltbericht und die nach Einschätzung der Gemeinde wesentlichen umweltbezogenen Stellungnahmen in der Zeit

vom 01. September 2025 bis einschließlich 06. Oktober 2025

im Internet veröffentlicht und sind auf:

  1. www.rathaus-siegsdorf.de unter der Rubrik „Wirtschaft und Bauen“ – „Bau- und Gewerbeflächen“ – „Bauleitplanung“
  2. bzw. der Adresse https://www.rathaus-siegsdorf.de/wirtschaft-und-bauen/bau-und-gewerbeflaechen/bauleitplanung
  3. und über das Landesportal Bayern https://geoportal.bayern.de/bauleitplanungsportal – Siegsdorf – Bauleitplanungsseite

einsehbar.

Folgende Arten umweltbezogener Informationen sind verfügbar:

Schutzgut Mensch, seine Gesundheit, Bevölkerung

  • Umweltbericht mit Angaben zu Lärm, Licht, Erholung und siedlungsnahem Freiraum vom 26.06.2025
  • Prognose und Beurteilung der von der Planung verursachten Geräuschimmissionen (Gewerbegeräusche, Schallemissionen des Rettungszentrums, Verkehrsgeräusche) im Umfeld, Schalltechnische Untersuchung, Stand 24.07.2024
  • Stellungnahmen mit Angaben zu Immissionsschutz, Gewerbegeräuschen, Lärmbelastung durch Rettungsfahrzeuge und Martinshörner, Verkehrs- und Straßenlärm, Lichtimmissionen

Schutzgut Tiere und Pflanzen

  • Umweltbericht mit Angaben zu Schutzgebieten, Vögeln, Fledermäusen, Flora und Fauna, Naturräumliche Einordnung, Voralpines Moor- und Hügelland, Alpenvorland, Biosphärenreservate, NATURA 2000, FFH-Gebiete und europäische Vogelschutzgebiete, Naturschutzgebiete, Landschaftsschutzgebiete, geschützte Landschaftsbestandteile, Biotoptypen und Lebensräume, Baufeldräumung, Baumfällungen, Ausgleichsflächen vom 26.06.2025
  • Naturschutzfachliche Angaben zur artenschutzrechtlichen Vorprüfung, Stand 06.08.2024
  • Stellungnahmen mit Angaben zu artenschutzfachlichen Belangen, Artenschutz, Eingriff in Natur und Landschaft, Naturgefahren, Artenschutz, Gebietsschutz

Schutzgut Fläche, Boden und Wasser

  • Umweltbericht mit Angaben zu Fläche, Versiegelung, Freifläche, Zerschneidung, Nutzflächen, Boden als Lebensraum, Naturhaushalt, Bodenfunktionen, Bodenschichten, Flächenverbrauch, Fließ- und Oberflächenwasser, Hochwassergefahren, Niederschlagswasserbeseitigung, Hydrogeologien, Wasserschutzgebiete, Überschwemmungsgebiete, Grundwasservom 26.06.2025
  • Geotechnische Grobbewertung der Bebaubarkeit der Flächen, Geotechnischer Bericht, Stand 13.01.2025
  • Stellungnahmen mit Angaben zu Natur und Landschaft, Artenschutz, naturschutzfachlichem Ausgleich, Landwirtschaft, Bergbau, Abwasserbeseitigung, Grundwasser, Oberflächengewässern, Überschwemmungssituation, Starkniederschläge, Abwasserbeseitigung, Niederschlagswasser, Regenwassernutzung, Klimawandel, Flächenversiegelung, Ressourcenverbrauch, Eingriff in Natur und Landschaft, Altlasten, Wasserwirtschaft, Hochwasserschutz, Entwässerung, Bodenschutz, Grünordnung

Schutzgut Klima und Luft

  • Umweltbericht mit Angaben zu Lufthygiene, Flächenaufheizung, Schadstoffemissionen vom 26.06.2025
  • Stellungnahmen mit Angaben zu Klimaänderung, Erneuerbare Energie

Schutzgut Orts- und Landschaftsbild, Kultur und Sachgüter

  • Umweltbericht mit Angaben zur charakteristischen landschaftlichen Eigenart, Topografie, Landschaftsbildprägende Elemente, Bau- und Bodendenkmäler vom 26.06.2025
  • Stellungnahmen mit Angaben zu Baugestaltung (Höhen, Fassaden- und Dachgestaltung), Denkmalschutz

Sonstige umweltrelevante Informationen

  • Umweltbericht: Die umweltbezogenen Informationen zu den Schutzgütern Boden, Wasser, Fläche, Klima, Luft, Mensch, Tiere und Pflanzen, Ortsbild, Kultur und Sachgüter sowie ihren Wechselwirkungen untereinander werden zusammengefasst und bewertet. Darüber hinaus findet sich hier eine Bestandsaufnahme und Prognose des Umweltzustandes mit Ausführungen zu den in Fachplanungen festgelegten Zielen des Umweltschutzes sowie Informationen zum Eingriff und zum Ausgleich der nachteiligen Auswirkungen auf die verschiedenen Schutzgüter (Ausgleichsflächenbilanzierung mit Ausgleichsmaßnahmen).

Es wird auf folgendes hingewiesen:

  1. Während der Dauer der Veröffentlichungsfrist können Stellungnahmen abgegeben werden.
  2. Stellungnahmen sollen elektronisch, per Mail an bauleitplanung@siegsdorf.bayern.de übermittelt werden, können bei Bedarf aber auch auf anderem Weg abgegeben werden.
  3. Nicht fristgerecht abgegebene Stellungnahmen können bei der Beschlussfassung über den Bebauungsplan unberücksichtigt bleiben.
  4. Neben der Veröffentlichung im Internet liegen die Unterlagen in Papierform im Rathaus der Gemeinde im Vorzimmer der Bereichs - Planen und Bauen -, 1. OG, Rathausplatz 1, 83313 Siegsdorf, während folgender Zeiten: Montag bis Freitag von 8.00 bis 12.00 Uhr, Donnerstag, zusätzlich von 14.00 bis 18.00 Uhr öffentlich aus.

Datenschutz:

Die Verarbeitung personenbezogener Daten erfolgt auf der Grundlage der Art. 6 Abs. 1 Buchst. e (DSGVO) i.V. mit § 3 BauGB und dem BayDSG. Sofern Sie Ihre Stellungnahme ohne Absenderangaben abgeben, erhalten Sie keine Mitteilung über das Ergebnis der Prüfung. Weitere Informationen entnehmen Sie bitte dem Formblatt „Datenschutzrechtliche Informationspflichten im Bauleitplanverfahren“ das ebenfalls öffentlich ausliegt.

Siegsdorf, 14.08.2025
Gemeinde Siegsdorf
gez. Kamm, 1. Bürgermeister
III-610-00/78-Lin