Titel Logo
Amtsblatt der Gemeinde Lautertal
Ausgabe 3/2024
Aus dem Rathaus
Zurück zur vorigen Seite
Zurück zur ersten Seite der aktuellen Ausgabe

Amtliche Bekanntmachung

BEKANNTMACHUNG DER GEMEINDE LAUTERTAL

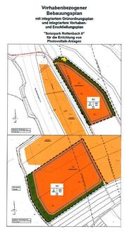
Öffentliche Auslegung des Entwurfs der 5. Flächennutzungs- planänderung, Bereich „Solarpark Rottenbach II“und des Entwurfs zum vorhabenbezogenen Bebauungsplan „Solarpark Rottenbach II“ (Parallelverfahren) nach § 4a Abs. 3 Baugesetzbuch (BauGB)

Beteiligung der Öffentlichkeit

vom 15.02.2024 bis einschließlich 01.04.2024

Am 18.01.2024 hat der Gemeinderat Lautertal beschlossen, den Entwurf der 5. Änderung des Flächennutzungsplans Lautertal im Bereich des vorhabenbezogenen Bebauungsplans „Solarpark Rottenbach II“ und den Entwurf des vorhabenbezogenen Bebauungsplanes „Solarpark Rottenbach II“ zusammen mit seiner

Begründung einschließlich Umweltbericht öffentlich auszulegen (§ 3 Abs. 2 BauGB).

Die Abgrenzung des räumlichen Geltungsbereiches sowie die räumliche Lage sind aus dem abgedruckten Lageplan sowie aus den am Auslegungsort offenliegenden Plänen in der Fassung vom 18.01.2024 zu ersehen.

Der Entwurf der 5. Änderung des Flächennutzungsplans und der Entwurf des vorhabenbezogenen Bebauungsplans „Solarpark Rottenbach II“ liegen mit den Begründungen einschließlich Umweltbericht in der Zeit vom:

15.02.2024 bis einschließlich 01.04.2024

bei der Gemeinde Lautertal, Frankenstraße 3, 96486 Lautertal, während der allgemeinen Öffnungszeiten (Montag bis Freitag von 7:30 – 12:00 Uhr; Montag, Mittwoch u. Donnerstag von 13:00 – 16.15 Uhr und Dienstag von 13:00 – 17:30 Uhr) öffentlich aus.

Der Inhalt dieser Bekanntmachung und die auszulegenden Unterlagen sind auch im Internet auf der Homepage der Gemeinde Lautertal (www.gemeindelautertal.de) aufrufbar.

Während dieser Frist können Stellungnahmen schriftlich oder zur Niederschrift abgegeben werden. Nicht fristgerecht abgegebene Stellungnahmen können gem. § 4a Abs. 6 BauGB bei der Beschlussfassung unberücksichtigt bleiben.

Nicht fristgerecht abgegebene Stellungnahmen können bei der Beschlussfassung über die 5. Änderung des Flächennutzungsplans/ über den vorhabenbezogenen Bebauungsplan „Solarpark Rottenbach II“ unberücksichtigt bleiben, wenn die Gemeinde den Inhalt nicht kannte und nicht hätte kennen müssen und deren Inhalt für die Rechtmäßigkeit der Flächennutzungsplanänderung/ des vorhabenbezogenen Bebauungsplans „Solarpark Rottenbach II“ nicht von Bedeutung ist.

Datenschutz:

Die Verarbeitung personenbezogener Daten erfolgt auf der Grundlage der Art. 6 Abs. 1 Buchstabe e (DSGVO) i. V. mit § 3 BauGB und dem BayDSG. Sofern Sie Ihre Stellungnahme ohne Absenderangaben abgeben, erhalten Sie keine Mitteilung über das Ergebnis der Prüfung. Weitere Informationen entnehmen Sie bitte dem Formblatt „Datenschutzrechtliche Informationspflichten im Bauleitplanverfahren“ das ebenfalls öffentlich ausliegt. Hinweis

zur 5. Änderung des Flächennutzungsplans bzgl. des Verbandsklagerechts von Umweltverbänden:

Eine Vereinigung im Sinne des § 4 Abs. 3 S. 1 Nr. 2 UmwRG (Umwelt-Rechtsbehelfsgesetzes) ist in einem Rechtsbehelfsverfahren nach § 7 Abs. 2 UmwRG gemäß § 7 Abs. 3 S. 1 UmwRG mit allen Einwendungen ausgeschlossen, die sie im Rahmen der Auslegungsfrist nicht oder nicht rechtzeitig geltend gemacht hat, aber hätte geltend machen können (§ 3 Abs. 3 BauGB).

Lautertal, den 07.02.2024
Karl Kolb
1. Bürgermeister