Titel Logo
Amtsblatt der Gemeinde Ahorn
Ausgabe 4/2024
Amtliche Bekanntmachungen
Zurück zur vorigen Seite
Zurück zur ersten Seite der aktuellen Ausgabe

Aufstellung des Bebauungsplans "Sondergebiet (SO) Pferdehaltung in Eigennutzung und Mischgebiet (MI)"

Gmkg. Wohlbach, Gemeinde Ahorn, Lkr. Coburg, sowie über die frühzeitige Beteiligung der Öffentlichkeit nach § 3 Abs. 1 BauGB

Der Gemeinderat der Gemeinde Ahorn hat in öffentlicher Sitzung am 27.04.2021 gemäß § 2 Abs. 1 BauGB die Aufstellung des Bebauungsplans "Sondergebiet (SO) Pferdehaltung in Eigennutzung und Mischgebiet (MI)" Gmkg. Wohlbach, Gemeinde Ahorn, Lkr. Coburg, beschlossen.

Der Vorentwurf zur Aufstellung des Bebauungsplans "Sondergebiet (SO) Pferdehaltung in Eigennutzung und Mischgebiet (MI)" wurde am 16.04.2024 gebilligt, sowie die frühzeitige Beteiligung der Öffentlichkeit gem. § 3 Abs 1 BauGB und die Beteiligung der Behörden und sonstigen Träger öffentlicher Belange, gem. § 4 Abs. 1 BauGB beschlossen.

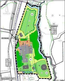
Der Geltungsbereich im beiliegenden Planausschnitt ist Bestandteil des Beschlusses.

Der Geltungsbereich hat eine Größe von 12.519 m², wobei das Sondergebiet eine Größe von 7.919 m² und das Mischgebiet eine Größe von 4.600 m² einnimmt.

Der Geltungsbereich erstreckt sich über die Flurnummer 1161, Gmkg. Wohlbach, Gemeinde Ahorn.

Der Geltungsbereich ist wie folgt umgrenzt:

Norden:

109/1

Gemarkung Schafhof

Süden:

1160; 1157

Gemarkung Wohlbach

Osten:

68; 1157

Gemarkung Wohlbach

Westen:

1154/4; 1154/2

Gemarkung Wohlbach

Mit der Aufstellung des Bebauungsplans sollen durch die Ausweisung eines Sondergebiets für Pferdehaltung in Eigennutzung gemäß § 11 BauNVO und eines Mischgebiets gemäß § 4 BauNVO die planungsrechtlichen Voraussetzungen geschaffen werden, um auf der Fläche Flur- Nr. 1161, Gmkg. Wohlbach, eine Pferdehaltung in Eigennutzung sowie die dazugehörigen Wohn- und Stallgebäude unterzubringen.

Frühzeitige Öffentlichkeitsbeteiligung gem. § 3 Abs. 1 BauGB

Der Entwurf des Bebauungsplans "Sondergebiet (SO) Pferdehaltung in Eigennutzung und Mischgebiet (MI)" und die Begründung liegen in der Planfassung mit Datum vom 16.04.2024 in der Zeit:

von Montag, den 06.05.2024 - Montag, den 10.06.2024

im Übergangsrathaus der Gemeinde Ahorn, Badstraße 20a, 96482 Ahorn OT Witzmannsberg während der allgemeinen Dienststunden:

Montag - Freitag:

08:00 Uhr - 12:00 Uhr

Mittwoch:

16:00 Uhr - 19:00 Uhr,

zusätzliche Abendsprechstunde

öffentlich aus.

Während der Auslegung gibt es Gelegenheit zur Äußerung und zur Erörterung der Planung. Stellungnahmen können (schriftlich oder mündlich zur Niederschrift) bei der Gemeindeverwaltung vorgebracht werden.

Der Inhalt der ortsüblichen Bekanntmachung nach § 3 Abs. 1 BauGB und die auszulegenden Unterlagen werden zusätzlich in das Internet unter nachfolgender Internet-Adresse: https://www.ahorn.de/leben-wohnen/bauen-sanieren/bebauungsplaene/

eingestellt und über ein zentrales Internetportal des Landes (soweit vorhanden) zugänglich gemacht.

Unter Hinweis auf das Datenschutzgesetz wird darauf aufmerksam gemacht, dass die Namen und Anschriften der Einsender von Anregungen in den Drucksachen für die öffentlichen Sitzungen des Stadtrates aufgeführt werden, soweit dies der Einsender nicht ausdrücklich verweigert.

Ahorn, den 25.04.2024
gez.
Martin Finzel, 1. Bürgermeister