Titel Logo
Amtsblatt Gemeinde Kammeltal
Ausgabe 46/2023
Amtliche Bekanntmachungen
Zurück zur vorigen Seite
Zurück zur ersten Seite der aktuellen Ausgabe

Änderung des Bebauungsplans Hammerstetten Süd Teil A

Bekanntmachung des Satzungsbeschlusses

Bekanntmachung des Satzungsbeschlusses zur 1. Änderung des Bebauungsplans Hammerstetten Süd Teil A der

Gemeinde Kammeltal.

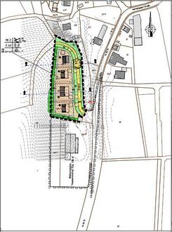
Die Gemeinde Kammeltal hat mit Beschluss vom 19.09.2023 die 1. Änderung des Bebauungsplans "Hammerstetten Süd Teil A" als Satzung beschlossen. Dieser Beschluss wird hiermit gemäß § 10 Abs. 3 BauGB ortsüblich bekannt gemacht. Die Änderung des Bebauungsplanes umfasst gemäß Darstellung in nachstehender Planzeichnung die Gesamtfläche der Grundstücke Fl. Nr. 169, 169/1, 169/2, 169/3 und Fl. Nr. 170 (Teilflächen), Gemarkung Hammerstetten. Mit dieser Bekanntmachung tritt der Bebauungsplan in Kraft.

Jedermann kann den Bebauungsplan mit der Begründung sowie die zusammenfassende Erklärung über die Art und Weise, wie die Umweltbelange und die Ergebnisse der Öffentlichkeits- und Behördenbeteiligung in dem Bebauungsplan berücksichtigt wurden, und aus welchen Gründen der Plan nach Abwägung mit den geprüften, in Betracht kommenden anderweitigen Planungsmöglichkeiten gewählt wurde, bei der Gemeindeverwaltung, Zimmer 105, Burgauer Str. 12, 89358 Kammeltal OT Ettenbeuren, während folgender Zeiten:

Mo.-Fr. 08.00 – 12.00 Uhr, zusätzlich Die. 16.00 – 18.00 Uhr

einsehen und über deren Inhalt Auskunft verlangen.

Die Ausgleichsfläche für die Änderung des Bebauungsplans erfolgt an anderer Stelle als am Ort des Eingriffs; die Ausgleichsfläche befindet sich im folgenden Bereich:

Auf die Voraussetzungen für die Geltendmachung der Verletzung von Verfahrens- und Formvorschriften und von Mängeln der Abwägung sowie die Rechtsfolgen des § 215 Abs. 1 BauGB wird hingewiesen.

Unbeachtlich werden demnach

1.

eine nach § 214 Abs. 1 S. 1 Nr. 1 bis 3 BauGB beachtliche Verletzung der dort bezeichneten Verfahrens- und Formvorschriften,

2.

eine unter Berücksichtigung des § 214 Abs. 2 BauGB beachtliche Verletzung der Vorschriften über das Verhältnis des Bebauungsplans und des Flächennutzungsplans,

3.

nach § 214 Abs. 3 S. 2 BauGB beachtliche Mängel des Abwägungsvorgangs und

4.

nach§ 214 Abs. 2a BauGB im beschleunigten Verfahren beachtliche Fehler,

wenn sie nicht innerhalb eines Jahres seit Bekanntmachung des Bebauungsplans schriftlich gegenüber der Gemeinde geltend gemacht worden sind; der Sachverhalt, der die Verletzung oder den Mangel begründen soll, ist darzulegen.

Außerdem wird auf die Vorschriften des § 44 Abs. 3 Satz 1 und 2 sowie Abs. 4 BauGB hingewiesen. Danach erlöschen Entschädigungsansprüche für nach den §§ 39 bis 42 BauGB eingetretene Vermögensnachteile, wenn nicht innerhalb von drei Jahren nach Ablauf des Kalenderjahres, in dem die Vermögensnachteile eingetreten sind, die Fälligkeit des Anspruches herbeigeführt wird.

Kammeltal, 17.11.2023
gez. Wick, Erster Bürgermeister