Titel Logo
Mitteilungsblatt Gemeinde Frensdorf
Ausgabe 10/2025
Titelseite
Zurück zur vorigen Seite
Zurück zur ersten Seite der aktuellen Ausgabe
-

Titelseite

Bürgerstiftung Frensdorf wird gegründet

Mithilfe einer gemeinnützigen Bürgerstiftung sollen künftig Projekte in der Gemeinde Frensdorf gefördert werden können. Das hat der Gemeinderat auf Empfehlung des BKSST-Ausschusses in seiner letzten Gemeinderatssitzung beschlossen.

Eine Bürgerstiftung ist eine gemeinnützige Stiftung von Bürgern für Bürger, die sich im Gemeindegebiet für das Gemeinwohl engangiert. Die Bürgerstiftung sammelt Geld und verfolgt einen breiten Stiftungszweck wie Jugend- und Altenhilfe, Bildung und Erziehung, traditionelles Brauchtum und Heimatpflege, Sport, mildtätige und gemeinnützige Zwecke, aber auch Landschafts- und Denkmalschutz.

Mithilfe eines langfristigen Vermögensaufbaus soll es gelingen, Erträge zu erwirtschaften, um in diesen Bereichen bürgerschaftliches Engagement, sinnvolle Projekte und gemeinnützige Aktivitäten fördern zu können. Spenden und Zustiftungen sind steuerlich absetzbar.

Die Stiftung wird unter dem Dach der Stiftergemeinschaft der Sparkasse Bamberg, die sich um die Vermögensanlage kümmert, geführt. Die Deutsche Stiftungstreuhand AG wird die Verwaltung der Bürgerstiftung übernehmen.

Die Gemeinde Frensdorf wird zunächst 25.000 Euro als Grundstock in die Stiftung einlegen.

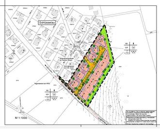
Erschließungsvertrag für das Baugebiet "Gänsäcker III" in Schlüsselau beschlossen

Im Baugebiet "Gänsäcker III" in Schlüsselau kann mit der Erschließung von zwölf gemeindeeigenen Bauplätzen begonnen werden. Nachdem das Landratsamt Bamberg als Rechtsaufsichtsbehörde vor kurzem den Erschließungs- und Finanzierungsvertrag zwischen der KFB Baumanagement GmbH in Reuth und der Gemeinde Frensdorf genehmigt hat, hat der Gemeinderat seine Zustimmung zum umfangreichen Vertragswerk erteilt.

Der Erschließungsträger wird nun in Zusammenarbeit mit der Gemeinde möglichst zeitnah die Erschließung der Baugrundstücke mit Entwässerungskanälen, Wasserleitungen und Straßen vergeben und die Arbeiten der weiteren Erschließungsträger (Telekom, Bayernwerk) koordinieren. Finanziert wird die Erschließungsmaßnahme zu Kommunalkreditkonditionen über ein treuhänderisch verwaltetes Konto und damit außerhalb des kommunalen Haushaltes.

Erneuerungsarbeiten am Abwasserpumpwerk Reundorf

Damit die Abwässer aus Reundorf auch in Zukunft sicher zur Kläranlage Frensdorf geleitet werden, wird derzeit die technische Einrichtung im Pumpwerk Reundorf erneuert. Unter der Bauleitung des verantwortlichen Planungsbüros Weyrauther tauscht die Fa. WILO EMU Anlagenbau aus Hof im ersten Bauabschnitt alle Pumpen und und die gesamte Leitungsführung im 1984 errichteten Pumpwerk aus. Der Gemeinderat hat dafür Aufträge im Wert von ca. 60 Tsd. Euro vergeben.

In einem weiteren Bauabschnitt soll dann im nächsten Jahr die Elektrotechnik dieser Station auf einen neuen Stand gebracht werden.

Das Klärwärterteam der Gemeinde Frensdorf unterstützt diese Arbeiten tatkräftig und sorgt auch dafür, dass die Abwässer während der Reparaturarbeiten aus dem abgesperrten Kanal mittels Pumpfahrzeug in die Kläranlage gefahren werden.

Mobilfunkmast bei Vorra: Kabelverlegungs- und Installationsarbeiten begonnen

Der Netzbetrieb des Mobilfunkmastes bei Vorra rückt näher.

In dieser Woche hat die Telekom mit der Verlegung des notwendigen Glasfaserkabels zwischen Hundshof und dem Funkmast sowie mit der Installation der erforderlichen Technik begonnen.

Wir hoffen auf eine baldige Inbetriebnahme des Mobilfunkmastes.

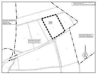
Örtlicher Gewerbebetrieb soll Platz für Erweiterung erhalten

Der Gemeinderat hat mit dem Aufstellungsbeschluss das Bebauungsplanverfahren für die Ausweisung eines Gewerbegebietes in Birkach eingeleitet. Damit sollen einem örtlichen Handwerksbetrieb Möglichkeiten geschaffen werden, eine Betriebsstätte zur Fertigung von Holzbauelementen am östlichen Ortsrand von Birkach anzusiedeln.

Bevor das Verfahren eingeleitet werden konnte, wurden Alternativen geprüft und die Geeignetheit des Standortes untersucht. Um sicherzustellen, dass der Betriebsstandort ohne zusätzliche Abbiegespur über die Bundesstraße B 22 und die Sonnenleite angefahren werden kann, wurde das Staatliche Bauamt Bamberg in die Standortprüfung einbezogen. Zusätzlich wurde mit einem schalltechnischen Gutachten berechnet und nachgewiesen, dass der geplante Holzbaubetrieb am beabsichtigten Standort umsetzbar ist. Es wurde dabei festgestellt, dass die berechneten Beurteilungspegel die gesetzlichen Immsisionsrichtwerte der TA Lärm an der nächstgelegenen Wohnbebauung um mehr als 10 dB unterschreiten. Auch das anlagenbezogne Verkehrsaufkommen wurde in diese Untersuchung einbezogen. Des Weiteren wurde eine arten- und naturschutzrechtliche Prüfung am Standort durchgeführt. Weil im Plangebiet jeweils ein Revier einer Feldlerche und einer Schafstelze festgestellt wurden, wurden für die verloren gehenden Reviere spezielle Maßnahmen auf der Ausgleichsfläche festgelegt.

Betriebsinhaber stellt eigene Flächen zur Verfügung und übernimmt sämtliche Kosten der Bauleitplanung

Sowohl für die Betriebsansiedlung als auch für die Ausgleichsflächen stellt der Betriebsinhalber eigene Flächen in einem Umfang von ca. 1,7 ha zur Verfügung. Davon entfallen auf die Fläche zur Betriebsansiedlung 8.200 qm und auf die Ausgleichsflächen 9.000 qm. Der Betriebsinhaber hat gegenüber der Gemeinde vertraglich zugesichert, dass er neben der Bereitstellung seiner eigenen Flächen auch die kompletten Kosten der Voruntersuchungen und des Bauleitplanverfahrens übernimmt.

Vorgezogene Bürgerbeteiligung eingeleitet

Gleichzeitig mit dem Aufstellungsbeschluss fasste der Gemeinderat den Beschluss, die Öffentlickeit im Rahmen der vorgezogenen Bürgerbeteiligung vorab über das Planvorhaben zu informieren. In diesem Verfahrensschritt haben die Bürgerinnen und Bürger die Möglichkeit in der Zeit vom 13. Oktober bis 14. November 2025, sich im Rathaus oder über die gemeindliche Website (www.frensdorf.de) über das Vorhaben zu informieren und Stellungnahmen abzugeben.

Weiteres Verfahren

Erst danach wird der Gemeinderat über den Entwurf des Bebauungsplanes entscheiden und über die Einleitung der öffentlichen Auslegung des Bebauungsplanentwurfes und der Beteiligung der Fachbehörden und Träger öffentlicher Belange entscheiden.

Errichtung eines Digitalfunkmastes für Behörden und Organisationen mit Sicherheitsaufgaben (BOS) durch den Freistaat Bayern

Zur Verbesserung der Digitalfunkversorgung für die Einsatzkräfte der Rettungsorganisationen und der Polizei im Raum Frensdorf, insbesondere in den Bereichen Reundorf, Birkach, Frensdorf, Ober- und Untergreuth errichtet der Freistaat Bayern auf dem Grundstück Fl.Nr. 537 Gemarkung Frensdorf („Hasengarten“ südlich von Frensdorf) einen BOS-Digitalfunkmast. Das Bayerische Landeskriminalamt fungiert als Baudienststelle.

Der Mast wird durch den Freistaat Bayern ausreichend dimensioniert, so dass später auch eine Belegung mit Mobilfunkantennen möglich ist.

Mit den Tiefbau- und anschließenden Mastbauarbeiten wurde am 20. Oktober 2025 begonnen.

Wahlleitung für die Gemeindewahlen 2026 bestellt

Der Gemeinderat von Frensdorf hat in seiner jüngsten Sitzung den Geschäftsleiter der Gemeindeverwaltung Frensdorf, Herrn Roland Hack, zum Gemeindewahlleiter für die anstehenden Kommunalwahlen ernannt. Stellvertretende Wahlleitung ist die Dipl. Verwaltungswirtin, Frau Stephanie Daun. Die Wahlleiter organisieren und überwachen die Wahlen. Zur Ihren Aufgaben zählt neben der Organsiation der Wahl auch die Prüfung der Wahlvorschläge sowie die Bekanntgabe der Wahlergebnisse.

Die Wahlleiter sind wie folgt zu erreichen:

Roland Hack

E-Mail: roland.hack@frensdorf.de

Tel.: 09502 9449-33

Stephanie Daun

E-Mail: stephanie.daun@frensdorf.de

Tel: 09502 9449-20