Titel Logo
Mitteilungsblatt Gemeinde Frensdorf
Ausgabe 3/2025
Titelseite
Zurück zur vorigen Seite
Zurück zur ersten Seite der aktuellen Ausgabe
-

Titelseite

Hofansicht

Grundriss Erdgeschoss

Grundriss Obergeschoss

Straßenansicht

Windkraftgebiet soll deutlich verkleinert werden

Im Rahmen des Beteiligungsverfahrens zur Entwicklung von Vorranggebieten für Windenergieanlagen hat der Gemeinderat Stellung bezogen.

Um lärmtechnische Konflikte mit dem Ort Frensdorf vollends auszuschließen und großzügige baulichen Entwicklungsmöglichkeiten für Frensdorf vorzuhalten, wurde beschlossen, den Abstand von Windenergiestandorten zum südlichen Ortsrand von Frensdorf auf mindestens 1.500 Metern zu vergrößern. Das geplante Vorranggebiet des Regionalplanes "Windenergie" soll deshalb im nördlichen Bereich flächenmäßig deutlich eingekürzt werden. Dafür werden folgende Gründe angeführt:

Die besseren WEA-Standorte liegen allesamt im südlichen Bereich des vom Regionalen Planungsverbandes vorgeschlagenen Vorranggebietes. Nach einer Voruntersuchung käme aus technischen und wirtschaftlichen Gründen im gesamten nördlichen Bereich keine einzige WEA-Anlage in Betracht.

Der angestrebte WEA-Ausbau mit vier Anlagen kann auch im reduzierten Gebiet umgesetzt werden.

Der Ort Frensdorf wird dauerhaft vor immissionsschutztechnischen und optischen Beeinträchtigungen geschützt.

Frensdorf ist der zentrale Ort der Gemeinde mit hoher Wohnqualität und großem Wohnbau-Entwicklungspotential. Durch eine Gebietsanpassung des Vorranggebietes wird die im beigefügten Plan dargestellte Wohngebiet-Erweiterung „Frensdorf-West“ sichergestellt.

Die Naherholungsfunktion des Gebietes Frensdorfer Seen (Badesee und Weiher) wird geschützt.

Aufgrund der geringen Windhöfigkeit und der eingeschränkten Rentabilität soll ferner das Gebiet im östlichen Bereich des vorgeschlagenen Vorranggebietes gekürzt werden. In diesem Bereich soll keine WEA-Planung umgesetzt werden. Die neue Vorranggebietsgrenze soll dem bestehenden Feldweg entlang angepasst werden.

Im südlichen Bereich des geplanten Wind-Vorranggebietes soll eine Gebietsoptimierung durchgeführt werden. Die Vorranggebietsgrenze soll in Richtung Süden geringfügig erweitert werden.

Die vorgeschlagenen Gebietsanpassungen sind in der beigefügten Skizze zeichnerisch dargestellt.

Die Gemeindeverwaltung wurde beauftragt, die Anpassung des Vorranggebietes beim Regionalen Planungsverband zu beantragen.

Altes Schulhaus in Reundorf kann instandgesetzt werden

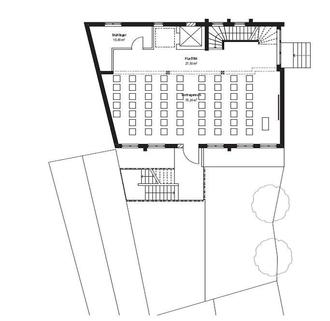
Für Zwecke der Dorfgemeinschaft hat die Gemeinde Frensdorf im letzten Jahr das ehemalige Schulhaus in der Ortsmitte von Reundorf samt Grundstücksfläche erworben. Jetzt hat die Gemeinde untersuchen lassen, ob der Gebäudebestand saniert werden kann oder ob ein Neubau das ca. 60 Jahre alte Gebäude ersetzen soll. Das Ergebnis wurde in der letzten Gemeinderatssitzung präsentiert.

Frank Nickel vom Architekturbüro Nickel & Wachter, Bamberg, hat in den letzten Wochen den Gebäudebestand geprüft und bewertet. Sein Urteil: Das Gebäude ist ortsbildprägend, ist baulich in einem erhaltenswerten Zustand und eignet sich hervorragend für Zwecke der Ortsgemeinschaft. Im Erdgeschoss wären wenige bauliche Eingriffe notwendig, um einen ausreichend großen Gemeinschaftsraum mit Küche zu schaffen. Daneben könnten die Sanitärräume Platz finden. Im Obergeschoss könnten die nicht tragenden Wände herausgenommen und die kleinteiligen Raumstrukturen aufgelöst werden, so dass ein größerer Veranstaltungs- und Vortragsraum mit ausreichendem Flur entsteht. Auch die Mittelwand müsste dazu entfernt werden. Die statische Funktion würde durch einen Überzug im Dachraum ersetzt werden.

Auch Barrierefreiheit könnte im Gebäude durchgehend hergestellt werden. An der Längsseite des Gebäudes kann ein barrierefreier Zugang mittels langgezogener Rampe über den ehemaligen Schulzugang in den Gemeinschaftsraum führen. Ein kleiner Personenaufzug kann neben der bestehenden Treppe eingebaut werden. Gegenüber dem geplanten Aufzug kann ein behindertengerechtes WC geschaffen werden.

Eine sehr schöne Lösung könnte sich nach den Worten des Architekten zudem im Innenhof ergeben. Dazu helfe der geplante Treppenturm, der aus brandschutztechnischen Gründen an der Südseite des Gebäudes angebracht werden würde und den zweiten Rettungsweg vom Obergeschoss sichere. In Verlängerung dieses Treppentrums wäre eine leichte Überdachung, ähnlich einer einfachen Pergola, vorstellbar. Sie schafft überdachte und beschattete Sitzplätze im Freien.

Der Gemeinderat zeigte sich sehr erfreut über die Entwurfsidee des Architekten und beschloss, die Dorfgemeinschaft in die Planungen einzubeziehen. Das soll anlässlich der diesjährigen Bürgerversammlung in Reundorf geschehen. Abhängig von den vorgesehenen Nutzungen soll dann die Entwurfsplanung entwickelt werden.

"Frensi" soll künftig Bürgeranfragen beantworten

Im Zuge der Einführung einer neuen Website für die Gemeinde Frensdorf wird künftig ein KI-Suchassistent Bürgeranfragen beantworten. Dieser KI-Suchassistent ist eine technische Neuerung und erleichtert die webbasierte Suche von Bürgern. Er wurde so entwickelt, dass er alle für Bürger relevanten Informationen aus der Gemeinde, der Kreisverwaltung und den Landes- und Bundesbehörden nutzt, um präzise Informationen auf Suchanfragen bereitzustellen. "Frensi", wie er in Anlehnung an den Gemeindenamen genannt wird, beherrscht über 100 Sprachen und verbessert auch die Barrierefreiheit der Website, weil er neben Dialekten auch die sog. "Leichte Sprache" beherrscht.

Der Gemeinderat hat in der letzten Sitzung beschlossen, dieses Tool zu lizenzieren. Damit soll die Gemeindeverwaltung nicht nur von einfachen Anfragen entlastet werden, sondern auch bürgerfreundlicher werden. Der KI-Assistent ist ununterbrochen tätig und soll sich als digitaler Helfer in der Gemeinde etablieren. Die Gemeinde Frensdorf ist damit eine der ersten Gemeinden im Landkreis Bamberg, die diesen Service nutzt.

PV-Anlagen sind bereits am Netz

Wenige Tage vor Eröffnung der neuen Kindertagesstätte wurden die PV-Anlagen, die insgesamt 460 m² Dachfläche auf der neuen Einrichtung in Herrnsdorf belegen, ans Stromnetz angeschlossen. Damit ging ein kleines Stromkraftwerk ans Netz: 226 Solarmodule mit einer Leistung von 70 kWp speisen den Strom direkt ins Netz ein. 66 Module produzieren Energie zunächst für den Eigenstrombedarf und versorgen so die Wärmepumpe, die Lüftungsanlage, die Beleuchtung und die EDV des Gebäudes. Inklusiv der Netzanbindung, der Wandlermessgeräte, des Stromspeichers und der Wechselrichter hat die Gemeinde Frensdorf ca. 100.000 Euro in diese Anlage investiert. Nach den Wirtschafltichkeitsberechnungen amortisiert sich diese innerhalb von 7 - 8 Jahren und vermeidet ca. 48 to CO²-Emmissionen jährlich.

Derweil freuen sich die Kinder des Naturkindergartens in Schlüsselau schon auf den Umzug. Das Warten auf die Fertigstellung der Einrichtung soll am Dienstag, den 1. April 2025, ein Ende haben. Dann wollen sie endlich von der Containeranlage in die zweigruppige moderne Kindertagesstätte einziehen.

Mit Hochdruck arbeiten die Handwerksfirmen derzeit an der Fertigstellung der Einrichtung. Bevor der Schreiner in der nächsten Woche die Türen und die Möbel einbaut, werden seit Beginn dieser Woche die PVC-Böden verlegt. Auch im Außenbereich stehen die Gartenbauarbeiten mit der Pflasterung des Zufahrtsbereiches kurz vor ihrem Abschluss.

Storchenpaar erfolgreich umgesiedelt

Kurz vor Abriss des Anwesens "Am Marktplatz 1" in Frensdorf haben es sich noch zwei Störche in dem vorhandenen Nest bequem gemacht. Deswegen musste das Storchennest kurzfristig versetzt werden. Dies übernahm der Bauhof der Gemeinde Frensdorf und löste diese Aufgabe auch professionell.

Nach einer kurzen Eingewöhnungszeit wurde der Umzug auch von dem Storchenpaar vollstens akzeptiert und das Nest wird seitdem zur Familienplanung genutzt. Somit hoffen wir auch auf baldigen Nachwuchs.

Ein herzliches Dankeschön geht an die Fam. Klöhr aus Frensdorf, welche das Dach der Scheune "Im Schloss" dafür zur Verfügung gestellt und auch noch die Haltevorrichtung für das Nest in Eigenregie gebaut hat. Somit kann rechtzeitig zum Frühlingsbeginn weiterhin in Frensdorf geklappert werden.

Nach dem Abriss "Am Marktplatz 1" steht dann der entstehende freie Platz Frensdorf zur weiteren innerörtlichen Entwicklung zur Verfügung.