Titel Logo
Mitteilungsblatt Markt Wilhermsdorf
Ausgabe 26/2024
Amtliche Bekanntmachungen
Zurück zur vorigen Seite
Zurück zur ersten Seite der aktuellen Ausgabe

Vollzug des Baugesetzbuches (BauGB); Bebauungsplan Nr. 131 mit integriertem Grünordnungsplan "West" (Wohn- und Gewerbegebiet)

Übersichtskarte mit Darstellung der Lage des Planungsgebietes, ohne Maßstab

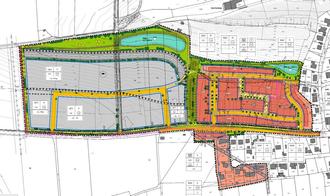
Verkleinerte Abbildung aus dem Planblatt des Bebauungsplans

Übersichtslageplan Ökokontofläche Fl. Nr. 1432, Gem. Laubendorf, ohne Maßstab

Übersichtslageplan CEF-Maßnahmenfläche Fl. Nr. 142, Gem. Dippoldsberg, ohne Maßstab

hier: Bekanntmachung des Satzungsbeschluss und Inkrafttreten gem. § 10 Abs. 3 Baugesetzbuch (BauGB)

Der Marktgemeinderat des Markts Wilhermsdorf hat in seiner Sitzung am 21.03.2024 den Bebauungsplan Nr. 131 mit integriertem Grünordnungsplan „West“ (Wohn- und Gewerbegebiet) als Satzung beschlossen.

Dieser Beschluss wird hiermit gem. § 10 Abs. 3 BauGB ortsüblich bekanntgemacht.

Mit dieser Bekanntmachung tritt der Bebauungsplan Nr. 131 mit integriertem Grünordnungsplan West“ (Wohn- und Gewerbegebiet) in Kraft.

Zum Zeitpunkt dieser Bekanntmachung umfasst der Geltungsbereich des Bebauungsplans die Grundstücke mit den Flurnummern 274/3, 275/1, 276, 276/1, 276/2, 277, 277/3, 277/4, 277/5, 277/6, 277/7, 509, 510, 1250, 1250/2, 1252, 1253, 1254, 1255, 1256, 1257, 1258, 1259, 1260, 1261,1263, 1264, 1265, 1266 und 1268/1, jeweils Gemarkung Wilhermsdorf sowie jeweils eine Teilfläche der Grundstücke mit den Fl. Nr. 1245, 1267 und 1355/2, jeweils Gemarkung Wilhermsdorf. Das Gebiet wird umgrenzt:

-

im Westen: durch einen Feldweg und anschließend die neu geplanten Sondergebietsflächen

-

im Norden: durch landwirtschaftlich genutzte Flächen

-

im Osten: durch angrenzende Siedlungsflächen von Wilhermsdorf

-

im Süden: durch die Straße „An der Steige“ sowie durch weitere Siedlungsstrukturen von Wilhermsdorf

Der Geltungsbereich umfasst eine Fläche von ca. 17 ha und ist wie folgt im Marktgemeindegebiet verortet:

Mit dem vorliegenden Bebauungsplan Nr. 131 mit integriertem Grünordnungsplan „West“ (Wohn- und Gewerbegebiet) wird die städtebaulich geordnete Entwicklung von Wohnbau- und Gewerbeflächen am Westrand von Wilhermsdorf planerisch neu geregelt. Die nun festgesetzten Planungsabsichten stellen sich folgt dar:

Für die Planungen wird zusätzlich zu den planungsgebietsinternen Ausgleichsflächen eine Abbuchung von einer im Ökokonto des Markts Wilhermsdorf enthaltenen Fläche erforderlich. Es handelt sich um die marktgemeindliche Ökokonto Fläche Fl. Nr. 1432, Gem. Laubendorf. Diese befindet sich auf dem unmittelbar an das Marktgemeindegebiet angrenzende Gebiet der Stadt Langenzenn ist wie folgt verortet:

Weiterhin werden für die Planungsmaßnahmen vorgezogene Ausgleichsmaßnahmen (CEF-Maßnahmen) erforderlich. Diese werden auf der Fl. Nr. 142, Gem. Dippoldsberg im Marktgemeindegebiet von Wilhermsdorf umgesetzt. Die CEF-Maßnahmenfläche ist wie folgt im Marktgemeindegebiet verortet:

Der Bebauungsplan mit integriertem Grünordnungsplan Nr. 131 mit integriertem Grünordnungsplan „West“ (Wohn- und Gewerbegebiet) bestehend aus

-

Planblatt mit zeichnerischen Festsetzungen

-

Satzung mit textlichen Festsetzungen zum Bauplanungs- und Bauordnungsrecht sowie der

-

Begründung mit entsprechenden Anlagen

-

Zusammenfassende Erklärung über die Art und Weise, wie die Umweltbelange und die Ergebnisse der Öffentlichkeits- und Behördenbeteiligung in dem Bebauungsplan berücksichtigt wurden und aus welchen Gründen der Plan nach Abwägung mit den geprüften, in Betracht kommenden anderweitigen Planungsmöglichkeiten gewählt wurde,

kann durch jedermann in den Räumen des Rathauses des Marktes Wilhermsdorf, Hauptstr. 46, 91452 Wilhermsdorf während der allgemeinen Dienststunden (jeweils Montag bis Freitag 7.30 – 12.00 Uhr sowie Dienstag 16.30 – 18.00 Uhr) eingesehen und Auskunft über dessen Inhalt verlangt werden.

Der Bebauungsplan „Nr. 131 mit integriertem Grünordnungsplan „West“ (Wohn- und Gewerbegebiet) bestehend aus Planblatt, Satzung und Begründung mit Anlagen sowie der zusammenfassenden Erklärung ist gem. § 10a Abs. 2 BauGB auf der Homepage des Marktes Wilhermsdorf unter www.markt-wilhermsdorf.de -> Rubrik Service & Politik -> Bekanntmachungen -> aktuelle Bauleitplanung bzw. unter der Rubrik Bebaungsplan – rechtskräftig

eingestellt und kann dort ebenfalls eingesehen werden.

Auf die Voraussetzungen für die Geltendmachung der Verletzung von Verfahrens- und Formvorschriften und von Mängeln der Abwägung sowie deren Rechtsfolgen des § 215 Abs. 1 BauGB wird hingewiesen.

Unbeachtlich wird demnach

eine nach § 214 Abs. 1 Satz 1 Nr. 1 bis 3 BauGB beachtliche Verletzung der dort bezeichneten Verfahrens- und Formvorschriften,

eine unter Berücksichtigung des § 214 Abs. 2 BauGB beachtliche Verletzung der Vorschriften über das Verhältnis des Bebauungsplans und des Flächennutzungsplans und

nach § 214 Abs. 3 Satz 2 BauGB beachtliche Mängel des Abwägungsvorgangs,

wenn sie nicht innerhalb eines Jahres seit Bekanntmachung des Bebauungsplans schriftlich gegenüber dem Markt Wilhermsdorf geltend gemacht worden sind. Der Sachverhalt, der die Verletzung oder den Mangel begründen soll, ist darzulegen. Außerdem wird auf die Vorschriften des § 44 Abs. 3 Satz 1 und 2 sowie Abs. 4 BauGB hingewiesen. Danach erlöschen Entschädigungsansprüche für nach den § 39 bis 42 BauGB eingetretene Vermögensnachteile, wenn nicht innerhalb von drei Jahren nach Ablauf des Kalenderjahres, in dem die Vermögensnachteile eingetreten sind, die Fälligkeit des Anspruches herbeigeführt wird.

Die in den Unterlagen zum Bebauungsplan mit integriertem Grünordnungsplan Nr. 131 mit integriertem Grünordnungsplan „West“ (Wohn- und Gewerbegebiet)“ benannten Gesetze, Normen (insb. DIN-Normen) und technischen Baubestimmungen können zusammen mit den Unterlagen des Bebauungsplans in den Räumen des Rathauses des Marktes Wilhermsdorf, Hauptstr. 46, 91452 Wilhermsdorf, während der allgemeinen Öffnungszeiten eingesehen werden und bei Bedarf erläutert werden.

Markt Wilhermsdorf, den 28.06.2024
Uwe Emmert
1. Bürgermeister