Übersichtslageplan des Bebauungsplans „WEST- Wohn- und Gewerbegebiet“ mit integriertem Grünordnungsplan (© Kartengrundlage: Bayerische Vermessungsverwaltung 2021)
Verkleinerter Auszug aus dem Planblatt zum Bebauungsplan, ohne Maßstab, © Kartengrundlage: Bay. Vermessungsverwaltung 2022, geodaten.bayern.de
Übersichtslageplan Ökmedqontofläche Fl. Nr. 1432, Gem. Laubendorf, ohne Maßstab © Kartengrundlage Bay. Vermessungsverwaltung 2023, geodaten.bayern.de
Übersichtslageplan CEF-Maßnahmenfläche Fl. Nr. 142, Gem. Dippoldsberg, ohne Maßstab © Kartengrundlage Bay. Vermessungsverwaltung 2023, geodaten.bayern.de
| hier: | Öffentliche Auslegung des Entwurfes gem. BauGB |
| (gem. § 3 Abs. 2 BauGB) |
Der Marktgemeinderat des Marktes Wilhermsdorf hat in der Sitzung am 18.06.2021 beschlossen, den Bebauungsplan „WEST – Wohn- und Gewerbegebiet“ mit integriertem Grünordnungsplan des Marktes Wilhermsdorf aufzustellen. Zwischenzeitlich wurden weitere Bereiche in den Geltungsbereich des Bebauungsplans einbezogen, so dass in der Marktgemeinderatssitzung vom 11.02.2022 ein Beschluss zu Erweiterung des Geltungsbereichs gefasst wurde. Im Parallelverfahren gem. § 8 Abs. 3 BauGB wird der wirksame Flächennutzungsplan des Marktes Wilhermsdorf geändert.
In seiner Sitzung am 11.02.2022 hat der Marktgemeinderat über den Vorentwurf des Bebauungsplans beraten und dieser in der Fassung vom 11.02.2022 gebilligt. Der Entwurf ist vom 04.04.2022 bis 13.05.2022 frühzeitig öffentlich ausgelegen.
In der Sitzung des Marktgemeinderats vom 20.10.2023 wurden die eingegangenen Stellungnahmen mit- und gegeneinander abgewogen und der unter Beachtung der erfolgten Abwägung erarbeitete Entwurf der Bauleitplanung gebilligt. Weiterhin wurde die Durchführung der öffentlichen Auslegung gem. § 3 Abs. 2 BauGB sowie der Beteiligung der Behörden und sonstigen öffentlichen Träger beschlossen.
Das Planungsgebiet umfasst die Grundstücke mit folgenden Flurstücknummern
zum Zeitpunkt der Aufstellung des Bebauungsplans:
Fl. Nr. 274/3, 275/1, 276, 276/1, 276/2, 277, 277/3, 277/4, 277/5, 277/6, 277/7, 509, 510, 1250, 1250/2, 1252, 1253, 1254, 1255, 1256, 1257, 1258, 1259, 1260, 1261,1263, 1264, 1265, 1266 und 1268/1, jeweils Gemarkung Wilhermsdorf sowie jeweils eine Teilfläche der Grundstücke mit den Fl. Nr. 1245, 1267 und 1355/2, jeweils Gemarkung Wilhermsdorf
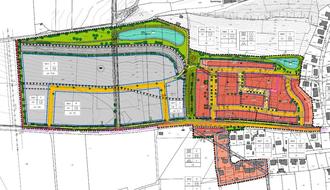
Mit der Aufstellung des Bebauungsplans sollen die bauplanungsrechtlichen Voraussetzungen zur städtebaulich geordneten Entwicklung von Wohn- und Gewerbeflächen westlich von Wilhermsdorf planerisch ermöglicht werden. Der Umgriff des Bebauungsplans umfasst eine Fläche von ca. 17 Hektar und befindet sich westlich der Siedlungsflächen von Wilhermsdorf.
Das Gebiet wird umgrenzt:
| - | im Westen: durch einen Feldweg und anschließend die neu geplanten Sondergebietsflächen |
| - | im Norden: durch landwirtschaftlich genutzte Flächen |
| - | im Osten: durch angrenzende Siedlungsflächen von Wilhermsdorf |
| - | im Süden: durch die Straße „An der Steige“ sowie durch weitere Siedlungsstrukturen von Wilhermsdorf |
Ziel der Planungen sind die Ausweisung neuer Wohnbau- und Gewerbeflächen, notwendiger Verkehrsflächen und Grünflächen sowie plangebietsinterne Ausgleichsflächen. Grafisch stellen sich die Planungsabsichten wie folgt dar:
Für die Planungen wird zusätzlich zu den planungsgebietsinternen Ausgleichsflächen eine Abbuchung von einer im Ökokonto des Markts Wilhermsdorf enthaltenen Fläche erforderlich. Es handelt sich um die marktgemeindliche Ökokonto Fläche Fl. Nr. 1432, Gem. Laubendorf. Diese befindet sich auf dem unmittelbar an das Marktgemeindegebiet angrenzende Gebiet der Stadt Langenzenn ist wie folgt verortet:
Weiterhin werden für die Planungsmaßnahmen vorgezogene Ausgleichsmaßnahmen (CEF-Maßnahmen) erforderlich. Diese werden auf der Fl. Nr. 142, Gemarkung Dippoldsberg im Marktgemeindegebiet von Wilhermsdorf umgesetzt. Die CEF-Maßnahmenfläche ist wie folgt im Marktgemeindegebiet verortet:
Der Entwurf des Bebauungsplans „WEST – Wohn- und Gewerbegebiet“ wurde erstellt und ist, bestehend aus Planblatt mit zeichnerischen Festsetzungen, Satzung mit textlichen Festsetzungen und Begründung, Umweltbericht, Zusammenstellung der umweltbezogenen Stellungnahmen sowie den weiteren Anlagen (Fachgutachten) gem.§ 3 Abs. 2 BauGB in der Zeit vom
17.11.2023 bis 20.12.2023
im Internet auf der Homepage des Marktes Wilhermsdorf unter www.markt-wilhermsdorf.de -> Rubrik Service & Politik -> Bekanntmachungen -> aktuelle Bauleitplanung veröffentlicht und kann dort eingesehen werden.
Zusätzlich liegt der Bebauungsplan während dieses Zeitraums im Rathaus des Marktes Wilhermsdorf, Hauptstr. 46, 91452 Wilhermsdorf aus und kann während der allgemeinen Dienststunden (jeweils Montag bis Freitag 7.30 – 12.00 Uhr sowie Dienstag 16.30 – 18.00 Uhr) eingesehen werden. Den berufstätigen Bürgern wird dies, nach vorheriger Terminabsprache, auch außerhalb der allgemeinen Dienststunden ermöglicht.
Während dieser Auslegungsfrist können von jedermann Stellungnahmen schriftlich, in elektronischer Form (rathaus@markt-wilhermsdorf.de), auf dem Postweg an: Markt Wilhermsdorf, Hauptstr. 46, 91452 Wilhermsdorf oder mündlich zur Niederschrift während der Dienststunden im Rathaus des Marktes Wilhermsdorf, Hauptstr. 46, 91452 Wilhermsdorf vorgebracht werden.
Nicht fristgerecht abgegebene Stellungnahmen können bei der Beschlussfassung über die Aufstellung des Bebauungsplans unberücksichtigt bleiben, soweit die Gemeinde deren Inhalt nicht kannte und nicht hätte kennen müssen und deren Inhalt für die Rechtmäßigkeit der Bauleitplanung nicht von Bedeutung ist. (§ 4a Abs. 6 BauGB i.V.m. § 3 Abs. 2 Satz 2, Halbsatz 2 BauGB)
Umweltbezogene Informationen liegen in Form des Umweltberichtes vor. Im Umweltbericht wurde verbalargumentativ eine Erfassung der Bestandssituation zu den Schutzgütern Boden, Wasser, Klima und Luft, Tiere und Pflanzen, Mensch, Landschaft sowie Kultur- und Sachgüter durchgeführt, die Auswirkungen der Planungen auf die jeweiligen Schutzgüter erfasst sowie eine Bewertung für das jeweilige Schutzgut und mögliche Wechselwirkungen zwischen den Schutzgütern vorgenommen. Hinzu kommen im Umweltbericht Angaben zu Maßnahmen zur Vermeidung, Verringerung und zum Ausgleich der nachteiligen Auswirkungen der Planung, zur Entwicklung des Umweltzustandes bei Durchführung bzw. Nichtdurchführung der Planung, zu den in Betracht kommenden anderweitigen Planungsmöglichkeiten sowie zur Überwachung der Umweltauswirkungen, die aufgrund des Bauleitplans auftreten können (Monitoring). Ferner sind folgende Arten umweltbezogener Informationen und Stellungnahmen verfügbar:
| Schutzgut | Art der umweltbezogenen Information/Stellungnahme | |
| Mensch (insbesondere Lärm und andere Emissionen, Erholung und Verkehrssicherheit) | • | Stellungnahme des Landratsamtes Fürth mit Aussagen zum Umgang mit Altlasten, Immissionsschutz, Verträglichkeit der Planungen zueinander, Höhenentwicklung und Entwicklungsdichte der Bauflächen, Sichtbeziehungen bei der Verkehrsabwicklung• Stellungnahme des Regionalen Planungsverbandes sowie der Regierung von Mittelfranken - Landesplanung mit Aussagen zur Bevölkerungsentwicklung und Bebauungsdichte• Stellungnahme des Wasserwirtschaftsamts Nürnberg mit Aussagen zur Entwässerung und dem Umgang mit Starkregenereignissen |
| • | Stellungnahme des Staatlichen Bauamtes Nürnberg hinsichtlich der Erschließung des Planungsgebietes, der Belange der angrenzenden Staatsstraße sowie des Immissionsschutzes• Stellungnahme der Gemeindewerke Wilhermsdorf hinsichtlich der Löschwasserversorgung• Stellungnahme der IHK Mittelfranken hinsichtlich dem Erhalt bzw. zusätzlichen Arbeitsplätzen• Stellungnahme der DFS Deutschen Flugsicherung mit Aussagen zum Luftverkehr• Stellungnahme aus der Öffentlichkeit mit Aussagen zu Emissionen aus der Landwirtschaft auf den benachbarten Flächen |
| Tiere und Pflanzen | • | Stellungnahme des Landratsamtes Fürth mit Hinweisen zum vorhandenen Biotop und der Obstbaumreihe sowie mit Aussagen zu den Ausgleichsmaßnahmen, Durchlässigkeit für Kleintiere sowie Artenschutzbelange |
| • | Stellungnahme der Regierung von Mittelfranken – Höhere Naturschutzbehörde hinsichtlich der erforderlichen Ausgleichsmaßnahmen und artenschutzrechtlicher Belange |
| • | Stellungnahme des Amtes für Ernährung, Landwirtschaft und Forsten zu den Eingrünungsmaßnahmen• Stellungnahme des Landesjagdverbandes Bayern mit Aussagen zur Einzäunung des Regenrückhaltebeckens |
| • | Stellungnahme aus der Öffentlichkeit mit Hinweisen zu Pflanzungen im Änderungsgebiet |
| Boden | • | Stellungnahme des Landratsamtes Fürth mit Hinweisen zu Altlasten |
| • | Stellungnahmen des Wasserwirtschaftsamts Nürnberg mit Aussagen zum Bodenschutz, zur Abwasserbeseitigung und zum Umgang mit Starkregenereignissen sowie der Versickerungsfähigkeit |
| • | Stellungnahme des Staatlichen Bauamtes mit Hinweisen zum Straßenbau |
| • | Stellungnahme des Amtes für Ernährung, Landwirtschaft und Forsten mit Aussagen zur Bodenqualität• Stellungnahmen der Versorger mit Hinweisen zu bestehenden und neu geplanten Leitungen• Stellungnahme aus der Öffentlichkeit hinsichtlich des Umgangs mit Starkregenereignissen |
| Wasser | • | Stellungnahme des Landratsamtes Fürth mit Hinweisen zu Altlasten, zur Abwasserbeseitigung und des Umgangs mit Niederschlagswassers |
| • | Stellungnahme des Wasserwirtschaftsamts Nürnberg mit Aussagen zum Gewässerschutz und zur Entwässerung• Stellungnahme des Staatlichen Bauamtes hinsichtlich des Umgangs mit Niederschlagswassers auf der Straße |
| • | Stellungnahmen des Wasserversorger mit Aussagen zu Wasser- und Löschwasserversorgung |
| • | Stellungnahme aus der Öffentlichkeit hinsichtlich des Umgangs mit Starkregenereignissen und dem Niederschlagswassers |
| Landschaft / Fläche | • | Stellungnahme der Regierung von Mittelfranken und des Regionalen Planungsverbandes bzgl. des Anbindegebotes und der Flächeninanspruchnahme sowie der Untersuchung von Alternativfläche sowie des Bedarfsnachweises für die Planung |
| • | Stellungnahme des Amts für Ernährung, Landwirtschaft und Forsten mit Aussagen über die Auswirkungen auf die Bewirtschaftung der Flächen |
| • | Stellungnahme des Amts für Ländliche Entwicklung Mittelfranken bzgl. Maßnahmen nach dem Flurbereinigungsgesetz |
| • | Stellungnahme aus der Öffentlichkeit mit dem Wunsch nach Einbeziehung weiterer Flächen in die Planung |
| Kultur- und Sachgüter | • | Stellungnahme des Bayerischen Landesamtes für Denkmalpflege mit Aussagen zur Denkmalvermutungsfläche und den daraus resultierenden Auswirkungen |
| Landschafts-, Regional-, Landes- und weiterer Planungen | • | Stellungnahmen der höheren Landesplanungsbehörde (Regierung von Mittelfranken) und des Planungsverbandes Region Nürnberg mit Aussagen zur Vereinbarkeit der Planung mit den Zielen und Grundsätzen der Landes- und Regionalplanung |
| Klima und Luft | • | Aussagen im Umweltbericht |
| Wechselwirkungen | • | Aussagen im Umweltbericht |
| Fachgutachten mit umweltbezogenen Inhalten | • | speziellen artenschutzrechtlichen Prüfung (saP) - Spezielle Artenschutzrechtliche Prüfung „Siedlungsentwicklung am Westrand“, erstellt durch ÖFA Ökologie Fauna Artenschutz, Drahtzieherstraße 9, 91154 Roth, vom 09.12.2019 mit Anpassungen vom 04.10.2021: Erfassung und Bewertung der Auswirkungen der Planungen auf besonders geschützte Tier- und Pflanzenarten. |
| • | Immissionsschutzgutachten - Bericht Nr. 2106/2659A vom 29.09.2023 erstellt durch Messinger + Schwarz Bauphysik-Ingenieur-Gesellschaft mbH, Röthenbach an der Pegnitz mit Aussagen zu Lärmauswirkungen der Planungen |
| • | Verkehrsgutachten - erstellt durch Ingenieurbüro Christofori und Partner, Gewerbestraße 9, 91560 Heilsbronn vom 20.10.2023, mit Erfassung der Bestandsverkehrsbelastungen und Verkehrsprognose für die Planungen sowie Leistungsfähigkeitsnachweis der Anbindung an die StaatsstraßeSt 2252 |
| • | Verkehrszählung - integriert in das Verkehrsgutachten, durchgeführt durch Geovista GmbH, Filchnerstraße 2, 95448 Bayreuth, mit Erfassung der Bestandsverkehrsbelastungen |
| - | Bodengutachten - Baugrunduntersuchung und Baugrundgutachten / Geotechnischer Bericht, Bericht AZ 34721, vom 24.11.2021, erstellt durch Geotechnik Prof. Dr. Gründer GmbH, Pyrbaum (bei Nürnberg) mit Aussagen zu Bodenkunde, Geologie, Versickerungsfähigkeit, Gründungsituation sowie Altlastenvordeklaration |
| - | Schnittdarstellungen – mit Darstellung der Auswirkungen geplante Auffüllungen auf das lokale Landschaftsbild- Eingriffs-/ Ausgleichsbilanzierung: tabellarische Ermittlung des Ausgleichsbedarfs mit zugehörigen Lageplandarstellungen der Bestandseinwertung und der Eingriffsermittlung |
| - | CEF-Maßnahmenfläche: Lageplan mit Verortung der geplanten CEF-Maßnahme |
Die Verarbeitung personenbezogener Daten erfolgt auf der Grundlage der Art. 6 Abs. 1 Buchstabe e (DSGVO) i. V. m. § 3 BauGB und dem BayDSG. Sofern Sie Ihre Stellungnahme ohne Absenderangaben abgeben, erhalten Sie keine Mitteilung über das Ergebnis der Prüfung. Weitere Informationen entnehmen Sie bitte dem Formblatt „Datenschutzrechtliche Informationspflichten im Bauleitplanverfahren“ das ebenfalls öffentlich ausliegt.
Die in den Unterlagen des Bebauungsplans benannten Gesetze, Normen (insb. DIN-Normen) und technischen Baubestimmungen können zusammen mit den Unterlagen des Bebauungsplans im Rathaus des Marktes Wilhermsdorf, Hauptstr. 46, 91452 Wilhermsdorf eingesehen und bei Bedarf erläutert werden.
Zeitgleich mit der Beteiligung der Öffentlichkeit erfolgt gem. § 4 Abs. 2 BauGB die Beteiligung der Behörden und sonstiger Träger öffentlicher Belange, deren Aufgabenbereiche durch diese Planungen berührt werden können sowie der Nachbargemeinden gem. § 4 Abs. 2 BauGB.
Die Ergebnisse dieser öffentlichen Auslegung werden anschließend in einer öffentlichen Sitzung des Marktgemeinderates erörtert und abgewogen.