Titel Logo
Auerbacher Stadtanzeiger
Ausgabe 3/2023
Amtliche Bekanntmachungen und Satzungen
Zurück zur vorigen Seite
Zurück zur ersten Seite der aktuellen Ausgabe

Amtliche Bekanntmachungen und Satzungen

über das Inkrafttreten des vorhabenbezogenen Bebauungsplanes S 4 mit integriertem Vorhaben- und Erschließungsplan „Forstschule Bad Reiboldsgrün“

Der Stadtrat der Stadt Auerbach/Vogtl. hat am 26.02.2018 den vorhabenbezogenen Bebauungsplan S 4 mit integriertem Vorhaben- und Erschließungsplan „Forstschule Bad Reiboldsgrün“ in der Fassung 07/2017 mit redaktionellen Ergänzungen 01/2018 als Satzung beschlossen.

In der öffentlichen Sitzung des Stadtrates am 20.03.2023 wurde der Bestätigungsbeschluss zu o.g. Satzungsbeschluss gefasst.

Die Satzung wird hiermit gemäß § 10 Abs. 3 BauGB ortsüblich bekannt gemacht und tritt damit in Kraft.

Der vorhabenbezogene Bebauungsplan S 4 mit integriertem Vorhaben- und Erschließungsplan „Forstschule Bad Reiboldsgrün“ bestehend aus Teil A - Planzeichnung, Teil B - Text sowie Begründung mit Umweltbericht kann ab sofort in der Stadtverwaltung Auerbach/Vogtl., Nicolaistraße 51, 08209 Auerbach/ Vogtl. während der nachfolgend genannten Sprechzeiten von jedermann kostenlos eingesehen werden. Über den Inhalt der Satzung wird auf Verlangen Auskunft gegeben.

Montag

9.00 Uhr bis 12.00 Uhr

Dienstag

9.00 Uhr bis 12.00 Uhr und 13.00 bis 18.00 Uhr

Donnerstag

9.00 Uhr bis 12.00 Uhr und 13.00 bis 16.00 Uhr

Freitag

9.00 Uhr bis 12.00 Uhr

Die oben genannte Satzung mit Begründung und Umweltbericht wird gemäß § 10a Abs. 2 BauGB ergänzend über die Internetpräsenz der Stadt Auerbach/Vogtl. (www.stadt-auerbach.de) eingestellt sowie über das Zentrale Landesportal Bauleitplanung des Freistaates Sachsen (www.buergerbeteiligung.sachsen.de/portal/bplan) zugänglich gemacht.

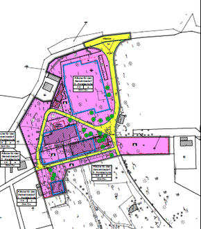
Der Umgriff des Bebauungsplangebietes wird aus dem nachfolgend abgebildeten Planauszug (verkleinert, ohne Maßstab) erkenntlich.

Eine Verletzung der in § 214 Abs. 1 Nr. 1 - 3 und Abs. 2 BauGB bezeichneten Verfahrens- und Formvorschriften sowie Mängel in der Abwägung nach § 214 Abs. 3 Satz 2 BauGB sind gemäß § 215 Abs. 1 Nr. 1 - 3 BauGB unbeachtlich, wenn sie nicht innerhalb von einem Jahr seit dieser Bekanntmachung schriftlich gegenüber der Stadtverwaltung Auerbach/Vogtl., Nicolaistraße 51, 08209 Auerbach/Vogtl., 2. Etage, Zimmer 3.4, geltend gemacht worden sind. Bei der Geltendmachung ist der Sachverhalt, der die Verletzung oder den Mangel begründen soll, darzulegen.

Hinweis auf § 4 Abs. 4 und Abs. 5 der Gemeindeordnung für den Freistaat Sachsen (SächsGemO)

§ 4 Abs. 4 SächsGemO

Satzungen, die unter Verletzung von Verfahrens- oder Formvorschriften zustande gekommen sind, gelten 1 Jahr nach ihrer Bekanntmachung als von Anfang an gültig zustande gekommen.

Dies gilt nicht, wenn

1.

die Ausfertigung der Satzung nicht oder fehlerhaft erfolgt ist,

2.

Vorschriften über die Öffentlichkeit der Sitzungen, die Genehmigung oder die Bekanntmachung der Satzung verletzt worden sind,

3.

der Bürgermeister dem Beschluss nach § 52 Abs. 2 SächsGemO wegen Gesetzwidrigkeit widersprochen hat,

4.

vor Ablauf der in Satz 1 genannten Frist

a)

die Rechtsaufsichtsbehörde den Beschluss beanstandet oder

b)

die Verletzung der Verfahrens- oder Formvorschrift gegenüber der Gemeinde unter Bezeichnung des Sachverhalts, der die Verletzung begründen soll, schriftlich geltend gemacht worden ist.

Ist eine Verletzung nach Satz 2 Nr. 3 oder 4 geltend gemacht worden, so kann auch nach Ablauf der in Satz 1 genannten Frist jedermann diese Verletzung geltend machen.

Außerdem wird auf die Vorschriften des § 44 Abs. 3 Satz 1 und 2 sowie Abs. 4 BauGB hingewiesen. Demnach kann der Entschädigungsberechtigte Entschädigung verlangen, wenn die in den §§ 39 bis 42 BauGB bezeichneten Vermögensnachteile eingetreten sind. Er kann die Fälligkeit des Anspruchs dadurch herbeiführen, dass er die Leistung der Entschädigung schriftlich bei dem Entschädigungspflichtigen beantragt. Ein Entschädigungsanspruch erlischt, wenn nicht innerhalb von drei Jahren nach Ablauf des Kalenderjahres, in dem die in § 44 Abs. 3 Satz 1 BauGB bezeichneten Vermögensnachteile eingetreten sind, die Fälligkeit des Anspruchs herbeigeführt wird.

Auerbach/Vogtl., den 21.03.2023

Jens Scharff
Oberbürgermeister