Titel Logo
Mitteilungsblatt der Stadt Bad Lausick mit den Ortsteilen
Ausgabe 2/2024
Amtlicher Teil
Zurück zur vorigen Seite
Zurück zur ersten Seite der aktuellen Ausgabe

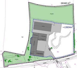
Bekanntmachung über die Aufstellung des Bebauungsplanes Nr. 85 "An der Kaoline"

Der Stadtrat hat in seiner öffentlichen Sitzung vom 25.01.2024 beschlossen, für die Flurstücks Nr. 478 und 479 der Gemarkung Heinersdorf einen Bebauungsplan aufzustellen. Mit der Satzung soll Baurecht für die Errichtung weiterer Betriebsgebäude erlangt werden.

Es wird darauf hingewiesen, dass sich die Öffentlichkeit entsprechend der dazu bestimmten Tagesordnungspunkte in den öffentlichen Sitzungen des Technischen Ausschusses und des Stadtrates über die allgemeinen Ziele und Zwecke sowie über die wesentlichen Auswirkungen der Planung informieren kann. Zudem kann sich die Öffentlichkeit während der im Mitteilungsblatt noch bekanntzugebenden Fristen zum weiteren Planungsverfahren äußern. Dieser Beschluss wird hiermit bekannt gemacht.

Bad Lausick, den 23.02.2024

Hultsch
Bürgermeister

Anlage

Übersichtsplan