Titel Logo
Mitteilungsblatt der Stadt Bad Lausick mit den Ortsteilen
Ausgabe 5/2024
Amtlicher Teil
Zurück zur vorigen Seite
Zurück zur ersten Seite der aktuellen Ausgabe

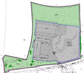
Bekanntmachung der frühzeitigen Öffentlichkeitsbeteiligung nach § 3 Abs. 1 BauGB zum Vorentwurf des Bebauungsplanes Nr. 85 „An der Kaoline“

Geltungsbereich Bebauungsplan Nr. 85 „An der Kaoline“

Der Stadtrat der Stadt Bad Lausick hat mit Beschluss (Nummer 487/47/14/03/2024) vom 14.03.2024 den Vorentwurf des Bebauungsplanes Nr. 85 “An der Kaoline“ in der Fassung vom 08.02.2024 und die Begründung in der Fassung vom 31.01.2024 gebilligt und die Durchführung der frühzeitigen Beteiligung der Öffentlichkeit gemäß § 3 Abs. 1 BauGB in Form einer öffentlichen Auslegung beschlossen.

Der Vorentwurf des Bebauungsplanes Nr. 85 „An der Kaoline“ und die Begründung liegen vom 03.06.2024 bis einschließlich 05.07.2024 während folgender Zeiten zu jedermanns Einsicht im Rathaus, Flur EG, aus:

montags und mittwochs

7:30 – 12:00 und 13:00 – 15:00 Uhr,

dienstags

7:30 – 12:00 und 13:00 – 18:00 Uhr,

donnerstags

7:30 – 12:00 und 13:00 – 16:00 Uhr,

freitags

7:30 – 12:00 Uhr.

Abweichende Zeiten können mit Frau Tenner, Tel. 034345 70130 und Frau Ezold, Tel. 034345 7010 vereinbart werden. Während dieser Zeit können Anregungen und Hinweise zu dem Entwurf schriftlich oder zur Niederschrift vorgebracht werden.

Der Vorentwurf nebst Begründung ist in dieser Zeit auch auf der Homepage der Stadt Bad Lausick (www.bad-lausick.de) und dem Landesportal Sachsen (https://buergerbeteiligung.sachsen.de/portal/bplan/startseite) eingestellt.

Es wird darauf hingewiesen, dass

-

gemäß § 4a Abs. 6 BauGB nicht fristgerecht abgegebene Stellungnahmen bei der Beschlussfassung über die Einbeziehungssatzung unberücksichtigt bleiben können, sofern die Gemeinde deren Inhalt nicht kannte, nicht hätte kennen müssen und deren Inhalt für die Rechtmäßigkeit des Bauleitplans nicht von Bedeutung ist;

-

Dritte (Privatpersonen) mit der Abgabe einer Stellungnahme der Verarbeitung ihrer angegebenen Daten, wie Name, Adressdaten und E-Mail Adresse, zustimmen. Diese Daten werden gemäß Art. 6 Abs. 1c EU-DSGVO im Rahmen des Verfahrens für die gesetzlich bestimmten Dokumentationspflichten und für die Informationspflicht ihnen gegenüber genutzt. Sofern Dritte ihre Stellungnahme ohne Absenderangaben abgeben, erhalten sie keine Mitteilung über das Ergebnis der Abwägung.

Bad Lausick, den 24.05.2024

Hultsch
Bürgermeister

Anlage Übersichtsplan