Titel Logo
Amtsblatt der Stadt Bad Schmiedeberg
Ausgabe 7/2025
Amtlich
Zurück zur vorigen Seite
Zurück zur ersten Seite der aktuellen Ausgabe

Stadt Bad Schmiedeberg Bekanntmachung

Bekanntmachung

der frühzeitigen Öffentlichkeitsbeteiligung nach § 3 Abs. 1 BauGB zum Vorentwurf des vorhabenbezogenen Bebauungsplans „Solarpark Bösewig“

Der Stadtrat der Stadt Bad Schmiedeberg hatte in seiner öffentlichen Sitzung am 07.09.2023 unter der Beschluss-Nummer I/187-2023 die Aufstellung des vorhabenbezogenen Bebauungsplans „Solarpark Bösewig“ beschlossen. Der Beschluss ist im Amtsblatt der Stadt Bad Schmiedeberg am 11. Oktober 2023 öffentlich bekannt gemacht worden.

In der Sitzung des Stadtrates am 05.06.2025 wurde der Vorentwurf des vorhabenbezogenen Bebauungsplans „Solarpark Bösewig“ gebilligt.

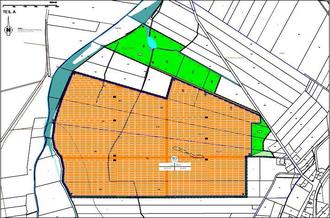
Der räumliche Geltungsbereich des vorhabenbezogenen Bebauungsplans umfasst die Grundstücksflächen der Flurstücke 52/2, 49/1 (Teilfläche), 52/3, 52/4, 52/5, 48 (Teilfläche) 127/52, 57/5, 57/6, 56 (Teilfläche), 308 und 313 der Flur 9 und der Flurstücke 126, 129, 14 (Teilfläche) und 4 der Flur 10 in der Gemarkung Trebitz. Die Größe des räumlichen Geltungsbereiches des Bebauungsplanes beträgt ca. 52,0 Hektar.

Er ist dem anliegenden Übersichtslageplan zu entnehmen.

Der Vorentwurf des vorhabenbezogenen Bebauungsplans „Solarpark Bösewig“ ist mit folgenden Unterlagen

• Planzeichnung und Begründung

vom 10.07.2025 bis 11.08.2025

auf der Homepage der Stadt Bad Schmiedeberg unter https://www.bad-schmiedeberg.de/bekanntmachungen/index.php einsehbar.

Des Weiteren sind die Unterlagen über den Sachsen-Anhalt-Viewer des Landesamtes für Vermessung und Geoinformation Sachsen-Anhalt unter, https://wwwgeodatenportal.sachsen-anhalt.de/mapapps/resources/apps/viewer_v40/index.html?lang=de, zugänglich.

Zusätzlich liegen die kompletten Planunterlagen während der Veröffentlichungsfrist in der Stadtverwaltung, Bauverwaltung, Markt 3, in 06905 Bad Schmiedeberg während nachfolgender Zeiten zur allgemeinen Einsichtnahme aus:

montags

9.00 Uhr bis 12.00 Uhr und 13.00 Uhr bis 16.00 Uhr

dienstags

9.00 Uhr bis 12.00 Uhr und 13.00 Uhr bis 18.00 Uhr

mittwochs

9.00 Uhr bis 12.00 Uhr und 13.00 Uhr bis 16.00 Uhr

donnerstags

9.00 Uhr bis 12.00 Uhr und 13.00 Uhr bis 16.00 Uhr

freitags

9.00 Uhr bis 12.00 Uhr

Während der o.g. Veröffentlichungsfrist kann sich die Öffentlichkeit über die allgemeinen Ziele und Zwecke sowie die voraussichtlichen Auswirkungen der Planung informieren. Stellungnahmen können während der Dauer der Veröffentlichungsfrist abgegeben werden. Die Stellungnahmen sind in elektronischer Form an s.kuerschner@bad-schmiedeberg.de zu richten. Bei Bedarf ist es auch möglich, Stellungnahmen schriftlich oder zur Niederschrift bei der Stadtverwaltung Bad Schmiedeberg, Bauverwaltung, Markt 3 einzureichen.

Nicht fristgerecht abgegebene Stellungnahmen können bei der Beschlussfassung über den Bauleitplan unberücksichtigt bleiben.

Hinweis zum Datenschutz:

Die Verarbeitung personenbezogener Daten erfolgt auf Grundlage des § 3 BauGB in Verbindung mit Art. 6 Abs. 1 Buchst. E DSGVO und dem Datenschutzgesetz Sachsen-Anhalt. Sofern Sie Ihre Stellungnahme ohne Absenderangaben abgeben, erhalten Sie keine Mitteilung über das Ergebnis der Prüfung. Weitere Informationen entnehmen Sie bitte dem Formblatt: „Informationspflichten bei der Erhebung von Daten im Rahmen der Öffentlichkeitsbeteiligung nach BauGB (Art. 13 DSGVO)“. Es liegt mit aus.

Bad Schmiedeberg, 20.06.2025

Dorczok
Bürgermeisterin