Titel Logo
Amtsblatt der Stadt Böhlen
Ausgabe 12/2023
Stadt Böhlen
Zurück zur vorigen Seite
Zurück zur ersten Seite der aktuellen Ausgabe

Öffentliche Bekanntmachung der Erteilung einer Genehmigung zur Änderung des Bebauungsplanes "Pohlersfeld – Erweiterungsabsicht LIDL“ i.d.F. vom 21.01.2022

Die Erteilung der Genehmigung wird hiermit bekannt gemacht. Der Bebauungsplan tritt mit der Bekanntmachung nach § 10 Abs. 3 BauGB in Kraft.

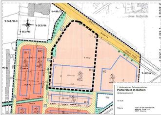
Lageplan:

Jedermann kann die Unterlagen der Änderung des Bebauungsplans „"Pohlersfeld – Erweiterungsabsicht LIDL“ mit Begründung, Umweltbericht, Auswirkungsanalyse und Schallimmissionsprognose im Rathaus der Stadt Böhlen, Karl-Marx-Straße 5, im Sachgebiet Bauwesen, 04564 Böhlen, zu den üblichen Dienstzeiten einsehen und über deren Inhalt Auskunft verlangen.

Die Unterlagen sind auf unserer Internetseite unter: www.stadt-boehlen.de sowie auf der Internetseite des Landesportals des Freistaates Sachsen unter: https://www.buergerbeteiligung.sachsen.de

zur Einsichtnahme eingestellt.

Auf die Voraussetzungen für die Geltendmachung der Verletzung von Verfahrens- und Formvorschriften und von Mängeln der Abwägung sowie der Rechtsfolgen des § 215 Abs. 1 BauGB wird hingewiesen.

Unbeachtlich werden demnach:

  1. Eine nach § 214 Abs. 1 Satz 1 Nr. 1 bis 3 BauGB beachtliche Verletzung der dort bezeichneten Verfahrens- und Formvorschriften,
  2. Eine unter Berücksichtigung des § 214 Abs. 2 BauGB beachtliche Verletzung der Vorschriften über das Verhältnis des Bebauungsplans und
  3. Nach § 214 Abs. 3 Satz 2 beachtliche Mängel des Abwägungsvorgangs,

wenn sie nicht innerhalb eines Jahres seit Bekanntmachung des Bebauungsplans schriftlich gegenüber der Stadt Böhlen geltend gemacht worden sind; der Sachverhalt, der die Verletzung oder den Mangel begründen soll, ist darzulegen.

Außerdem wird auf die Vorschriften des § 44 Abs. 3 Satz 1 und 2 sowie Abs. 4 BauGB hingewiesen. Danach erlöschen Entschädigungsansprüche für nach den §§ 39 bis 42 BauGB eingetretene Vermögensnachteile, wenn nicht innerhalb von drei Jahren nach Ablauf des Kalenderjahres, in dem die Vermögensnachteile eingetreten sind, die Fälligkeit des Anspruches herbeigeführt wird.

Auf § 4 Abs. 4 SächsGemO wird hingewiesen.

Demnach gelten Satzungen, die unter Verletzung von Verfahrens- oder Formvorschriften zustande gekommen sind, ein Jahr nach ihrer Bekanntmachung als von Anfang als gültig zustande gekommen.

Dies gilt nicht, wenn

  1. Die Ausfertigung der Satzung nicht oder fehlerhaft erfolgt ist,
  2. Vorschriften über die Öffentlichkeit der Sitzungen, die Genehmigung oder die Bekanntmachung der Satzung verletzt worden sind,
  3. Der Bürgermeister dem Beschluss nach § 52 Abs. 2 wegen Gesetzwidrigkeit widersprochen hat,
  4. Vor Ablauf der § 4 Abs. 4 Satz 1 SächsGemO genannten Frist

a)

Der Rechtsaufsichtsbehörde den Beschluss beanstandet oder

b)

Die Verletzung der Verfahrens- oder Formvorschrift gegenüber der Stadt Böhlen unter Bezeichnung des Sachverhaltes, der die Verletzung begründen soll, schriftlich geltend gemacht worden ist.

Ist eine Verletzung nach Satz 2 Nr. 3 oder 4 geltend gemacht worden, so kann auch nach Ablauf der in Satz 1 genannten Frist jedermann diese Verletzung geltend machen. Sätze 1 bis 3 sind nur anzuwenden, wenn bei der Bekanntmachung der Satzung auf die Voraussetzungen für die Geltendmachung der Verletzung von Verfahrens- oder Formvorschriften und die Rechtsfolgen hingewiesen worden ist.

Mirko Altmann
Erster stellvertretender
Bürgermeister