Titel Logo
Monatliches Amtsblatt der Gemeinde Boxberg/O.L.
Ausgabe 4/2024
Amtlicher Teil
Zurück zur vorigen Seite
Zurück zur ersten Seite der aktuellen Ausgabe

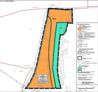
Bekanntmachung über das Inkrafttreten des vorhabenbezogenen Bebauungsplanes Photovoltaikanlage „An der Schaltanlage“ Boxberg/O.L.“ OT Bärwalde

Der Gemeinderat der Gemeinde Boxberg/O.L. hat in seiner Sitzung am 08.01.2024 den vorhabenbezogenen Bebauungsplanes Photovoltaikanlage „An der Schaltanlage“ Boxberg/O.L. OT Bärwalde, das Grundstücke Gemarkung Bärwalde, Flur 2, Flurstück 198 teilweise betreffend, in der Fassung vom 07.11.2023 gemäß § 10 Abs. 1 BauGB als Satzung beschlossen. Gemäß § 10 Abs. 3 BauGB wird der Beschluss des vorhabenbezogenen Bebauungsplanes hiermit ortsüblich bekannt gemacht.

Der vorhabenbezogene Bebauungsplan Photovoltaikanlage „An der Schaltanlage“ Boxberg/O.L. OT Bärwalde tritt mit dieser Bekanntmachung in Kraft.

Alle Interessierten können den Bebauungsplan mit den textlichen Festsetzungen, der Begründung und der zusammenfassenden Erklärung nach § 10a Abs. 1 BauGB in der Gemeinde Boxberg/O.L., Südstraße 4, 02943 Boxberg/O.L., Bauamt während folgender Zeiten einsehen und über deren Inhalt Auskunft erhalten:

Montag

9.00 – 12.00 Uhr

Dienstag

9.00 – 12.00 Uhr und 14.00 – 18.00

Donnerstag

9.00 – 12.00 Uhr und 14.00 – 16.00

Freitag

9.00 – 12.00 Uhr

Entsprechend § 10 a Abs. 2 BauGB wird der in Kraft getretene vorhabenbezogene Bebauungsplan mit der Begründung und der zusammenfassenden Erklärung ergänzend auch im Internet eingestellt und über das zentrale Landesportal Sachsen www.buergerbeteiligung.sachsen.de und auf der Internetseite der Gemeinde unter www.boxberg-ol.de öffentlich zugänglich gemacht.

Auf die Voraussetzungen für die Geltendmachung der Verletzung von Vorschriften sowie die Rechtsfolgen des § 215 Abs. 1 BauGB wird hingewiesen.

Unbeachtlich werden demnach

a.

eine nach § 214 Abs. 1 Satz 1 Nr. 1 bis 3 beachtliche Verletzung der dort bezeichneten Verfahrens- und Formvorschriften,

b.

eine unter Berücksichtigung des § 214 Abs. 2 BauGB beachtliche Verletzung der Vorschriften über das Verhältnis des Bebauungsplans und

c.

nach § 214 Abs. 3 Satz 2 BauGB beachtliche Mängel des Abwägungsvorgangs, wenn sie nicht innerhalb eines Jahres seit Bekanntmachung der Satzung schriftlich gegenüber der Gemeinde unter Darlegung des die Verletzung begründeten Sachverhaltes oder Mangels geltend gemacht worden sind

Auf die Vorschriften des § 44 Abs. 3 Satz 1 und 2 sowie Abs. 4 BauGB über die fristgemäße Geltendmachung etwaiger Entschädigungsansprüche und über das Erlöschen von Entschädigungsansprüchen wird hingewiesen.

Nach § 4 Abs. 4 Satz 1 SächsGemO gültiger Fassung gelten Bebauungspläne, die unter Verletzung der Verfahrens- und Formvorschriften zustande gekommen sind, ein Jahr nach ihrer

Bekanntmachung als von Anfang an gültig zustande gekommen.

Dies gilt nicht, wenn

1.

die Ausfertigung der Satzung nicht oder fehlerhaft erfolgt ist,

2.

Vorschriften über die Öffentlichkeit der Sitzungen, die Genehmigung oder die Bekanntmachung der Satzung verletzt worden sind,

3.

der Bürgermeister dem Beschluss nach § 52 Abs. 2 SächsGemO wegen Gesetzwidrigkeit widersprochen hat.

4.

vor Ablauf der in § 4 Abs. 4 Satz 1 SächsGemO genannten Frist

a)

die Rechtsaufsichtbehörde den Beschluss beanstandet hat oder

b)

die Verletzung der Verfahrens- oder Formvorschrift gegenüber der Gemeinde unter Bezeichnung des Sachverhalts, der die Verletzung begründen soll, schriftlich geltend gemacht worden ist.

Ist eine Verletzung nach Satz 2 Nummern 3 oder 4 geltend gemacht worden, so kann auch nach Ablauf der in Satz 1 genannten Frist jedermann diese Verletzung geltend machen. Sätze 1 bis 3 sind nur anzuwenden, wenn bei der Bekanntmachung der Satzung auf die Voraussetzungen für die Geltendmachung der Verletzung von Verfahrens- und Formvorschriften und die Rechtsfolgen hingewiesen worden ist.

Boxberg/O.L., den 15.04.2024

H. Balko
Bürgermeister