Titel Logo
Lokal-Anzeiger
Ausgabe 1/2023
Stadt Bad Gottleuba-Berggießhübel
Zurück zur vorigen Seite
Zurück zur ersten Seite der aktuellen Ausgabe

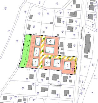
Öffentliche Bekanntmachung der Stadt Bad Gottleuba-Berggießhübel über die öffentliche Auslegung des Entwurfs des Bebauungsplans „Karlsleite  2“

der Stadt Bad Gottleuba-Berggießhübel über die öffentliche Auslegung des Entwurfs des Bebauungsplans „Karlsleite 2“

Der Stadtrat von Bad Gottleuba-Berggießhübel hat in seiner Sitzung am 15. Dezember 2022 mit Beschluss Nr. 764/22 den Entwurf zum Bebauungsplan „Karlsleite 2“ in der Fassung vom 7. November 2022 gebilligt und zur öffentlichen Auslegung bestimmt.

Der Bebauungsplan wird im beschleunigten Verfahren gemäß § 13 b BauGB aufgestellt und hat die Entwicklung eines Wohnstandortes mit Einzel- und Doppelhäusern auf einer brachliegenden ehemaligen Gärtnereifläche zum Ziel.

Zur Planung liegen folgende umweltbezogene Gutachten und Stellungnahmen Träger öffentlicher Belange vor:

-

Spezielle artenschutzrechtliche Prüfung, Schulz UmweltPlanung, vom 01.06.2022

-

Geotechnischer Bericht, Baugrund Sachsen, vom 10.01.2022

-

Stellungnahmen zum Vorentwurf des Bebauungsplans „Karlsleite 2“ i.d.F. vom 25.11.2020 mit den Schwerpunkten Naturschutz, Artenschutz, Gewässerschutz und Bodenschutz (Landratsamt Sächsische Schweiz-Osterzgebirge, Schreiben vom 19.01.2021, LRA Referat Gewässerschutz, Schreiben vom 10.02.2021, Landesamt für Umwelt, Landwirtschaft und Geologie, Schreiben vom 15.03.2021,

Entsprechend § 3 Abs. 2 Baugesetzbuch (BauGB) wird der Entwurf des Bebauungsplans, bestehend aus dem Planteil mit zeichnerischen und textlichen Festsetzungen und der Begründung, mit den oben genannten umweltbezogenen Informationen und Stellungnahmen für die Dauer eines Monats öffentlich ausgelegt, und zwar

vom 06.02.2023 bis einschließlich 08.03.2023

im Rathaus Berggießhübel, Ladenberg 7, Erdgeschoss, Bauverwaltung in 01816 Bad Gottleuba-Berggießhübel OT Berggießhübel, zu folgenden Dienstzeiten:

Dienstag

9:00 - 12:00 Uhr und 13:00 - 18:00 Uhr

Donnerstag

9:00 - 12:00 Uhr und 13:00 - 16:00 Uhr

Freitag

9:00 - 12:00 Uhr

Während dieser Zeit besteht die Möglichkeit, in den Bebauungsplanentwurf mit allen oben aufgezählten Teilen sowie in die wesentlichen umweltbezogenen Informationsquellen einzusehen. Die Unterlagen sind zusätzlich über das Zentrale Landesportal Bauleitplanung unter www.bauleitplanung.sachsen.de, sowie auf der Homepage der Stadt Bad Gottleuba-Berggießhübel unter www.stadt-bgb.de einsehbar.

Während dieser Auslegungsfrist können von jedermann Hinweise und Anregungen zum Entwurf der o.g. Planung schriftlich oder mit telefonischer Terminvereinbarung zur Niederschrift vorgebracht werden. Nicht fristgemäß abgegebene Stellungnahmen können bei der Beschlussfassung über den Bebauungsplan unberücksichtigt bleiben.

Stadt Bad Gottleuba-Berggießhübel, 09.01.2023
Th. Peters, Bürgermeister