Titel Logo
Lokal-Anzeiger - Amtliches Mitteilungsblatt Bad Gottleuba-Berggießhübel, Liebstadt, Bahretal
Ausgabe 1/2025
Stadt Bad Gottleuba-Berggießhübel
Zurück zur vorigen Seite
Zurück zur ersten Seite der aktuellen Ausgabe

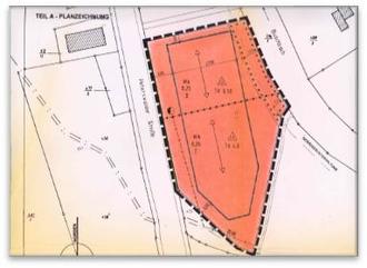
Bauerwartungsland zu verkaufen!

Stadt Bad Gottleuba-Berggießhübel

Staatlich anerkanntes Moorheilbad und staatlich anerkannter Kneippkurort

Größe: 1638 m²

Kaufpreis: nach Gebot

Kreis: Sächsische Schweiz-Osterzgebirge

Gemeinde: Stadt Bad Gottleuba-Berggießhübel

Flurstück: Teilfläche 65/26

Gemarkung: Hellendorf

Objektart: Allgemeines Wohngebiet

gem. § 4 Baunutzungsverordnung (BauNVO)

Bauweise: Einzel- und Doppelhäuser

Erschließung: teilweise erschlossen (Trinkwasser und Energie), die Entwässerung muss mit einer dezentralen Anlage erfolgen, die Verkehrserschließung erfolgt unmittelbar von der Peterswalder Straße

Das Geotechnische Gutachten und der Bebauungsplan können auf Nachfrage eingesehen werden. Informationen zur Ausschreibung erhalten Sie unter www.stadt-bgb.de oder telefonisch unter Telefon: 035023 / 66837.

Kaufpreisgebote richten Sie bitte an:

Stadt Bad Gottleuba-Berggießhübel

Liegenschaften

Königstraße 5

01816 Bad Gottleuba-Berggießhübel

Diese Ausschreibung richtet sich vorrangig an Interessenten mit dem Ziel ein Eigenheim zu errichten. Es können einzelne noch zu vermessende Teilflächen (Größe zwischen 800 und 1638 m²) des Plangebietes erworben werden.