Titel Logo
Dahlener Nachrichten - Amtliches Mitteilungsblatt der Stadt Dahlen
Ausgabe 7/2025
Öffentliche Bekanntmachungen
Zurück zur vorigen Seite
Zurück zur ersten Seite der aktuellen Ausgabe

Öffentliche Bekanntmachung Bebauungsplan Löwenbrauerei

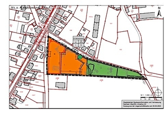
Öffentliche Beteiligung zum Entwurf des vorhabenbezogenen Bebauungsplans „Löwenbrauerei“ gemäß BauGB der Stadt Dahlen

Der Stadtrat der Stadt Dahlen hat in seiner Sitzung am 19.06.2025 den Entwurf des vorhabenbezogenen Bebauungsplans „Löwenbrauerei“ gebilligt und zur förmlichen Beteiligung der Öffentlichkeit gemäß § 3 Abs. 2 BauGB bestimmt (Beschluss 26/2025).

Gleichzeitig wird die förmliche Beteiligung der Behörden und sonstigen Träger öffentlicher Belange, deren Aufgabenbereich durch die Planung berührt werden kann, gemäß § 4 Abs. 2 BauGB und die Abstimmung mit den Nachbargemeinden durchgeführt.

Das Plangebiet befindet sich in der Südstraße in 04774 Dahlen und umfasst eine Verkaufsfläche von ca. 1.150 m² (incl. Lebensmittelhandwerker). Die Fläche grenzt direkt an die Südstraße und den Malkwitzer Weg an.

Als Voraussetzung für die Realisierung des Vorhabens muss die brachgefallene und denkmalgeschützte Bausubstanz der ehemaligen Löwenbrauerei abgebrochen und der vorhandene Vegetationsbestand weitgehend beseitigt werden.

Unter Berücksichtigung des § 1 Abs. 5 sowie des § 1 Abs. 6 BauGB werden mit der Aufstellung des vorhabenbezogenen Bebauungsplanes folgende Planungsziele angestrebt:

-

Schaffung von Baurecht für den geplanten Nahversorgungsstandort

-

Sicherung der Verkehrserschließung

-

Sicherung der Ver- und Entsorgung, insbesondere der Entsorgung des Regenwassers

-

Berücksichtigung der Umweltbelange (grünordnerische Maßnahmen und Bewertung von Artenschutzbelangen, insbesondere des Schallschutzes für die umgebende Wohnbebauung)

Der Entwurf des vorhabenbezogenen Bebauungsplans liegt mit Begründung, Rechtsplan, Lageplänen, Ansichten, Schnitten, Leitungsplan, Grünordnung und Artenschutz, Grünordnungspläne, schalltechnischer Untersuchung, Auswirkungsanalyse und geotechnischem Bericht nach der ortsüblichen Bekanntmachung im Rahmen der Beteiligung öffentlich zur Einsichtnahme und zur Äußerung vom

16.07.2025 bis einschließlich 15.08.2025

während der nachfolgenden Öffnungszeiten in den

Räumlichkeiten der Stadtverwaltung Dahlen, Markt 4, 04774 Dahlen aus.

Dienstag

09.00 - 12.00 Uhr / 13.30 - 16.00 Uhr

Donnerstag

09.00 - 12.00 Uhr / 13.30 - 18.00 Uhr

Außerhalb der Öffnungszeiten sind Termine nach Vereinbarung möglich.

Der Inhalt der ortsüblichen Bekanntmachung, der Entwurf des vorhabenbezogenen Bebauungsplans mit seiner Begründung sowie Rechtsplan, Lagepläne, Ansichten, Schnitte, Leitungsplan, Grünordnung und Artenschutz, Grünordnungspläne, schalltechnische Untersuchung, Auswirkungsanalyse und geotechnischer Bericht sind im Internet auf folgenden Seiten verfügbar:

https://www.heidestadt-dahlen.de/rathaus/aktuelles/oeffentliche-bekanntmachung/

sowie über das zentrale Landesportal unter www.buergerbeteiligung.sachsen.de

Stellungnahmen können während der Auslegungsfrist abgegeben werden. Die Abgabe von Stellungnahmen kann beispielsweise auch elektronisch per E-Mail an info@rathaus-dahlen.de erfolgen. Es wird darauf hingewiesen, dass nicht fristgerecht abgegebene Stellungnahmen bei der Beschlussfassung über den Bauleitplan unberücksichtigt bleiben können.

Hinweis zum Datenschutz:

Die Verarbeitung personenbezogener Daten erfolgt auf Grundlage des § 3 BauGB in Verbindung mit Art. 6 Abs. 1 Buchst. E DSGVO und dem sächsischen Datenschutzgesetz. Sofern Sie Ihre Stellungnahme ohne Absenderangaben abgeben, erhalten Sie keine Mitteilung über das Ergebnis der Prüfung. Weitere Informationen entnehmen Sie bitte dem Formblatt: „Informationspflichten bei der Erhebung von Daten im Rahmen der Öffentlichkeitsbeteiligung nach BauGB (Art. 13 DSGVO)“, welches mit ausliegt.

 — 

Dahlen, 23.06.2025

gez. Löwe
Bürgermeister