Titel Logo
Amtsblatt für das Amt Döbern-Land (Nichtamtl. Teil)
Ausgabe 19/2025
Nichtamtlicher Teil
Zurück zur vorigen Seite
Zurück zur ersten Seite der aktuellen Ausgabe

Bekanntmachung zur 2. Beteiligung der Öffentlichkeit zum Vorentwurf des Bebauungsplans "Freiflächenphotovoltaikanlage Jämlitz-Klein Düben" im OT Jämlitz der Gemeinde Jämlitz-Klein Düben

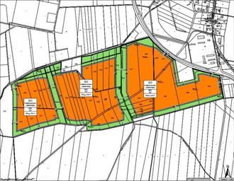
Übersichtskarte

Mit dem Aufstellungsbeschluss vom 28.02.2024 beschloss die Gemeinde Jämlitz-Klein Düben die frühzeitige Beteiligung der Behörden und sonstiger Träger öffentlicher Belange gemäß § 4 Abs. 1 BauGB und die frühzeitige Beteiligung der Öffentlichkeit gemäß § 3 Abs. 1 BauGB. (Beschluss-Nr.: 18-86/24/2024)

Der Vorentwurf des Bebauungsplans "Freiflächenphotovoltaikanlage Jämlitz-Klein Düben" im OT Jämlitz der Gemeinde Jämlitz-Klein Düben nebst Begründung in der Fassung vom 20.11.2024 lag in der Zeit vom 03.02.2025 bis 07.03.2025 öffentlich zur Einsichtnahme im Bauamt der Amtsverwaltung Döbern Land aus.

Am 08.10.2025 beschloss die Gemeindevertretung die Abwägung nach der 1. Beteiligung der Öffentlichkeit und der Beteiligung der Träger öffentlicher Belange und den daraus resultierenden Entwurf des Bebauungsplanes "Freiflächenphotovoltaikanlage Jämlitz-Klein Düben" im OT Jämlitz der Gemeinde Jämlitz-Klein Düben einschließlich der Begründung, des Abwägungsprotokolls, der artenschutzrechtlichen Prüfung nebst Biotopkartierung und des Brandschutznachweises. (Beschluss-Nr.: 18-041/07/2025)

Darüber hinaus wurde durch die Gemeindevertretung in am 08.10.2025 die 2. Beteiligung der Öffentlichkeit zum Entwurf des Bebauungsplanes in der Fassung August 2025 beschlossen. (Beschluss-Nr.: 18-042/07/2025)

Zur 2. Beteiligung der Öffentlichkeit zum Entwurf des Bebauungsplanes in der Fassung August 2025 sind folgende Arten umweltbezogener Informationen verfügbar:

„Beschreibung und Bewertung der eheblichen Umweltauswirkungen“ als inhaltlicher Bestandteil der Begründung zum Entwurf des B-Planes als auch die „spezielle artenschutzrechtliche Prüfung“ und die „Biotopkartierung“

Als Teil der Begründung enthält der Umweltbericht umweltrelevante Informationen zur Bestandsaufnahme und zu Bewertungen des Umweltzustandes sowie die Prognose / Bewertung der Auswirkungen der Planung. Die Kernaussagen im Hinblick auf die Auswirkungen der Planung stellen sich im Umweltbericht und in den weiteren umwelt- und artenschutzrechtlichbezogenen Stellungnahmen wie folgt dar:

Art der Information

Begründung mit Umweltbericht Stand 2025:

Trinkwasserschutzgebiete sind von der Planung nicht betroffen ebenso gehört das Gebiet nicht zu den nitratbelasteten Gebieten in Brandenburg, die potenzielle Nitrataustragungsgefährdung wird als gering eingeschätzt.

Aufgrund der Rammung/Einschraubung der Pfosten in den Untergrund treten nur punktuell und sehr kleinflächig Einschränkungen des Bodens auf. Die Verrieselung bzw. Grundwasserneubildungsrate wird dementsprechend nur marginal eingeschränkt. Insgesamt werden maximal 2 % der Fläche versiegelt

Für die Erschließung sind wasserdurchlässige Elemente zu verwenden.

Begründung mit Umweltbericht Stand 2025:

Die Vorhabenplanung führt vornehmlich zur Inanspruchnahme von intensiv genutzter Ackerfläche. Die Bodenversiegelung durch Überbauung ist als Eingriff im Sinne des § 1a Abs. 3 BauGB i.V.m. § 18 Abs. 1 BNatSchG zu beurteilen. Durch die mögliche Versiegelung wird dem Boden die natürliche Bodenfunktion als Lebensraum für Tiere und Pflanzen entzogen

Durch die Bauzeitenregelungen kann ein zu erwartendes Konfliktpotential der Avifauna weitestgehend ausgeschlossen werden.

Es werden Vermeidungsmaßnahmen zur Reduzierung der erheblichen Beeinträchtigungen festgesetzt (V1-V4)

Es werden Ersatzmaßnahmen für die verbleibenden erheblichen Beeinträchtigungen festgesetzt.

Begründung mit Umweltbericht Stand 2025

Umliegend zum Geltungsbereich befinden sich einige Schutzgebiete. Das nächstliegende FFH-Gebiet (Natura 2000) ist die „Zschornoer Heide“, eine Special Protection Area (Vogelschutzgebiet) mit einer Fläche von 0,23 ha. Die „Zschornoer Heide“ ist Teil des Zschornoer Waldes, einem rund 1,84 ha großem Naturschutzgebiet.

Begründung mit Umweltbericht Stand 2025

In einem Abschnitt des Vorhabenbereichs besteht aufgrund fachlicher Kriterien die begründete Vermutung, dass hier bislang noch nicht aktenkundig gewordene Bodendenkmale im Boden verborgen sind.

Begründung mit Umweltbericht Stand 2025

Es ist eine Eingrünung der Vorhabenflächen am nordöstlichen Rand des Geltungsbereiches vorgesehen.

Begründung und Umweltbericht Stand 2025

Der Geltungsbereich liegt nahezu ausschließlich im Bereich von Schmelzwassersedimenten (glazifluviatile Ablagerungen) der Hochflächen. Am nordöstlichen Rand angrenzend befinden sich periglaziäre bis fluviatile Sedimente

Für die Inanspruchnahme von Boden wurden Ersatzmaßnahmen festgesetzt.

Begründung mit Umweltbericht Stand 2025

Altlastenverdachtsflächen (Altablagerungen/Altstandorte, Bodenkontaminationen) sind im Plangebiet nicht bekannt. Sollten sich im Zuge der Durchführung der Planung jedoch Hinweise auf Altlasten ergeben, ist die Untere Bodenschutzbehörde unverzüglich zu informieren

Der Vorentwurf des Bebauungsplans "Freiflächenphotovoltaikanlage Jämlitz-Klein Düben" im OT Jämlitz der Gemeinde Jämlitz-Klein Düben nebst Begründung in der Fassung August 2025 liegt in der Zeit

vom 30.10.2025 bis einschließlich 30.11.2025

öffentlich zur Einsichtnahme im Bauamt der Amtsverwaltung Döbern Land aus.

Die Unterlagen, die Gegenstand der öffentlichen Auslegung sind, werden gemäß § 4a BauGB zusätzlich in das Internet eingestellt und können während der Auslegungsfrist auf der Homepage des Amtes Döbern Land www.amt-doebern-land.de unter der Rubrik unter „Informationen aus den Fachbereichen / Bauen und GLM“ eingesehen werden.

Die Unterlagen können während der Dienstzeiten der Amtsverwaltung Döbern Land:

Montag, Mittwoch, Donnerstag:

09:00 – 12:00 und 13:00 – 16:00 Uhr

Dienstag:

09:00 – 12:00 und 13:00 – 18:00 Uhr

Freitag:

08:00 – 11:00 Uhr

im Fachbereich 3 Bauen, Gebäude- und Liegenschaftsmanagement (GLM); Schulstraße 1, 03130 Spremberg, OT Hornow, Zimmer 202, eingesehen werden. Eine Einsichtnahme außerhalb der Dienstzeiten ist nach vorheriger telefonischer Absprache (Tel.: 035600 / 368 771) möglich.

Abgabe von Stellungnahmen

Während der Auslegungsfrist können von jedermann Hinweise, Bedenken und Anregungen zum Entwurf schriftlich oder während der Dienstzeiten zur Niederschrift vorgebracht werden. Ihre Stellungnahme richten Sie bitte vorzugsweise per E-Mail an bauleitplanung@regionalplan-uvp.de sowie in CC an post@amt-doebern-land.de oder postalisch (hiervon ist bitte abzusehen) an folgende Adresse:

planungsbüro peter stelzer GmbH

Grulandstraße 2

49832 Freren

Sie können auch schriftlich an das Amt an o.g. Adresse gesendet werden.

Zu Zwecken der eindeutigen Zuordnung geben Sie für Ihre Stellungnahme bitte den Namen des Bebauungsplanes „Photovoltaikfreiflächenanlage Jämlitz-Klein Düben“ an.

Nicht fristgerecht vorgebrachte Hinweise können gem. § 4 a Abs. 6 BauGB bei der Beschlussfassung unberücksichtigt bleiben, sofern die Gemeinde Wiesengrund/Łukojce deren Inhalt nicht kannte und nicht hätte kennen müssen und deren Inhalt für die Rechtmäßigkeit des Bebauungsplanes nicht von Bedeutung ist.

Es wird darauf hingewiesen, dass ein Antrag nach § 47 Verwaltungsgerichtsordnung unzulässig ist, soweit mit ihm Einwendungen geltend gemacht werden, die vom Antragsteller im Rahmen der Auslegung nicht oder verspätet geltend gemacht wurden, aber hätten geltend gemacht werden können.

Es wird darauf hingewiesen, dass der Inhalt der zur Einsicht ausgelegten Unterlagen maßgeblich ist.

Vereinigungen im Sinne des § 4 Abs. 3 Satz 1 Nr. 2 des Umwelt-Rechtsbehelfsgesetzes sind in einem Rechtsbehelfsverfahren nach § 7 Abs. 2 des Umwelt-Rechtsbehelfsgesetzes gem. § 7 Abs. 3 Satz 1 des Umwelt-Rechtsbehelfsgesetzes mit allen Einwendungen ausgeschlossen, die sie im Rahmen der Veröffentlichungsfrist nicht oder nicht rechtzeitig geltend gemacht haben, aber hätten geltend machen können.

Hinweis zum Datenschutz

Die Verarbeitung personenbezogener Daten erfolgt auf Grundlage des § 3 BauGB in Verbindung mit Art. 6 Abs. 1 Buchst. e DSGVO und dem Brandenburgischen Datenschutzgesetz. Sofern Sie ihre Stellungnahme ohne Absenderangaben abgeben, erhalten Sie keine Mitteilung über das Ergebnis der Prüfung. Weitere Informationen entnehmen Sie bitte dem Formblatt: „Informationspflichten bei der Erhebung von Daten im Rahmen der Öffentlichkeitsbeteiligung nach BauGB (Art. 13 DSGVO)“, welches mit ausliegt.

Döbern, den 14.10.2025

gez. M. Mahnke
Amtsdirektorin