Titel Logo
Amtsblatt Stadt Dessau-Roßlau
Ausgabe 1/2025
Aus dem Rathaus
Zurück zur vorigen Seite
Zurück zur ersten Seite der aktuellen Ausgabe

Immobilienangebot der Stadt Dessau-Roßlau

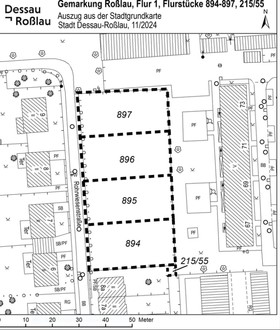
Die Stadt Dessau-Roßlau beabsichtigt, vier Baugrundstücke für die Errichtung von Einfamilienhäusern zu verkaufen.

Die Baugrundstücke liegen im Stadtteil Roßlau der Stadt Dessau-Roßlau. Die Grundstücke haben eine durchschnittliche Größe von 550 qm und sind zur sofortigen Bebauung geeignet. Alle weiteren relevanten Informationen entnehmen Sie bitte dem Exposè auf der Internetseite der Stadt Dessau-Roßlau.

Interessenten werden gebeten, Ihr Angebot für ein zu benennendes Grundstück/Flurstück unter Beifügung eines Bebauungskonzeptes/-vorstellung bis zum 30. April 2025 bei der Stadt Dessau-Roßlau, Amt für Wirtschaft und Stadtplanung/Grundstücksverkehr, Zerbster Straße 4, 06844 Dessau-Roßlau im verschlossenen Umschlag mit der Aufschrift „Nicht öffnen! Betrifft Ausschreibung Rohrwiesenstraße“ abzugeben (Poststempel/persönliche Abgabe). Eingänge nach dem 30. April 2025 können nicht berücksichtigt werden.

Bei dieser Anzeige handelt es sich um eine Gebotsabgabe. Die Zuschlagserteilung ist nicht rechtsmittelfähig. Eine erneute Ausschreibung bleibt vorbehalten. Angaben sind ohne Gewähr.

Ausführliche Informationen zum Objekt unter: Tel. 0340 204 2226 oder

www.dessau-rosslau.de > Immobilienangebote.