Titel Logo
Lokal-Anzeiger – Amtliches Mitteilungsblatt Stadt Dohna und Gemeinde Müglitztal
Ausgabe 4/2024
Stadt Dohna
Zurück zur vorigen Seite
Zurück zur ersten Seite der aktuellen Ausgabe

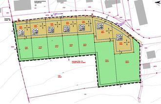
Bekanntmachung über die Beteiligung der Öffentlichkeit zum Entwurf des Bebauungsplanes „Sürßen I“

Der Stadtrat der Stadt Dohna hat in seiner öffentlichen Sitzung am 27.03.2024 den Entwurf des Bebauungsplanes „Sürßen I“, bestehend aus dem Teil A - Planzeichnung, Teil B Textliche Festsetzungen, Teil C Begründung inkl. Anlagen sowie dem Umweltbericht in der Fassung vom 23.02.2024 gebilligt und zur Offenlage bestimmt.

Der Geltungsbereich des Entwurfes des Bebauungsplanes „Sürßen I“ umfasst eine Teilfläche des Flst. 172 der Gemarkung Sürßen.

Der gebilligte Entwurf des Bebauungsplanes „Sürßen I“, bestehend aus dem Teil A - Planzeichnung, Teil B Textliche Festsetzungen, Teil C Begründung inkl. Anlagen sowie dem Umweltbericht in der Fassung vom 23.02.2024 und die wesentlichen, bereits vorliegenden umweltbezogenen Stellungnahmen werden nach § 3 (2) BauGB in der Zeit vom

22.04.2024 bis 29.05.2024

zu den folgenden Zeiten

Di.

8:30 – 12:00 Uhr und 13:30 – 18:00 Uhr

Mi.

8:30 – 12:00 Uhr

Do.

8:30 – 12:00 Uhr und 13:30 – 15:30 Uhr

Fr.

8:30 – 12:00 Uhr

in der Stadtverwaltung Dohna (Zimmer A 201), Am Markt 10/11, 01809 Dohna öffentlich ausgelegt.

Die auszulegenden Unterlagen werden zusätzlich in das Internet eingestellt und sind unter folgenden Internetadressen abrufbar:

www.bauleitplanung.sachsen.de

www.stadt-dohna.de

Damit wird der Öffentlichkeit Gelegenheit gegeben, während der Auslegungsfrist Stellungnahmen schriftlich oder zur Niederschrift abzugeben. Auch Kinder und Jugendliche sind Teil der Öffentlichkeit. Nicht fristgerecht abgegebene Stellungnahmen können bei der Beschlussfassung zum Entwurf des Bebauungsplanes „Sürßen I“ unberücksichtigt bleiben. Eine Vereinigung im Sinne des § 4 Absatz 3 Satz 1 Nummer 2 des Umwelt-Rechtsbehelfsgesetzes in einem Rechtsbehelfsverfahren nach § 7 Absatz 2 des Umwelt-Rechtsbehelfsgesetzes gemäß § 7 Absatz 3 Satz 1 des Umwelt-Rechtsbehelfsgesetzes ist mit allen Einwendungen ausgeschlossen, die sie im Rahmen der Auslegungsfrist nicht oder nicht rechtzeitig geltend gemacht hat, aber hätte geltend machen können.

Folgende umweltbezogene Informationen sind verfügbar:

Mit dem Umweltbericht erfolgte die Beurteilung der Umweltverträglichkeit des Bebauungsplanes auf Grundlage der Grundsätze und Ziele der übergeordneten Fachplanungen, der Fachgesetze des Bundes und des Freistaates Sachsen sowie der in Gesetzen und Richtlinien verankerten Grenz-, Richt- bzw. Orientierungswerte im Rahmen einer Umweltprüfung.

Im Rahmen der Umweltprüfung wurden bau-, anlagen- und betriebsbedingte Auswirkungen auf alle relevanten Schutzgüter bewertet.

Dohna, 28.03.2024

Dr. Ralf Müller
Bürgermeister