Titel Logo
Lokal-Anzeiger – Amtliches Mitteilungsblatt Stadt Dohna und Gemeinde Müglitztal
Ausgabe 4/2025
Stadt Dohna
Zurück zur vorigen Seite
Zurück zur ersten Seite der aktuellen Ausgabe

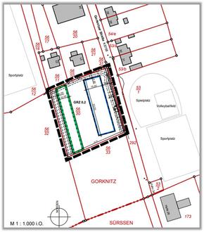
Bekanntmachung über die öffentliche Auslegung des Entwurfes der Ergänzungssatzung für den Bereich des Flst. 56/30 der Gem. Gorknitz

Am 26.03.2025 hat der Stadtrat der Stadt Dohna den Entwurf der Ergänzungssatzung für den Bereich des Flst. 56/30 der Gem. Gorknitz bestehend aus der Planzeichnung, dem Satzungstext, der Begründung, dem Grünordnerischen Fachbeitrag sowie der Baugrund-/Versickerungsuntersuchung mit Stand vom 17.02.2025 gebilligt und zur Offenlage bestimmt.

Die Ergänzungssatzung wird im vereinfachten Verfahren nach § 13 Baugesetzbuch (BauGB) aufgestellt. Gemäß § 13 Abs. 2 und 3 Satz 1 BauGB wird im vereinfachten Verfahren von der Umweltprüfung nach § 2 Abs. 4 BauGB, von dem Umweltbericht nach § 2a BauGB, von der Angabe nach § 3 Abs. 2 Satz 2 BauGB, welche Arten umweltbezogener Informationen verfügbar sind, sowie von der zusammenfassenden Erklärung nach § 10a Abs. 1 BauGB abgesehen; § 4c BauGB ist nicht anzuwenden. Von einer frühzeitigen Beteiligung der Öffentlchkeit wird abgesehen.

Das Plangebiet umfasst das Flurstück 56/30 der Gemarkung Gorknitz mit einer Fläche von 3.138 m².

Der Entwurf der Ergänzungssatzung für den Bereich des Flst. 56/30 der Gem. Gorknitz wird gemäß § 3 Abs. 2 BauGB für die Dauer eines Monats zu jedermanns Einsicht

in der Zeit vom 14.04.2025 bis 23.05.2025

zu den folgenden Zeiten

Di.

8:30 – 12:00 Uhr und 13:30 – 18:00 Uhr

Mi.

8:30 – 12:00 Uhr

Do.

8:30 – 12:00 Uhr und 13:30 – 15:30 Uhr

Fr.

8:30 – 12:00 Uhr

in der Stadtverwaltung Dohna (Zimmer A 201), Am Markt 10/11, 01809 Dohna öffentlich ausgelegt.

Die auszulegenden Unterlagen werden zusätzlich in das Internet eingestellt und sind unter folgenden Internetadressen abrufbar:

www.bauleitplanung.sachsen.de

www.stadt-dohna.de

Die Umweltverbände werden von der öffentlichen Auslegung informiert.

Damit wird der Öffentlichkeit Gelegenheit gegeben, während der Auslegungsfrist Stellungnahmen per Email an bauleitplanung@stadt-dohna.de, schriftlich oder zur Niederschrift abzugeben. Auch Kinder und Jugendliche sind Teil der Öffentlichkeit. Nicht fristgerecht abgegebene Stellungnahmen können bei der Beschlussfassung über die Ergänzungssatzung für den Bereich des Flst. 56/30 der Gem. Gorknitz unberücksichtigt bleiben.

 — 

Dohna, 27.03.2025

Dr. Ralf Müller
Bürgermeister