Titel Logo
Lokal-Anzeiger – Amtliches Mitteilungsblatt Stadt Dohna und Gemeinde Müglitztal
Ausgabe 7/2023
Stadt Dohna
Zurück zur vorigen Seite
Zurück zur ersten Seite der aktuellen Ausgabe

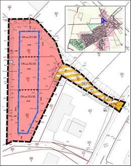
Bekanntmachung über die öffentliche Auslegung des 2. Entwurfes des Bebauungsplanes "Meusegast II"

Am 14.06.2023 hat der Stadtrat der Stadt Dohna den 2. Entwurf des Bebauungsplanes "Meusegast II" bestehend aus dem Teil A - Planzeichnung, dem Teil B - Textliche Festsetzungen sowie der Begründung in der Fassung vom 02.05.2023 gebilligt und zur Offenlage bestimmt.

Der Bebauungsplan wird als Bebauungsplan der Innenentwicklung gemäß § 13a BauGB im beschleunigen Verfahren aufgestellt. Es wird darauf hingewiesen, dass gemäß § 13a Abs. 2 Nr. 1 in Verbindung mit § 13 Abs. 2 und 3 Satz 1 BauGB von der frühzeitigen Unterrichtung und Erörterung nach § 3 Abs. 1 und § 4 Abs. 1 BauGB, von der Umweltprüfung nach § 2 Abs. 4 BauGB, von dem Umweltbericht nach § 2a BauGB und von der Angabe nach § 3 Abs. 2 Satz 2 BauGB, welche Arten umweltbezogener Informationen verfügbar sind, abgesehen wurde.

Das Plangebiet umfasst die Flurstücke 321/12; 321/13; 321/14; 321/15 sowie eine Teilfläche des Flurstückes 159/3 der Gemarkung Meusegast mit einer Fläche von ca. 2.700 m².

Der 2. Entwurf des Bebauungsplanes "Meusegast II" in der Fassung vom 02.05.2023 bestehend aus dem Teil A - Planzeichnung, dem Teil B - Textliche Festsetzungen sowie der Begründung wird

in der Zeit vom 07.08.2023 bis 08.09.2023

zu den folgenden Zeiten

Di.,

8:30 - 12:00 Uhr und 13:30 - 18:00 Uhr

Mi.,

8:30 - 12:00 Uhr

Do.,

8:30 - 12:00 Uhr und 13:30 - 15:30 Uhr

Fr.,

8:30 - 12:00 Uhr

in der Stadtverwaltung Dohna (Zimmer A 201), Am Markt 10/11, 01809 Dohna öffentlich ausgelegt.

Die auszulegenden Unterlagen werden zusätzlich in das Internet eingestellt und sind unter folgenden Internetadressen abrufbar:

www.bauleitplanung.sachsen.de

www.stadt-dohna.de

Die Umweltverbände werden von der öffentlichen Auslegung informiert.

Damit wird der Öffentlichkeit Gelegenheit gegeben, während der Auslegungsfrist Stellungnahmen schriftlich oder zur Niederschrift abzugeben. Auch Kinder und Jugendliche sind Teil der Öffentlichkeit. Nicht fristgerecht abgegebene Stellungnahmen können bei der Beschlussfassung über den Bebauungsplan "Meusegast II" unberücksichtigt bleiben.

Dohna, 21.06.2023

Dr. Ralf Müller
Bürgermeister