Titel Logo
Amtsblatt Lossa Bote - Gemeinde Lossatal mit den Ortsteilen
Ausgabe 2/2023
AMTLICHER TEIL
Zurück zur vorigen Seite
Zurück zur ersten Seite der aktuellen Ausgabe

Aktuelle Wohnungsangebote - Barrierefreie Wohnungen im Ortsteil Hohburg

Die meisten Menschen möchten im Alter solange wie es geht im eigenen Haushalt leben. Um dies den Bürgern in der Gemeinde zu ermöglichen, entstehen derzeit 7 seniorengerechte und barrierefreie 2-Raum-Wohnungen zwischen 57 und 75 m² im 3. Obergeschoss des Kulturhauses in Hohburg, mit Zugang durch einen Fahrstuhl. Der Bezug der Wohnungen ist ab dem 1. Mai 2023 möglich.

Gesamt-m²

Kaltmiete

Betriebskosten

Heizkosten

Miete gesamt

Wohnung 1

70,70

460,00 €

80,00 €

100,00 €

640,00 €

Wohnung 2

75,65

490,00 €

90,00 €

110,00 €

690,00 €

Wohnung 3

70,66

460,00 €

80,00 €

100,00 €

640,00 €

Wohnung 4

58,32

380,00 €

60,00 €

90,00 €

530,00 €

Wohnung 5

60,69

400,00 €

60,00 €

90,00 €

550,00 €

Wohnung 6

57,61

380,00 €

60,00 €

90,00 €

530,00 €

Wohnung 7

63,57

410,00 €

60,00 €

100,00 €

570,00 €

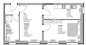
Beispiel Grundriss Wohnung 3:

Sollten Sie Interesse oder Fragen hierzu haben, können Sie sich gerne bei uns melden:

Gemeinde Lossatal

Eigenbetrieb „Wirtschaftsbetrieb Lossatal“

Kapsdorfer Str. 36

04808 Lossatal

verwaltung@wb-lossatal.de

034263 708-22

Der Umbau der 3. Etage im Kulturhaus Hohburg wird durch Fördermittel aus der Förderrichtline LEADER-RL LEADER/2014 finanziert.

Weitere Informationen sowie Grundrisse und Fotos finden Sie auf unserer Internetseite www.lossatal.eu