Titel Logo
Amtsblatt Lossa Bote - Gemeinde Lossatal mit den Ortsteilen
Ausgabe 4/2025
AMTLICHER TEIL
Zurück zur vorigen Seite
Zurück zur ersten Seite der aktuellen Ausgabe

In der öffentlichen Gemeinderatssitzung am 09.04.2025 wurden folgende Beschlüsse gefasst:

709/25-GR

Übertragung von Ansätzen für Auszahlungen und Einzahlungen für Investitionen und Investitionsfördermaßnahmen sowie Übertragung von ordentlichen Aufwendungen in das Jahr 2025

711/25-GR

Vergabe Kopiertechnik für die Gemeindeverwaltung Lossatal

713/25-GR

Vorfinanzierung Teilerneuerung großes Hauswirtschaftskabinett (Schülerküche)

714/25-GR

Vorfinanzierung Umrüstung Flutlichtanlage auf LED-Beleuchtung und Einfriedung Spielfeld auf dem Sportplatz Lüptitz

715/25-GR

Vorfinanzierung zum Bau Flutlichtanlage auf dem Sportplatz Falkenhain

716/25-GR

Annahme von Einzelspenden

Beschluss-Nr. 710/25-GR

vom 09.04.2025 des Gemeinderates Lossatal – öffentlich – TOP 7

Beschluss - Festlegung des Wahltages sowie des Wahltages für den Fall eines etwa notwendig werdenden zweiten Wahlganges der Bürgermeisterwahl im Jahr 2026

Beschluss:

Der Gemeinderat beschließt

folgende Termine für die Bürgermeisterwahl im Jahr 2026 in der Gemeinde Lossatal:

Wahltermin: 22. Februar 2026

Termin eines etwa notwendig werdenden zweiten Wahlganges: 15. März 2026

Weigelt
Bürgermeister

 — 

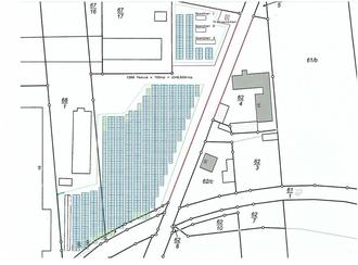
Beschluss-Nr. 712/25-GR

vom 09.04.2025 des Gemeinderates Lossatal – öffentlich – TOP 10

Aufstellungsbeschluss zum Bebauungsplan "PV Anlage mit Batteriespeicher Kleinzschepa"

Beschluss:

Der Gemeinderat beschließt

die Aufstellung eines Bebauungsplanes nach §13 BauGB auf den Flurstücken 67/15, 68/1 und 109a der Gemarkung Kleinzschepa. Der Beschluss ist ortsüblich bekannt zu machen.

Die aus einer Seite bestehenden Anlage 1 mit dem Geltungsbereich ist untrennbarer Bestandteil dieses Beschlusses.

Weigelt
Bürgermeister