Titel Logo
Amtsblatt Lossa Bote - Gemeinde Lossatal mit den Ortsteilen
Ausgabe 5/2023
AMTLICHER TEIL
Zurück zur vorigen Seite
Zurück zur ersten Seite der aktuellen Ausgabe

Aktuelle Wohnungsangebote - Barrierefreie Wohnungen im Ortsteil Hohburg

Die meisten Menschen möchten im Alter solange wie es geht im eigenen Haushalt leben. Um dies einigen/den Bürgern in der Gemeinde zu ermöglichen, entstehen derzeit 7 seniorengerechte und barrierefreie 2-Raum-Wohnungen zwischen 57 und 75 m² im 3. Obergeschoss des Kulturhauses in Hohburg. Der Zugang zu den Wohnungen ist über einen Fahrstuhl möglich.

Folgende Wohnung sind noch frei.

Gesamt-m²

Kaltmiete

Betriebskosten

Heizkosten

Miete gesamt

Wohnung 1

70,70

460,00 €

80,00 €

100,00 €

640,00 €

Wohnung 2

75,65

490,00 €

90,00 €

110,00 €

690,00 €

Wohnung 5

60,69

400,00 €

60,00 €

90,00 €

550,00 €

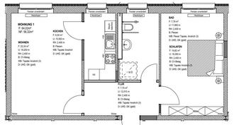
Beispiel Grundriss Wohnung 1:

Sollten Sie Interesse oder Fragen hierzu haben, können Sie sich gerne bei uns melden:

Gemeinde Lossatal

Eigenbetrieb „Wirtschaftsbetrieb Lossatal“

Kapsdorfer Str. 36

04808 Lossatal

verwaltung@wb-lossatal.de

034263 708-22

Der Umbau der 3. Etage im Kulturhaus Hohburg wird im Rahmen der Gemeinschaftsaufgabe der Agrarstruktur und des Küstenschutzes (GAK) durch die Bundesrepublik Deutschland und den Freistaat Sachsen finanziell unterstützt.

Weitere Informationen sowie Grundrisse und Fotos finden Sie auf unserer Internetseite www.lossatal.eu

Steffi Sommermeier
Betriebsleiterin