Titel Logo
Amtsblatt Lossa Bote - Gemeinde Lossatal mit den Ortsteilen
Ausgabe 8/2025
AMTLICHER TEIL
Zurück zur vorigen Seite
Zurück zur ersten Seite der aktuellen Ausgabe

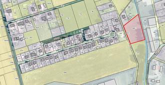
Neuer Pächter für Flurstück 229/4 in Falkenhain gesucht

Der Eigenbetrieb sucht ab sofort einen neuen Pächter für das Flurstück 229/4 in Falkenhain. Das Grundstück ist 4.800 m² groß und eignet sich ideal als Heuwiese oder Weideland. Es ist durch eine Hecke eingefriedet und über den Wirtschaftsweg „An der Lossa“ gut erreichbar.

Bei Interesse melden Sie sich bitte bei Frau Steffi Sommermeier - Tel. 034263/70815 oder per E-Mail verwaltung@wb-lossatal.de