Titel Logo
Amtsblatt für die Stadt Forst (Lausitz)
Ausgabe 7/2024
Amtlicher Teil
Zurück zur vorigen Seite
Zurück zur ersten Seite der aktuellen Ausgabe

Bekanntmachung über die frühzeitige Öffentlichkeitsbeteiligung gemäß § 3 Abs. 1 Baugesetzbuch (BauGB) zum Bebauungsplan „Sport- und Freizeitareal am Wasserturm“ in der Stadt Forst (Lausitz)

Die Stadtverordnetenversammlung der Stadt Forst (Lausitz) hat am 02.12.2022 die Aufstellung des Bebauungsplanes „Sport- und Freizeitareal am Wasserturm“ gemäß § 1 Abs. 3 Satz 1 BauGB i.V.m. § 2 Abs. 1 BauGB beschlossen (Beschlussvorlage SVV/0487/2022(neu)/1). Der Beschluss wurde am 17.12.2022 im Amtsblatt Nr. 07/2022 öffentlich bekannt gemacht.

Planungsziel ist die Ausweisung einer Grünfläche nach § 9 Abs.1 Nr. 15 BauGB mit der Zweckbestimmung „Sport- und Freizeitanlage“ sowie einer Gemeinbedarfsfläche im Sinne des § 9 Abs. 1 Nr. 5 BauGB.

Der Bebauungsplan wird im Regelverfahren mit Durchführung einer Umweltprüfung aufgestellt.

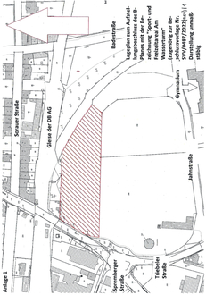
Der Geltungsbereich umfasst ca. 12.175 m² und beansprucht den nördlichen Teil des Flurstücks 255 in der Gemarkung Forst (Lausitz) der Flur 23.

Der räumliche Geltungsbereich ist dem beigefügten Lageplan zu entnehmen.

Gemäß § 3 Abs. 1 BauGB ist die Öffentlichkeit möglichst frühzeitig über Ziele und Zwecke der Planung, sich wesentlich unterscheidende Lösungen, die für die Neugestaltung oder Entwicklung des Gebietes in Betracht kommen und die Auswirkungen der Planung zu unterrichten und ihr ist Gelegenheit zur Äußerung und Erörterung zu geben.

Die frühzeitige Unterrichtung der Öffentlichkeit erfolgt in Form einer Veröffentlichung im Internet sowie in einer öffentlichen Veranstaltung.

Der Vorentwurf des Bebauungsplanes, bestehend aus der Planzeichnung, den textlichen Festsetzungen und der Begründung (jeweils in der Fassung von November 2024), wird gemäß § 3 Abs. 1 BauGB zu jedermanns Einsicht im Zeitraum

vom 09.12.2024 bis einschließlich zum 24.01.2025

auf der Internetseite der Stadt Forst (Lausitz) unter der Rubrik Stadt und Verwaltung/ Aktuelles/Planungsbekanntmachungen

https://www.forst-lausitz.de/planungsbekanntmachungen.130750.htm

sowie auf dem Zentralen Landesportal des Landes Brandenburg unter

https://bb.beteiligung.diplanung.de/

https://diplan.brandenburg.de/

veröffentlicht.

Weiterhin erfolgt eine frühzeitige Öffentlichkeitsbeteiligung in Form einer

öffentlichen Informationsveranstaltung

am Dienstag, den 14.01.2025 um 18 Uhr

im Rathaus der Stadt Forst (Lausitz), Lindenstraße 10-12, 03149 Forst (Lausitz), Raum 203/204.

Ziel dieser Veranstaltung ist, über den aktuellen Planungsstand zu informieren und die Möglichkeit zu geben, Fragen zu stellen sowie Hinweise und Anregungen zu geben.

Die Abgabe von Stellungnahmen kann im Veröffentlichungszeitraum vorgangsbezogen im Planungsportal Brandenburg erfolgen:

https://bb.beteiligung.diplanung.de/

Während der Auslegungs- und Veröffentlichungsfrist können außerdem von jedermann Anregungen, Hinweise und Bedenken zum Vorentwurf auch als digitale Stellungnahme an folgende Email-Adresse gesendet werden: stadtentwicklung@forst-lausitz.de

oder schriftlich an die Stadt Forst (Lausitz), Lindenstraße 10–12 in 03149 Forst (Lausitz) erfolgen oder während der Dienstzeiten

Montag, Mittwoch, Donnerstag

von 09.00 Uhr bis 16.00 Uhr

Dienstag

von 09.00 Uhr bis 18.00 Uhr

Freitag

von 09.00 Uhr bis 12.00 Uhr.

bei der Stadt Forst (Lausitz), im Technisches Rathaus, Fachbereich Stadtentwicklung, Zimmer 218, Cottbuser Straße 10 in 03149 Forst (Lausitz) persönlich eingereicht oder zur Niederschrift vorgebracht werden.

Stellungnahmen, die nicht fristgerecht innerhalb des genannten Zeitraumes abgegeben werden, können im weiteren Verfahren zum Bebauungsplan unberücksichtigt bleiben.

Die Verarbeitung personenbezogener Daten erfolgt auf Grundlage des § 3 BauGB in Verbindung mit Art. 6 Abs. 1 Buchstabe e DSGVO und dem Landesdatenschutzgesetz (LDSG). Sofern Sie ihre Stellungnahme ohne Absenderangaben abgeben, erhalten Sie keine Mitteilung über das Ergebnis der Prüfung. Weitere Informationen entnehmen Sie bitte dem Formblatt: Informationspflichten bei der Erhebung von Daten im Rahmen der Öffentlichkeitsbeteiligung nach BauGB (Art. 13 DSGVO), welches den Planunterlagen bei der der digitalen Veröffentlichung beigefügt wird.

Forst (Lausitz), den 11.11.2024

Simone Taubenek
Hauptamtliche Bürgermeisterin

Anlage: Lageplan Geltungsbereich B-Plan „Sport- und Freizeitareal am Wasserturm“