Titel Logo
Gemeindejournal Märkische Heide – Amtsblatt für die Gemeinde Märkische Heide
Ausgabe 5/2024
Amtliche Bekanntmachungen
Zurück zur vorigen Seite
Zurück zur ersten Seite der aktuellen Ausgabe

Bekanntmachung der Gemeinde Märkische Heide für den Ortsteil Biebersdorf

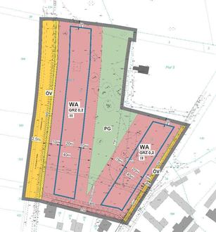
Geltungsbereich des Bebauungsplanes

Ausschnitt Planzeichnung Bebauungsplan

Erneute Öffentliche Auslegung des Entwurfes des Bebauungsplanes „Wohnen am Groß Leuthener Weg“ im OT Biebersdorf in der Fassung vom Januar 2024 nach § 3 Abs. 2 BauGB i. V. m. § 4a Abs. 3 BauGB nur zu den erfolgten Änderungen und Ergänzungen gegenüber der vorherigen Planfassung und

Fortführung des Aufstellungsverfahrens (§ 13b BauGB) ohne Durchführung einer Umweltprüfung nach § 2 Absatz 4 BauGB im beschleunigten Verfahren in entsprechender Anwendung des § 13 a BauGB nach § 215 a Abs. 1 BauGB.

Entwurfsbeschluss

Die Gemeindevertreterversammlung der Gemeinde Märkische Heide hat am 26.02.2024 in öffentlicher Sitzung den Entwurf des Bebauungsplanes „Wohnen am Groß Leuthener Weg“ im OT Biebersdorf in der Fassung vom Januar 2024 sowie die zugehörige Begründung gebilligt. Zu diesem Entwurf wird die Beteiligung der Öffentlichkeit nach § 3 Abs. 2 BauGB i. V. m. § 4a Abs. 3 BauGB durchgeführt.

Der räumliche Geltungsbereich umfasst die Flurstücke 33 (teilweise), 35, 36, 334 (Straßengrundstück L 443) (teilweise) sowie das Gemeindestraßengrundstücke Flurstück 39 (teilweise) und 4 (teilweise) der Flur 1 in der Gemarkung Biebersdorf. Der Geltungsbereich des Bebauungsplanes ist in untenstehender Grafik dargestellt (Darstellung unmaßstäblich), die Bestandteil der Bekanntmachung ist.

Die Aufstellung des Bebauungsplanes soll der Erreichung der planungsrechtlichen Zulässigkeit von privaten Wohngrundstücken dienen und somit einem Bedarf an Investitionen zur Versorgung der Bevölkerung mit Wohnraum Rechnung tragen.

Fortführung des Aufstellungsverfahrens nach § 215 a Abs. 1 BauGB

Das Aufstellungsverfahren wird gemäß § 215 a Abs. 1 BauGB, unter Beachtung der Maßgabe des § 215 a Abs. 3 BauGB in entsprechender Anwendung des § 13 a BauGB weitergeführt. Die Gemeinde kam nach einer Vorprüfung des Einzelfalls entsprechend § 13 a Absatz 1 Satz 2 Nummer 2 zu der Einschätzung, dass der Bebauungsplan voraussichtlich keine erheblichen Umweltauswirkungen hat, die nach § 2 Absatz 4 Satz 4 in der Abwägung zu berücksichtigen sind oder die als Beeinträchtigungen des Landschaftsbildes oder der Leistungs- und Funktionsfähigkeit des Naturhaushalts entsprechend § 1 a Absatz 3 auszugleichen sind. Das Verfahren wird nach Abschluss dieser Vorprüfung des Einzelfalls ohne Durchführung einer Umweltprüfung nach § 2 Absatz 4 fortgesetzt.

Gemäß § 13 Abs. 2 BauGB wird von der frühzeitigen Unterrichtung und der Erörterung nach § 3 Abs. 1 und § 4 Abs. 1 BauGB abgesehen.

Entsprechend § 13 Abs. 3 BauGB wird

  • von einer Umweltprüfung nach § 2 Abs. 4 BauGB,
  • vom Umweltbericht nach § 2a BauGB,
  • von der Angabe nach § 3 Abs. 2 Satz 2 BauGB, welche Arten umweltbezogener Informationen verfügbar sind,
  • sowie von der zusammenfassenden Erklärung nach § 6a Abs. 1 BauGB abgesehen. § 4c BauGB zur Überwachung (Monitoring) ist nicht anzuwenden.

Beteiligung über das Internet

Der beschlossene Entwurf des Bebauungsplanes „Wohnen am Groß Leuthener Weg“ im OT Biebersdorf in der Fassung vom Januar 2024 sowie die zugehörige Begründung (einschließlich verkürztem Umweltbericht) werden zur Beteiligung der Öffentlichkeit im Internet in der Zeit

vom 08.05.2024 bis einschließlich 19.05.2024

unter der nachfolgenden Adresse zu jedermanns Einsicht veröffentlicht.

http:// www.maerkische-heide.de/Verwaltung/Oeffentliche-Auslegung

Zusätzlich stehen diese Unterlagen im zentralen Landesportal unter der nachfolgenden Internetadresse zur Verfügung:

http://bauleitplanung.brandenburg.de

Als Zugangsmöglichkeit, zusätzlich zur Veröffentlichung im Internet, werden die Unterlagen, die Gegenstand der Beteiligung sind, während des o.a. Zeitraumes der Veröffentlichung

während der üblichen Sprechzeiten

Montag von

7.00 Uhr bis 12.00 Uhr

Dienstag von

7.00 Uhr bis 12.00 Uhr und 13.00 Uhr bis 18.00 Uhr

Mittwoch von

7.00 Uhr bis 12.00 Uhr

Donnerstag von

7.00 Uhr bis 12.00 Uhr und 13.00 Uhr bis 17.00 Uhr

Freitag von

7.00 Uhr bis 12.00 Uhr

am Sitz der zuständigen Gemeindeverwaltung Märkische Heide (Schlossstraße 13a, 15 913 Märkische Heide, OT Groß Leuthen, Fachbereich Bauamt) zu jedermanns Einsicht zu den üblichen Sprechzeiten öffentlich ausgelegt.

Abgabe von Stellungnahmen

Während der o. a. Veröffentlichungsfrist können von jedermann Stellungnahmen zum Entwurf, der Gegenstand der Öffentlichkeitsbeteiligung ist, allerdings nur zu den geänderten bzw. ergänzten Teilen und deren möglichen Auswirkungen, bei der Gemeinde abgegeben werden. Auf die Beschränkung der Beteiligung auf die Entwurfsänderungen gem. § 4a Abs. 3 BauGB wird hingewiesen.

Die Stellungnahmen sollen elektronisch übermittelt werden. Die Gemeinde stellt dazu folgende Zugangsmöglichkeit per Mail bereit: bauservice@maerkische-heide.de

Während der Dauer der Veröffentlichungsfrist können von jedermann darüber hinaus Stellungnahmen auch auf einem anderen Weg, zum Beispiel schriftlich oder während der Dienstzeiten bei der oben genannten Adresse der zuständigen Verwaltung zur Niederschrift, abgegeben werden.

Nicht fristgerecht abgegebene Stellungnahmen können gem. § 4 a Abs. 6 BauGB bei der Beschlussfassung über den Bauleitplan unberücksichtigt bleiben, sofern die Gemeinde deren Inhalt nicht kannte und nicht hätte kennen müssen und deren Inhalt für die Rechtmäßigkeit des Bauleitplans nicht von Bedeutung ist.

Hinweis zum Datenschutz

Die Verarbeitung personenbezogener Daten erfolgt auf Grundlage des § 3 BauGB in Verbindung mit Art. 6 Abs. 1 Buchst. e DSGVO und dem Brandenburgischen Datenschutzgesetz. Sofern Sie ihre Stellungnahme ohne Absenderangaben abgeben, erhalten Sie keine Mitteilung über das Ergebnis der Prüfung.

Weitere Informationen entnehmen Sie bitte dem Formblatt: „Informationspflichten bei der Erhebung von Daten im Rahmen der Öffentlichkeitsbeteiligung nach BauGB (Art. 13 DSGVO)“, welches mit ausliegt.

Dieter Freihoff

Bürgermeister