Titel Logo
Helbraer Kommunalanzeiger – Amtliches Mitteilungsblatt mit Bekanntmachungen
Ausgabe 6/2024
Amtliche Bekanntmachungen aus dem Verwaltungsamt
Zurück zur vorigen Seite
Zurück zur ersten Seite der aktuellen Ausgabe

Amtliche Bekanntmachung frühzeitige Beteiligung der Öffentlichkeit

zum vorhabenbezogenen Bebauungsplan Nr. 7 "Altes Sägewerk" Klostermansfeld gemäß § 3 Abs. l des Baugesetzbuches (BauGB)

Aufstellungsbeschluss

Der Gemeinderat der Gemeinde Klostermansfeld hat auf seiner Sitzung am 03.05.2022 den Beschluss Nr. KLM/BV/125/2022 für die Aufstellung des vorhabenbezogenen Bebauungsplans Nr. 7 "Altes Sägewerk" Klostermansfeld gefasst.

Mit der vorhabenbezogener Bebauungsplan Nr. 7 "Altes Sägewerk" Klostermansfeld sollen die planungsrechtlichen Voraussetzungen zur Bebauung des Plangebietes „Altes Sägewerk“ geschaffen werden.

Beteiligung

Die frühzeitige Unterrichtung und Beteiligung der Öffentlichkeit nach § 3 (1) BauGB, die frühzeitige Beteiligung der Nachbargemeiden gemäß § 2 (2) BauGB sowie die frühzeitige Beteiligung der Behörden und sonstigen Träger öffentlicher Belange nach § 4 (1) BauGB wurde am 28.05.2024 mit Beschluss-Nr. KLM/BV/231/2024 festgelegt.

Ziel und Zweck der Planung ist die Ausweisung von Flächen zur baulichen Nutzung als Mischgebiet zur Wohnbebauung mit betreutem Wohnen.

Plangebiet

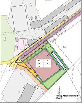
Die Lage des Plangebietes und die Abgrenzung des Geltungsbeeiches des vorhabenbezogenen Bebauungsplans Nr. 7 "Altes Sägewerk" Klostermansfeld ist dem Planauszug zu entnehmen.

Planauszug: vorhabenbezogener Bebauungsplans Nr. 7 "Altes Sägewerk"

Information / Beteiligung

Der Vorentwurf des vorhabenbezogenen Bebauungsplan Nr. 7 "Altes Sägewerk" Klostermansfeld in der Fassung vom 20.02.2024 wird gemäß § 3 Abs. 1 BauGB auf der Internetseite der Verbandsgemeinde Mansfelder Grund-Helbra unter

https://www.verwaltungsamt-helbra.de/buergerservice-3/veroeffentlichungen/

während folgender Zeiten veröffentlicht:

24.06.2024 bis einschließlich 29.07.2024

Zusätzlich zur Veröffentlichung im Internet liegen die o.g. Unterlagen im gleichen Zeitraum zu jedermanns Einsicht öffentlich aus:

Verbandsgemeinde Mansfelder Grund-Helbra, Raum 305, An der Hütte 1, 06311 Helbra

zu den Öffnungszeiten:

Montag

von 09.00 - 12.00 Uhr

Dienstag

von 09.00 - 12. 00 Uhr und 14. 00 - 17.30 Uhr

Mittwoch

geschlossen

Donnerstag

von 09.00 - 12.00 Uhr und 14.00 - 15.30 Uhr

Freitag

von 09.00 - 12.00 Uhr

Während der Veröffentlichungsfrist können von jedermann Stellungnahmen vorgebracht werden. Die Stellungnahmen sollen elektronisch übermittelt werden (office@bresch-und-partner.de ), können bei Bedarf aber auch auf anderen Wegen (z.B. schriftlich und/oder mündlich zur Niederschrift bei der Verwaltung der Verbandsgemeinde Mansfelder Grund-Helbra, Bauverwaltungsamt, SG Bauleitplanung) abgegeben werden.

Nicht fristgemäß abgegebene Stellungnahmen können bei der Beschlussfassung gemäß § 4a Abs. 5 BauGB unberücksichtigt bleiben, sofern die Gemeinde deren Inhalt nicht kannte oder nicht hätte kennen müssen und deren Inhalt für die Rechtmäßigkeit des Bebauungsplans nicht von Bedeutung ist.

Die Veröffentlichung des Vorentwurfs des vorhabenbezogenen Bebauungsplan Nr. 7 „Altes Sägewerk" Klostermansfeld in der Fassung vom 20. Februar 2024 wird hiermit ortsüblich bekanntgemacht.

Hinweis zum Datenschutz

Die Verarbeitung personenbezogener Daten erfolgt auf Grundlage des § 3 BauGB in Verbindung mit Art. 6 Abs. 1 Buchstabe e der DSGVO und dem Datenschutzgesetz (DSAG LSA). Sofern Sie ihre Stellungnahme ohne Absenderangaben abgeben, erhalten Sie keine Mitteilung über das Ergebnis der Prüfung.

Weitere Informationen entnehmen Sie bitte dem Formblatt: „Informationspflichten bei der Erhebung von Daten im Rahmen der Öffentlichkeitsbeteiligung nach BauGB (Art. 13 DSGVO)", welches mit ausliegt.

Klostermansfeld, d. 29.05.2024

F. Ochsner
Bürgermeister