Titel Logo
Königswartha aktuell - Amtsblatt der Gemeinde Königswartha
Ausgabe 6/2025
Aktuelles aus dem Rathaus
Zurück zur vorigen Seite
Zurück zur ersten Seite der aktuellen Ausgabe
-

Meine sehr geehrten Bürgerinnen und Bürger unserer Gemeinde, česćene wobydlerki a česćeni wobydlerjo našeje gmejny,

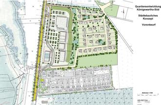
in der vergangenen Gemeinderat-Sitzung im Mai wurde den Gemeinderätinnen und Gemeinderäten sowie der anwesenden Bürgerschaft der aktuelle Stand der „Quartiersentwicklung Königswartha Süd“ durch des vom Investor beauftragte Bauplanungsbüro vorgestellt. Nachdem der Gemeinderat im Januar die Aufstellungsbeschlüsse zur Aufstellung des Bebauungsplanes beschlossen hat, läuft derzeit die frühzeitige öffentliche Beteiligung und die frühzeitige Beteiligung der Behörden und sonstige Träger öffentlicher Belange auf Grundlage der Vorentwürfe. Somit kann man feststellen, dass die Planungsarbeiten für dieses bedeutende Entwicklungsprojekt im Süden unserer Gemeinde in vollem Gange sind. Ich denke, wir haben mit diesem Projekt eine zukunftsweisende Entwicklungschance für unsere Gemeinde und die gesamte Region. Ich freue mich auch über die überaus positive Resonanz aus unserer Bürgerschaft. Dennoch muss ich die Euphorie noch etwas bremsen, da die begonnenen Planungen erst den Anfang bilden. Es wird sicher noch die ein oder andere Hürde zu überspringen sein, bis die ersten Bauarbeiten beginnen können. Den sichtbaren Startschuss des gesamten Vorhabens könnten dann die Abbrucharbeiten der ehemaligen Schweinemastanlage bilden.

Mittlerweile wurden die Arbeiten am Ersatzneubau des Feuerwehrgerätehauses in Wartha begonnen. Dieses große Vorhaben wird unsere Einsatzbereitschaft der Feuerwehrkameradinnen und -kameraden und somit die Sicherheit in unserer Gemeinde erheblich verbessern. Damit werden die Investitionen in die Gebäude der Gemeindefeuerwehr an den einzelnen Standorten weitestgehend abgeschlossen und unsere Gemeinde dann Brandschutztechnisch gut für die nächsten Jahre ausgestattet sein.

In diesem Sinne verbleibe ich mit den besten Grüßen aus dem Rathaus,

Ihr Bürgermeister/Wjesnjanosta
Swen Nowotny