Titel Logo
Gemeindebote - Amtsblatt der Gemeinde Neukieritzsch mit den Ortsteilen
Ausgabe 11/2024
Amtlicher Teil
Zurück zur vorigen Seite
Zurück zur ersten Seite der aktuellen Ausgabe

Öffentliche Bekanntmachung Satzungsbeschluss über die Aufhebung einer Veränderungssperre gemäß § 17 Abs. 4 BauGB

Satzungsbeschluss über die Aufhebung einer Veränderungssperre gemäß § 17 Abs. 4 BauGB

Der Gemeinderat der Gemeinde Neukieritzsch hat am 06.08.2024 mit Beschluss Nr.: GR/100-2024 in öffentlicher Sitzung die Satzung zur Aufhebung einer Veränderungssperre gemäß § 17 Abs. 4 BauGB beschlossen:

Satzung

Zur Aufhebung der Veränderungssperre aus GR/073-2023 für einen Teilbereich des Geltungsbereiches des Bebauungsplanes „Kahnsdorf Nord“

Aufgrund von §§ 14, 16 und 17 Abs. 4 des Baugesetzbuches (BauGB) in der Fassung der Bekanntmachung vom 03. November 2017 (BGBI. I S 3634), das zuletzt durch Artikel 3 des Gesetzes vom 20. Dezember 2023 (BGBI. 2023 I Nr. 394) geändert worden ist, sowie § 4 der Gemeindeordnung für den Freistaat Sachsen (SächsGemO) in der Fassung der Bekanntmachung vom 09. März 2018 (SächsGVBI. S.62), die zuletzt durch Artikel 2 des Gesetzes vom 29. Mai 2024 (SächsGVBI. S. 500) geändert worden ist, hat der Gemeinderat der Gemeinde Neukieritzsch in seiner öffentlichen Sitzung am 12.07.2024 mit Beschluss Nr. GR/084-2024 folgende Aufhebung der Veränderungssperre als Satzung beschlossen:

§ 1

Gegenstand der Satzung

Die mit Satzung vom 27.06.2023 mit Beschluss Nr. GR/073-2023 erlassene Veränderungssperre für einen Teilbereich des Geltungsbereiches des Bebauungsplanes „Kahnsdorf-Nord“ der Gemeinde Neukieritzsch wird aufgehoben. Der räumliche Geltungsbereich der Aufhebungssatzung erstreckt sich auf das in § 2 genannte Gebiet.

§ 2

Räumlicher Geltungsbereich der Veränderungssperre

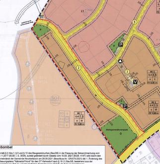
Der räumliche Geltungsbereich der Aufhebungssatzung der Veränderungssperre ist begrenzt auf einen Teilbereich der 1. Änderung, rechtskräftig seit 18.02.2022 des Bebauungsplanes „Kahnsdorf Nord“ rechtskräftig seit 25.10.2014. Der Teilbereich ist auf dem Lageplanausschnitt in Anlage 1 dieser Satzung mit roter Linie gekennzeichnet.

Die Aufhebung der Veränderungssperre bezieht sich auf das im Bebauungsplan festgesetzte Mischgebiet MI 1, einer privaten und öffentlichen Grünfläche, einschließlich der angrenzenden Verkehrsfläche der Straße „Zöpener Seewiesen – 2. Bauabschnitt“. Maßgebend für den räumlichen Geltungsbereich der Aufhebungssatzung der Veränderungssperre ist die Planzeichnung in der Fassung vom 05.07.2021 der 1. Änderung des Bebauungsplans „Kahnsdorf Nord“, rechtskräftig seit 18.02.2022.

§ 3

Rechtswirkung der Aufhebung der Veränderungssperre

Wird die Veränderungssperre durch die Gemeinde durch Aufhebungssatzung aufgehoben, verliert sie ihre Wirksamkeit nicht rückwirkend auf den Zeitpunkt ihres Inkrafttretens, sondern allenfalls für die Zukunft.

§ 4

Inkrafttreten

Die Satzung über die Aufhebung der Veränderungssperre tritt mit der öffentlichen Bekanntmachung in Kraft.

Die Satzung über die Aufhebung der Veränderungssperre kann vom Tage der Bekanntmachung an im Gemeindeamt, Schulplatz 3, 04575 Neukieritzsch während der Öffnungszeiten von jedermann eingesehen werden. Eine telefonische Terminvereinbarung (034342 80312) ist möglich. Über den Inhalt der Satzung wird auf Verlangen Auskunft erteilt.

Auf die Vorschriften des § 18 Abs. 2 Satz 2 Und 3 BauGB über die Fälligkeit etwaiger Entschädigungsansprüche und des § 18 Abs.3 über das Erlöschen von Entschädigungsansprüchen wird hingewiesen.

Hinweis nach § 4 Abs. 4 der Gemeindeordnung für den Freistaat Sachsen (SächsGemO)

Nach § 4 Abs. 4 Satz 1 SächsGemO gelten Satzungen, die unter Verletzung von Verfahrens- oder Formvorschriften zustande gekommen sind, ein Jahr nach ihrer Bekanntmachung als von Anfang an gültig zustande gekommen.

Dies gilt nicht, wenn

1.

Die Ausfertigung der Satzung nicht oder fehlerhaft erfolgt ist,

2.

Vorschriften über die Öffentlichkeit der Sitzungen, der Genehmigung oder die Bekanntmachung der Satzung verletzt worden sind,

3.

Der Bürgermeister dem Beschluss nach § 52 Absatz 2 wegen Gesetzwidrigkeit widersprochen hat,

4.

Vor Ablauf der in Satz 1 genannten Frist

a)

Die Rechtsaufsichtsbehörde den Beschluss beanstandet hat oder

b)

Die Verletzung der Verfahrens- oder Formvorschrift gegenüber der Gemeinde unter Bezeichnung des Sachverhalts, der die Verletzung begründen soll, schriftlich geltend gemacht worden ist.

Ist eine Verletzung nach Satz 2 Nummer 3 oder 4 geltend gemacht worden, so kann auch nach Ablauf der in Satz 1 genannten Frist jedermann diese Verletzung geltend machen. Sätze 1 bis 3 sind nur anzuwenden, wenn bei der Bekanntmachung der Satzung auf die Voraussetzungen für die Geltendmachung der Verletzung von Verfahrens- oder Formvorschriften und die Rechtsfolgen hingewiesen worden ist.

Neukieritzsch, den 07.08.2024

Thomas Meckel
Bürgermeister

Anlage 1

der Satzung zur Aufhebung der Veränderungssperre aus GR/073-2023 für den Teilbereich [MI 1] innerhalb des Geltungsbereiches des Bebauungsplanes „Kahnsdorf Nord – 1. Änderung“

Auszug aus Bebauungsplan „Kahnsdorf Nord – 1. Änderung“

Geltungsbereich der aufgehobenen Veränderungssperre aus GR/073-2023

Und legt diese hiermit öffentlich aus.

Die Satzung, der Geltungsbereich und die Begründung liegen in der Gemeindeverwaltung der Gemeinde Neukieritzsch, Schulplatz 3, 04575 Neukieritzsch, I. OG – Sekretariat Bürgermeister während der folgenden Öffnungszeiten:

Dienstag

9:00 bis 12:00 Uhr und 14:00 bis 18:00 Uhr

Donnerstag

9:00 bis 12:00 Uhr und 14:00 bis 17:00 Uhr

zu jedermanns Einsicht öffentlich aus. Gesonderte Terminvereinbarungen außerhalb dieser Zeiten unter 034342-80312.

Auf der Homepage der Gemeinde Neukieritzsch ist die Satzung unter folgender Internetadresse abrufbar:

https://www.neukieritzsch.de/satzungen

Die Satzung über die Aufhebung der Veränderungssperre wird hiermit nach § 16 Abs. 1 i. V. m. § 17 Abs. 4 BauGB öffentlich bekannt gemacht. Auf die Vorschriften des § 18 des Baugesetzbuches (BauGB) über die fristgemäße Geltendmachung etwaiger Entschädigungsansprüche für eingetretene Vermögensnachteile durch die Veränderungssperre und auf die Fristen über das Erlöschen von Entschädigungsansprüchen gemäß § 44 Abs. 4 BauGB wird hingewiesen.

Außerdem kann eine Verletzung von Verfahrens- und Formvorschriften nach der Sächs. Gemeindeordnung beim Zustandekommen der Satzung nach Ablauf eines Jahres seit dieser Bekanntmachung nicht mehr geltend gemacht werden, wenn sie nicht schriftlich innerhalb eines Jahres seit Bekanntmachung der Satzung gegenüber der Gemeinde unter Bezeichnung der letzten Vorschrift und Tatsache, die den Mangel angibt, geltend gemacht worden ist. Dies gilt nicht, wenn die Vorschriften über die Genehmigung oder die Bekanntmachung verletzt worden sind.

Neukieritzsch, den 08.08.2024

Thomas Meckel
Bürgermeister