Titel Logo
Gemeindebote - Amtsblatt der Gemeinde Neukieritzsch mit den Ortsteilen
Ausgabe 4/2024
Amtlicher Teil
Zurück zur vorigen Seite
Zurück zur ersten Seite der aktuellen Ausgabe

Amtliche Bekanntmachungen der Gemeinde Neukieritzsch

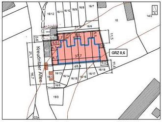
Der Gemeinderat der Gemeinde Neukieritzsch hat in seiner Sitzung am 27.02.2024 den Entwurf zur Ergänzungssatzung „Torhäuser“ (Stand 01/2024) zur förmlichen Beteiligung nach § 3 Abs. 2 BauGB bestimmt.

Das Vorhaben basiert auf der Wohnbauabsicht der KEWI Bau- und Projektverwaltungsgesellschaft als Vorhabenträger, die bereits nördlich der privaten Erschließungsstraße 6 Reihenhäuser gebaut hat. Der Ortsteil Kahnsdorf hat einen kompakten Siedlungskörper und ist folglich als im Zusammenhang bebauter Ortsteil gemäß § 34 BauGB zu bewerten. Am südlichen Rand des Siedlungskörpers befindet sich die einzubeziehende Außenbereichsfläche und umfasst die nördlichen Teile der Flurstücke 16/13, 16/14, 16/15, 16/16, 16/17 und 16/18 der Gemarkung Pürsten, auf denen weitere 6 Reihenhäuser erbaut werden. Das schließt den Siedlungsbereich ab.

Der Entwurf zur Ergänzungssatzung „Torhäuser“ (Stand 01/2024) liegt mit dazugehöriger Begründung (Stand 01/2024) zur Einsicht in der Zeit

vom 02.04. bis 03.05.2024

in der Gemeindeverwaltung Neukieritzsch, Bauamt, 04575 Neukieritzsch, Schulplatz 3, Zimmer 15, während der folgenden Öffnungszeiten:

Dienstag

9:00 bis 12:00 Uhr und 14:00 bis 18:00 Uhr

Donnerstag

9:00 bis 12:00 Uhr und 14:00 bis 17:00 Uhr

aus. Gesonderte Terminvereinbarungen außerhalb dieser Zeiten unter 034342 80325.

Während der Auslegungsfrist können Stellungnahmen schriftlich oder mündlich zur Niederschrift in der Gemeindeverwaltung Neukieritzsch, Bauamt, 04575 Neukieritzsch, Schulplatz 3, Zimmer 15, abgegeben werden. Stellungnahmen können auch per E-Mail an beteiligung@staedtebau-chemnitz.de eingereicht werden.

Die Bekanntmachung und die auszulegenden Planunterlagen werden im oben genannten Zeitraum auf der offiziellen Internetseite der Gemeinde Neukieritzsch unter neukieritzsch.de [unter der Rubrik „Bekanntmachung“] zur Einsichtnahme eingestellt sowie über das Zentrale Landesportal Bauleitplanung Sachsen unter buergerbeteiligung.sachsen.de zugänglich gemacht.

Nicht fristgerecht abgegebene Stellungnahmen können unberücksichtigt bleiben, wenn die Kommune den Inhalt nicht kannte, nicht hätte kennen müssen und deren Inhalt für die Rechtsmäßigkeit des Bebauungsplanes nicht von Bedeutung ist.

Gemeinde Neukieritzsch, 08.03.2024

gez. Thomas Meckel
Bürgermeister