Titel Logo
Gemeindebote - Amtsblatt der Gemeinde Neukieritzsch mit den Ortsteilen
Ausgabe 7/2024
Nichtamtlicher Teil
Zurück zur vorigen Seite
Zurück zur ersten Seite der aktuellen Ausgabe

Informationen zur neuen Kita Lobstädt und zum geplanten Bauablauf

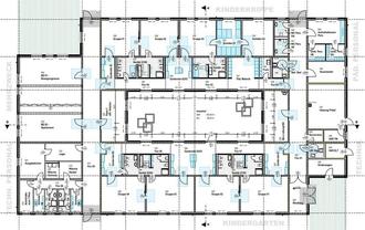
Da mittlerweile die Baugenehmigung für den Neubau des Kindergartens in Lobstädt vorliegt und jetzt auch die finanziellen Mittel bewilligt worden sind, möchten wir Sie über die nächsten Schritte der Bauablaufplanung informieren. Geplant und genehmigt wurde der Ersatzneubau nördlich der Grundschule als moderne eingeschossige Kita mit Kapazitätserweiterung für 90 Kinder [30 Krippen- und 60 Kindergartenkinder]. Davon sind 4 Integrationsplätze für die Kindergartenkinder. Dieser Neubau führt die Zentralisierung [Campus Lobstädt] von regionalen Einrichtungen [Kita, Hort, Schule und Sporthalle] am Standort fort.

EG - Grundriss:

Die geplanten Arbeiten [Bauzeit] dauern voraussichtlich vom 4. Quartal 2024 bis in die zweite Jahreshälfte 2026.

Im Vorfeld erfolgt die Baufreimachung und Baureifmachung - also Maßnahmen der Erschließung [Leitungsumverlegung Mittelspannungskabel], Waldumbau, Wegebau für die Grundwassermeßstelle, Abbau und Einlagerung der Fußballtore und Ballfangkörbe vom Bolzplatz, Grenzfeststellung und Grenzwiederherstellung, der Abbruch und die Beräumung von störenden kleineren Gebäuden, Garagen, Fundamenten und sonstiger Einbauten, Entfernung von Wildwuchs und Unrat, sowie die Beseitigung und Entsorgung von lagernden Schutt und Abfällen unbekannter Herkunft.

Die künftige Zufahrt von der öffentlichen Verkehrsfläche Gartenstraße aus soll gemeinsam für Grundschule und Kita erfolgen, dort wo sich bereits jetzt der Parkplatz für die Grundschule befindet. Zwischenzeitlich muss dieser Bereich als Baustraße und Baustelleneinrichtungsfläche genutzt werden. Für die nun temporär nicht mehr verfügbaren PKW-Stellflächen werden noch Ersatzparkplätze in der näheren Umgebung bekannt gegeben.

Der Baustellenverkehr soll im Wesentlichen aus der Gartenstraße heraus - über die Alt-Witznitzer Straße - in Richtung B 176 geführt werden. Alternativ wird ergänzend die Möglichkeit einer Entlastungsstrecke über den Wirtschaftsweg am Speicher in Richtung Bergisdorfer Straße geprüft. Diese könnte dann zumindest für den leichteren Verkehr genutzt werden.

Die bestehende Zufahrt wird künftig bis zur Kita verlängert und um 7 Stellplätze erweitert [davon 1 Behindertenstellplatz]. Außerdem sollen 16 Fahrrad Parker angeordnet werden. Ein Wendehammer dient der Feuerwehr als Aufstellfläche.

Auszug Lageplan