Titel Logo
Gemeindebote - Amtsblatt der Gemeinde Neukieritzsch mit den Ortsteilen
Ausgabe 8/2024
Amtlicher Teil
Zurück zur vorigen Seite
Zurück zur ersten Seite der aktuellen Ausgabe

Öffentliche Bekanntmachung Satzungsbeschluss der Ergänzungssatzung „Torhäuser Kahnsdorf“ Bekanntmachung gemäß § 34 Absatz 6 i.V.m. § 10 Abs. 3 Baugesetzbuch (BauGB)

Der Gemeinderat der Gemeinde Neukieritzsch hat in seiner Sitzung am 28.05.2024 die Ergänzungssatzung „Torhäuser Kahnsdorf“ der Gemeinde Neukieritzsch nach § 34 Abs. 4 Nr. 3 BauGB in Verbindung mit § 10 BauGB als Satzung beschlossen. Maßgebend sind die Planzeichnung, die textlichen Festsetzungen und die Begründung in der Fassung von Januar 2024 mit den redaktionellen Änderungen von Juni 2024.

Mit dieser Bekanntmachung tritt diese Ergänzungssatzung in Kraft [vgl. § 34 Abs. 6 i.V.m § 10 Absatz 3 BauGB].

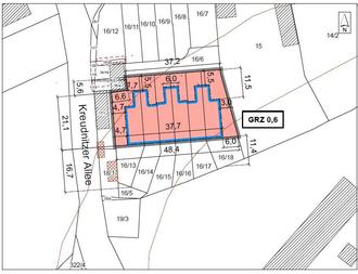
Der räumliche Geltungsbereich der Ergänzungssatzung umfasst Teile der Flurstücke 16/13, 16/14, 16/15, 16/16, 16/17 und 16/18 d er Gemarkung Pürsten, Gemeinde Neukieritzsch

Die folgende Planzeichnung verdeutlicht die Lage des Plangebietes:

Die Ergänzungsatzung einschließlich der Begründung kann bei der Gemeinde Neukieritzsch, Bauamt [EG, links], Schulplatz 3, 04575 Neukieritzsch während der üblichen Dienstzeiten eingesehen werden. Jedermann kann die Satzung einsehen und über ihren Inhalt Auskunft verlangen. Des Weiteren wird die Ergänzungssatzung mit allen Anlagen auch auf der Homepage der Gemeinde Neukieritzsch unter www.neukieritzsch.de und in das zentrale Internetportal des Landes Sachsen unter www.bauleitplanung.sachsen.de eingestellt.

Hinweis gemäß § 215 BauGB:

Unbeachtlich werden

a)

eine nach § 214 Abs. 1 Satz 1 Nr. 1 bis 3 beachtliche Verletzung der dort bezeichneten Verfahrens- und Formvorschriften,

b)

eine unter Berücksichtigung des § 214 Abs. 2 beachtliche Verletzung der Vorschriften über das Verhältnis des Bebauungsplanes und des Flächennutzungsplanes und

c)

nach § 214 Abs. 3 Satz 2 beachtliche Mängel des Abwägungsvorganges,

wenn sie nicht innerhalb eines Jahres seit Bekanntmachung der Satzung schriftlich gegenüber der Gemeinde Neukieritzsch, unter Darlegung des die Verletzung begründeten Sachverhaltes geltend gemacht worden sind.

Hinweis gemäß § 44 BauGB:

Auf die Vorschriften des § 44 Abs. 3 und 4 BauGB über das Erlöschen etwaiger Entschädigungsansprüche nach den §§ 39 bis 42 BauGB wird hingewiesen. Ein Entschädigungsanspruch erlischt, wenn nicht innerhalb von drei Jahren nach Ablauf des Kalenderjahres, in dem die in §§ 39 bis 42 BauGB bezeichneten Vermögensnachteile eingetreten sind, die Fälligkeit des Anspruchs herbeigeführt wird. Die Fälligkeit des Anspruchs kann dadurch herbeigeführt werden, dass die Leistung der Entschädigung schriftlich beim Entschädigungspflichtigen beantragt wird.

Weiterhin wird darauf hingewiesen, dass nach § 4 Abs. 4 Sächsische Gemeindeordnung (SächsGemO) Satzungen, die unter Verletzung von Verfahrens- oder Formvorschriften der SächsGemO zustande gekommen sind, ein Jahr nach ihrer Bekanntmachung als von Anfang an gültig zustande gekommen gelten.

Dies gilt nicht, wenn

1.

die Ausfertigung der Satzung nicht oder fehlerhaft erfolgt ist,

2.

Vorschriften über die Öffentlichkeit der Sitzungen, die Genehmigung oder die Bekanntmachung der Satzung verletzt worden sind,

3.

der Bürgermeister dem Beschluss nach § 52 Abs. 2 SächsGemO wegen Gesetzwidrigkeit widersprochen hat,

4.

vor Ablauf der in § 4 Abs. 4 Satz 1 SächsGemO genannten Frist

a)

die Rechtsaufsichtsbehörde den Beschluss beanstandet hat oder

b)

die Verletzung der Verfahrens- oder Formvorschrift gegenüber der Gemeinde unter Bezeichnung des Sachverhaltes, der die Verletzung begründen soll, schriftlich geltend gemacht worden ist.

Neukieritzsch, den 07.06.2024

gez. Meckel
Bürgermeister