Titel Logo
Goethestadt Kurier - Mitteilungsblatt der Goethestadt Bad Lauchstädt
Ausgabe 4/2024
Titelseite
Zurück zur vorigen Seite
Zurück zur ersten Seite der aktuellen Ausgabe
-

Für die Ortsfeuerwehr Milzau-Klobikau wird ein neues Feuerwehrhaus gebaut

Gerätehaus der Ortsfeuerwehr Klobikau

Gerätehaus der Ortsfeuerwehr Milzau

Flächenansicht nach den Abrissarbeiten - 1

Flächenansicht nach den Abrissarbeiten - 2

Der Kampfmittelbeseitigungsdienst macht sich mit den Verantwortlichen der Goethestadt ein Bild über die Örtlichkeit

Einige markante aber unbedenkliche Fundstücke kamen bei der Geländeuntersuchung zu Tage

Außenansichten des neuen Feuerwehrhauses

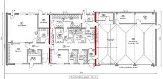
Grundriss der Räumlichkeiten im neuen Feuerwehrhaus

Die Goethestadt Bad Lauchstädt plant die Zusammenlegung der Ortsfeuerwehren der Ortsteile Milzau und Klobikau in einer zentralen Lage des Ausrückungsbereiches im Ortsteil Milzau zur Optimierung der Leistungsfähigkeit der vorhandenen Einsatzkräfte sowie der Technik. Die derzeitige Entfernung beider Feuerwehrhäuser voneinander beträgt ca. 4,7 km. Das neue Feuerwehrhaus liegt demnach für beide Ortsfeuerwehren fast mittig. Die Entfernung vom bisherigen Feuerwehrhaus Klobikau zum neuen Standort beträgt 2,3 km und vom Feuerwehrhaus Milzau 2,4 km.

Die derzeitige Lage in den beiden Ortsteilen stellt sich wie folgt dar: Nach aktueller Situation und bestätigter Risikoanalyse- und Brandschutzbedarfsplanung der Goethestadt Bad Lauchstädt werden derzeit zwei nicht DIN-gerechte Feuerwehrhäuser vorgehalten, die Ortsfeuerwehr in Milzau und die Ortsfeuerwehr in Klobikau. Nach § 4 Absatz 1 der Unfallverhütungsvorschrift „Feuerwehren“ (GUV-V C53) müssen bauliche Anlagen so eingerichtet und beschaffen sein, dass Gefährdungen von Feuerwehrangehörigen vermieden und Feuerwehreinrichtungen sicher untergebracht sowie bewegt und entnommen werden können. Nach § 4 Abs. 2 GUV-V C53 müssen Verkehrswege und Durchfahrten von Feuerwehrhäusern so angelegt sein, dass auch unter Einsatzbedingungen Gefährdungen der Feuerwehrangehörigen durch das Bewegen der Fahrzeuge vermieden werden.

Verantwortlich dafür ist nach § 3 GUV-V C53 der Träger der Feuerwehr, also die Goethestadt Bad Lauchstädt. Sie muss entsprechend gemäß ihren finanziellen Möglichkeiten dafür Sorge tragen, dass alle Feuerwehrhäuser einen DIN-gerechten Zustand erlangen.

Die beiden bestehenden Feuerwehrgerätehäuser in den Ortsteilen Milzau und Klobikau erfüllen den DIN-gerechten Zustand nicht. In der Risikoanalyse der Goethestadt Bad Lauchstädt ist dabei Folgendes zu lesen:

Ortsfeuerwehr Klobikau:

Der Standort Klobikau sichert, dass eine ordnungsgemäße Dienstdurchführung stattfinden kann. Das Feuerwehrgerätehaus entspricht allerdings nicht den Anforderungen der DIN. Die Umkleidemöglichkeiten in der Fahrzeughalle erfüllen nicht den Platzvorgaben. In der Fahrzeughalle fehlt eine Absaugung.

Ausreichende Verkehrswege für Einsatzkräfte sind momentan nicht vorhanden.

Aufgrund der desolaten Platzsituation und der dementsprechenden Einsatzfähigkeit wird ein Zusammenschluss mit der Ortswehr Milzau mittelfristig umgesetzt. Der Standort wird danach aufgegeben.

Ortsfeuerwehr Milzau:

Am Standort Milzau ist ebenfalls sichergestellt, dass ein ordnungsgemäßer theoretischer und praktischer Dienstbetrieb stattfinden kann. Das Objekt erfüllt keine DIN-Anforderungen.

In der Risikoanalyse der Goethestadt Bad Lauchstädt ist der Zusammenschluss der Ortsfeuerwehren Milzau und Klobikau in zwei Stufen vorgesehen. Die erste Stufe umfasst die organisatorische und personelle Zusammenlegung zur Ortsfeuerwehr Milzau-Klobikau, welche bereits teilweise in verschiedenen Bereichen vollzogen wurde und die zweite Stufe umfasst die Zusammenlegung der Feuerwehrhäuser an einem zentralen gemeinsamen Standort im Ortsteil Milzau, für welche nun mit dem Beginn der Bauarbeiten die Voraussetzungen geschaffen werden.

Aufgrund der Gesamtsituation, der Problematik der heutigen und zukünftigen Personalgewinnung, des demographischen Wandels und der Steigerung der Attraktivität der Mitgliedschaft in den Ortsfeuerwehren Milzau und Klobikau war es notwendig, für beide Ortsfeuerwehren ein gemeinsames Feuerwehrgerätehaus zu errichten.

Die Zusammenlegung der beiden Ortsfeuerwehren an einem Standort wird insbesondere im baulichen und ausbildungsmäßigen Bereich und bei der Verbesserung der Einsatzstärke entsprechende Synergieeffekte auslösen.

Bereits die Vergangenheit zeigte, dass die gemeinsame Ausbildung deutliche Verbesserungen in der Dienstbeteiligung zeigt. Weitere Vorteile der Zusammenlegung an diesen einen Standort sind u. a. das Auffangen von Personalproblemen, die Gewinnung von Feuerwehrnachwuchs oder auch von Quereinsteigern.

Ein Feuerwehrhaus mit den entsprechenden Räumlichkeiten und Ausbildungsmedien ist natürlich ansprechender als ein Feuerwehrhaus ohne Schulungsraum, unzureichenden Sanitäranlagen etc. Mit verschiedenen Fahrzeugen in einem Feuerwehrhaus wird natürlich auch der Ausbildungsdienst ganz anders gestaltet werden. Weiterhin führt diese Maßnahme perspektivisch auch zu finanziellen Einsparungen und zu Synergieeffekten. Bereits heute, werden schon jetzt grundsätzlich gemeinsame Ausbildungsdienste absolviert.

Die Ortsfeuerwehr Klobikau wird ebenso bei organisatorischen Belangen durch den Ortswehrleiter der Ortsfeuerwehr Milzau unterstützt. Die Alarmierungsanordnung wurde bereits so angepasst, dass grundsätzlich beide Ortsfeuerwehren zusammen alarmiert werden um den Grundschutz beider Ortsteile abzusichern bzw. Erstmaßnahmen vorzunehmen. Weiterhin werden mit dem Bau eines neuen Feuerwehrhauses an diesem gemeinsamen Standort folgende Effekte erzielt werden:

-

Absicherung der vorhandenen Risiken im Ausrückbereich beider Ortsfeuerwehren;

-

Absicherung der Tageseinsatzbereitschaft;

-

Absicherung der notwendigen Funktionen im Einsatz;

-

Sicherstellung der Eintreffzeit;

-

Optimierung der Feuerwehrstruktur der Freiwilligen Feuerwehr der Goethestadt Bad Lauchstädt.

Unter Berücksichtigung eines erforderlichen Kapazitätszuwachses im Personalbereich ergab sich für den geplanten Neubau folgender Bedarf:

Einsatzkräfte: 22 (18 x männlich, 4 x weiblich);

Jugendfeuerwehr: 6 bis 8 (4 bis 5 x männlich, 2 bis 3 x weiblich);

Kinderfeuerwehr: 13 (8 x männlich, 5 x weiblich);

Fahrzeuge: 3;

Sitzplätze: 21.

Für die funktionale Bereitstellung und Dimensionierung der für die geplanten Kapazitäten der geplanten Räumlichkeiten sowie Sanitärausstattung wurde die DIN 14092-1:2012-04 sowie eine Bedarfsanalyse der Goethestadt Bad Lauchstädt unter Berücksichtigung der aktuellen Situation zugrunde gelegt. Des Weiteren sind die Grundsätze der Feuerwehrunfallkasse zur Vermeidung von Unfällen bei der Planung und Ausführung berücksichtigt worden.

Aus dieser bestehenden Situation heraus wurde schon in der Risikoanalyse der Goethestadt Bad Lauchstädt mit der Zusammenlegung der beiden Ortsfeuerwehren auch der Neubau eines DIN-gerechten Feuerwehrhauses mit Stellplätzen in zentraler Lage im Ortsteil Milzau vorgesehen. Um die Realisierung durchführen zu können, beantragte die Goethestadt Bad Lauchstädt beim Amt für Landwirtschaft-, Flurneuordnung und Forsten Altmark in Stendal mit Schreiben vom 17. März 2022 die Bereitstellung von Fördermitteln. Mit dem Zuwendungsbescheid vom 26. Juni 2023 wurden 750.000,00 Euro Fördermittel (Zuwendung) bewilligt. Die Restsumme zu den Gesamtkosten in Höhe von 2.047.489,07 Euro trägt die Goethestadt Bad Lauchstädt aus Eigenmitteln.

Bei der ausgewiesenen Zuwendung handelt es sich um einen Höchstbetrag, der von den förderfähigen Ausgaben abhängt. Das Vorhaben wird im Rahmen des Entwicklungsprogramms für den ländlichen Raum des Landes Sachsen-Anhalt 2014-2020 (EPLR) und nach den Regularien des Europäischen Landwirtschaftsfonds zur Entwicklung des ländlichen Raums (ELER) aus Mitteln der Verordnung (EU) 2020/2094 zur Schaffung eines Aufbauinstruments der Europäischen Union zur Unterstützung der Erholung nach der COVID 19-Krise (EURI) gefördert. Es handelt sich um einen anteiligen nicht rückzahlbaren Zuschuss als Projektförderung.

Nach Vorlage des Zuwendungsbescheides hat die Goethestadt Bad Lauchstädt unverzüglich die nächsten Schritte zur Realisierung des Bauprojektes gestartet. Nach entsprechenden Ausschreibungen wurden und werden die Vergaben der Bauleistungen durch den Stadtrat der Goethestadt vollzogen.

Durch die Goethestadt Bad Lauchstädt wurde durch Beschluss Nr. 62-09/2023 vom 13. Dezember 2023 des Stadtrates die freihändige Vergabe der Ingenieurleistungen an den wirtschaftlichsten Bieter zu vergeben. Nach erfolgter Ausschreibung wurden die Ingenieurleistungen an das Architektur- und Ingenieurbüro INB (Individuelle-Normgerechte-Bauplanung) aus Halle (Saale) als wirtschaftlichsten Bieter vergeben. Das Büro erarbeitete die Bauplanungsunterlagen für das Objekt: Neubau eines Feuerwehrhauses mit Stellflächen entsprechend den geltenden Richtlinien im Bauwesen für die Feuerwehr.

Gemäß § 34 Abs. 1 BauGB ist ein Vorhaben nur zulässig, wenn es sich nach Art und dem Maß der baulichen Nutzung, der Bauweise, und der Grundstücksfläche, die überbaut werden soll, in die Eigenart der näheren Umgebung einfügt und die Erschließung gesichert ist.

Die Nutzung bisherigen Bauhofflächen und Bauhofgebäude als Ortsfeuerwehr für die Ortsteile Milzau und Klobikau mit verkleinerter örtlicher Bauhofnutzung fügt sich hinsichtlich der Art der Nutzung in die Eigenart der näheren Umgebung ein, die Grundfläche und die Höhe der Gebäude entspricht den umliegenden Gebäuden, die versiegelte Fläche wird durch die Baumaßnahme auf dem Grundstück nicht verändert, die Bauweise des entstehenden Gebäudes fügt sich in die Eigenart der näheren Umgebung ein und auch die ordnungsgemäße Erschließung des Grundstückes ist gewährleistet. Somit konnte die Baugenehmigung für das neue Feuerwehrgebäude an diesem Standort am erteilt werden. Die Baugenehmigung für dieses Feuerwehrhaus wurde am 07. Februar 2024 durch den Landkreis Saalekreis/Untere Bauaufsichtsbehörde / Amt für Bauordnung und Denkmalschutz erteilt.

Der Neubau des Feuerwehrhauses erfolgt auf einer kommunalen Fläche und diese bestand aus mehreren Flurstücken, welche zu einem Baugrundstück vereinigt wurden. Auf selbigem Grundstück betreibt die Goethestadt Bad Lauchstädt gleichzeitig verschiedene Lagerräumlichkeiten des städtischen Bauhofes. Das Grundstück befindet sich in zentraler Lage im Ortsteil Milzau, grenzt an die Kreisstraße K 2158 und besitzt über eine eigene Straßenanbindung an diese Straßenführung.

Auf dem vorgesehenen Gelände befanden sich noch alte Gebäude, welche in Vorbereitung der Baumaßnahme vom beauftragten Bauunternehmen Hoch- und Tiefbau Konetzny aus Barnstädt abgerissen wurden. Die Oberfläche des Baugrundstückes bestand komplett aus Betonelementen. Diese wurden herausgerissen und das Material zur Wiederverwendung geschreddert.

Da die Baufläche seitens des Landkreises Saalekreis als Kampfmittelverdachtsfläche eingestuft wurde, musste anschließend die Fläche für die Untersuchungen des Kampfmittelbeseitigungsdienstes hergerichtet werden. Diese Untersuchung fand im Mitte April 2024 statt. Die Kampfmittelfreigabebescheinigung wurde inzwischen erteilt.

Der Stadtrat der Goethestadt Bad Lauchstädt fasste in seiner Sitzung am 25. April 2024 den Beschluss zur Vergabe der Rohbauleistungen an das Bauunternehmen Hoch- und Tiefbau Konetzny aus Barnstädt als wirtschaftlichsten Bieter.

In den nächsten Wochen und Monaten wird die Vision eines neuen Feuerwehrhauses für die Ortsfeierwehren Milzau und Klobikau nun in die Tat umgesetzt. Den Fortschritt des Baugeschehens kann man vor Ort in Milzau verfolgen.