Titel Logo
Amtliches Mitteilungsblatt der Stadt Schirgiswalde-Kirschau mit den Ortsteilen
Ausgabe 10/2023
Mitteilungen des Bürgermeisters
Zurück zur vorigen Seite
Zurück zur ersten Seite der aktuellen Ausgabe
-

Mitteilung des Bürgermeisters

Was bringt die Zukunft,

in unserer Stadt gibt es sehr unterschiedliche Themenlagen, die diskutiert werden, um die weitere Entwicklung positiv zu gestalten. Wir sehen in letzter Zeit viele engagierte Bürger, die sich bei den Themen miteinbringen und so ein großes Interesse an der Entwicklung unserer Stadt zeigen. Herausforderungen, die vor uns stehen, bedürfen Lösungsansätzen. Diese müssen diskutiert und in einem Prozess abgewogen und zielgerichtet in strategische Planungen mit einfließen. An dieser Stelle möchten wir einen kurzen Überblick geben, welche Themenlagen gerade diskutiert und so in naher Zukunft angepackt werden.

Etablierung des Einzelhandelsstandortes Sauerstraße

Der Stadtrat hat sich einstimmig zum Aufstellungsbeschluss für den Standort Sauerstraße entschieden und so den Weg für den Neubau gelegt. Dieser Standort ist aus unserer Sicht unstrittig, da er im Zentrum von Schirgiswalde die vorhandene Versorgungslücke schließt und die zukünftige Entwicklung unserer Stadt positiv beeinflussen kann. Auch wenn wir nicht unbedingt auf die Themenlagen in den anderen Gemeinden eingehen wollen, möchten ich an dieser Stelle erwähnen, dass ein absolutes Überangebot in unserer Region nur zu Leerständen langfristig führen kann, welche nicht in unserem Sinne sind. Es ist unstrittig, dass wir eine entsprechende Grundversorgung in unserer Stadt benötigen.

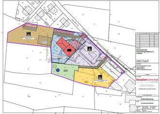
Ersatzneubau Feuerwehrgerätehaus Crostau

Mit den Feuerwehrstandorten in Kirschau und Schirgiswalde haben wir uns langfristig gut aufgestellt und müssen uns an diesen nun um die beständige Kameradschaft kümmern, bei der die Tageseinsatzbereitschaft eine wesentliche Rolle spielt. In der Ortschaft Crostau sind durch die vorhandenen drei Standorte diese Gegebenheiten noch nicht geschaffen. Unser Ziel ist es, durch einen Ersatzneubau auch hier die entsprechenden Grundlagen für die Zukunft zu legen. Eine Machbarkeitsstudie hat ergeben, dass der Standort in Callenberg nicht ausreichend ist, um die Sicherheit nachkommend zu gewährleisten. Wir werden demnächst über unsere Planvorstellungen diskutieren und so auch in der Ortschaft Crostau eine entsprechende Verbesserung der gegenwärtigen Situation herbeiführen. Eine Planskizze zeigt erste Vorstellungen mit der gleichzeitigen Erneuerung des Kindergartenspielplatzes sowie des Spielplatzes an der Turnhalle. In diesem Zusammenhang werden somit auch diese Themen verarbeitet.

Energiemanagement - erneuerbare Energien

Die Diskussion im Stadtgebiet über Standorte für Windkraftanlagen oder großflächige Photovoltaikanlagen nimmt in mancher Gerüchteküche einen Stellenwert sowie eine Darstellung an, die jeglicher Grundlage entbehrt. Fakt ist jedoch, dass wir uns als Stadt der Thematik von gestiegenen Energiekosten und zukünftiger Ausrichtungen stellen müssen, um Handlungsspielräume für freiwillige Aufgaben, wie z. B. die Unterstützung von Vereinen, der Ortschaftsräte oder Veranstaltungen auch in Zukunft zu gewährleisten. Auch hier werden wir in Zukunft verstärkt über die Arbeit des Energiemanagements, welches mittlerweile seit fast einem Jahr bei uns initiiert ist, berichten.

Immobilienkonzeption für die Stadt Schirgiswalde-Kirschau

Mit etwa 50 kommunalen Immobilien hat die Stadt Schirgiswalde-Kirschau einen großen Immobilienbestand. Diesen genauer zu betrachten, Instandhaltungsstaus zu verhindern aber auch strategische Zielstellung für die Stadt zu erarbeiten, hat sich der Stadtrat als Aufgabe gesetzt. Die Beteiligung der Bürger und Transparenz bei diesem Thema ist von entscheidender Bedeutung.

Die Auflistung der Themen ist nicht abschließend. Es wird allerdings ersichtlich, dass entsprechende Herausforderungen vor uns stehen, mit Diskussion, die in einem Abwägungsprozess zu einer Lösung herbeizuführen sind, bleibt es spannend. Im nächsten Jahr werden neue Ortschaftsräte und Stadträte für unsere Stadt gewählt. Ich würde mich freuen, wenn sich weiterhin viele Engagierte finden, die diese Aufgabe wahrnehmen und so zu der weiter guten Entwicklung unserer Stadt beitragen. Vielleicht überlegen Sie sich selbst einmal als Stadtrat oder Ortschafsrat sich mit zu beteiligen.

In diesem Sinne verbleibe ich

mit den besten Grüßen

Sven Gabriel
Bürgermeister