Titel Logo
Unterspreewald-Journal – Mitteilungsblatt mit amtlicher Beilage
Ausgabe 10/2023
Amtliche Bekanntmachungen
Zurück zur vorigen Seite
Zurück zur ersten Seite der aktuellen Ausgabe



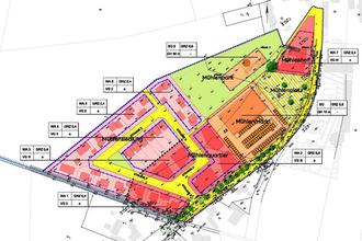
durch öffentliche Auslegung des Vorentwurfs der 1. Änderung und Ergänzung des Bebauungsplans „Mühlenhof Schönwalde" in der Gemeinde Schönwald

Die Gemeindevertretersitzung Schönwald hat in ihrer Sitzung am 12.09.2023 den Vorentwurf des Bebauungsplans „Mühlenhof Schönwalde“ – 1. Änderung und Ergänzung (Fassung vom 20.08.2023) gebilligt und die öffentliche Auslegung gemäß § 3 Abs. 1 BauGB beschlossen. Der Vorentwurf des Bebauungsplans einschließlich der dazugehörigen Begründung sowie das Einzelhandelskonzept wird für die Zeit

vom 16.10.2023 bis einschließlich 20.11.2023

im Amt Unterspreewald, Hauptsitz Golßen, Markt 1, 1.OG, R108, 15938 Golßen sowie in der Nebenstelle Schönwalde, Hauptstraße 49, Bauamt, Zimmer S 006, 15910 Schönwald OT Schönwalde öffentlich ausgelegt

Montag

10.00 bis 12.00 Uhr

Dienstag

09.00 bis 12.00 und 13.00 bis 18.00 Uhr

Mittwoch

10.00 bis 12.00 Uhr

Donnerstag

09.00 bis 12.00 und 13.00 bis 16.00 Uhr

Freitag

10.00 bis 12.00 Uhr

Während der Auslegungsfrist können von jedermann Anregungen und Hinweise schriftlich oder zur Niederschrift vorgebracht werden. Nicht fristgerecht abgegebene Stellungnahmen können bei der Beschlussfassung über den Bebauungsplan unberücksichtigt bleiben.

Der Vorentwurf des Bebauungsplans einschließlich der dazugehörigen Begründung sowie das Einzelhandelskonzept kann auch auf der Internetseite des Amtes Unterspreewald unter https://www.unterspreewald.de eingesehen werden.

Die Beteiligung der Behörden und sonstigen Träger öffentlicher Belange gemäß § 4 Abs. 2 BauGB erfolgt im gleichen Zeitraum.

Hinweise zum Datenschutz

Die Verarbeitung von personenbezogenen Daten erfolgt auf Grundlage des § 3 BauGB in Verbindung mit Art. 6 Abs. 1 Buchst. e DSGVO und dem Brandenburgischen Datenschutzgesetz. Sofern Sie ihre Stellungnahme ohne Absenderangaben abgeben, erhalten Sie keine Mitteilung über das Ergebnis der Prüfung. Weitere Informationen entnehmen Sie bitte dem Formblatt: Informationspflichten bei der Erhebung von Daten im Rahmen der Öffentlichkeitsbeteiligung nach BauGB (Art. 13 DSGVO), welches mit ausliegt.

Abbildung: Geltungsbereich, o. M.

gez. M. Kehling
Amtsdirektor