Titel Logo
Amtsblatt für die Stadt Sonnewalde
Ausgabe 5/2024
Amtliche Bekanntmachungen anderer Behörden
Zurück zur vorigen Seite
Zurück zur ersten Seite der aktuellen Ausgabe

Bekanntmachung über den Einstellungsbeschluss zum Bodenordnungsverfahren Sonnewalde

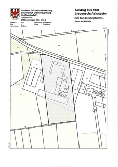
Einstellungsbeschluss

Das mit Anordnungsbeschluss des Landesamtes für Ländliche Entwicklung, Landwirtschaft und Flurneuordnung Luckau vom 31.07.2012 angeordnete und durch 1. Änderungsbeschluss vom 25.09.2013 geänderte

Bodenordnungsverfahren Sonnewalde, Verf.-Nr. 6103 V

wird gemäß § 63 Abs. 2 Landwirtschaftsanpassungsgesetz (LwAnpG) in Verbindung mit § 9 Flurbereinigungsgesetz (FlurbG) eingestellt.

Mit der Einstellung des Verfahrens werden die sich aus dem Beschluss des Landesamtes für Ländliche Entwicklung, Landwirtschaft und Flurneuordnung vom 31.07.2012 und durch 1. Änderungsbeschluss vom 25.09.2013 für das Verfahrensgebiet ergebenen Verfügungsbeschränkungen aufgehoben.

Die im Rahmen des Verfahrens auf Ersuchen der Flurneuordnungsbehörde in den beteiligten Grundbüchern jeweils eingetragenen Zustimmungsvorbehalte werden aufgehoben und sind zu löschen.

1. Gründe

Das Bodenordnungsverfahren wurde zur Zusammenführung von Boden- und Gebäudeeigentum nach dem 8. Abschnitt des Landwirtschaftsanpassungsgesetzes angeordnet. Das Verfahrensgebiet umfasst die Flurstücke 476, 481, 482 und 678 (jetzt neu: Flurstücke 735 und 736) der Flur 2 der Gemarkung Sonnewalde und das Flurstück 214 der Flur 1 der Gemarkung Goßmar sowie das darauf befindliche selbstständige Gebäudeeigentum.

Das Bodenordnungsverfahren wurde nunmehr eingestellt, da dessen Fortführung nicht mehr zweckmäßig erscheint, insbesondere eine dem Verfahrensziel entsprechende Neuordnung der Eigentumsverhältnisse nicht erfolgen kann und auch nicht absehbar ist, dass die erforderlichen Voraussetzungen hierzu in absehbarer Zeit vorliegen.

Eine Vereinbarung der Beteiligten über die Neuordnung der Eigentumsverhältnisse und die Abfindung des weichenden Eigentümers bzw. eine Zustimmung für eine überwiegende oder vollständige Abfindung in Geld liegt nicht vor. Im Ergebnis der durchgeführten Verhandlungen ist mit der Einigung der Beteiligten in absehbarer Zeit auch nicht zu rechnen.

Haben sich die Verfahrensbeteiligten nicht geeinigt, so muss gemäß § 58 Abs. 1 LwAnpG jeder Teilnehmer im Bodenordnungsverfahren für die von ihm abzutretenden Grundstücke durch Land von gleichem Wert abgefunden werden. Die Landabfindung soll in Nutzungsart, Beschaffenheit, Bodengüte und Lage den alten Grundstücken entsprechen. Dementsprechend geeignete Abfindungsflurstücke, die für die Neuordnung der Eigentumsverhältnisse im Bodenordnungsverfahren somit zwingend erforderlich sind, konnten weder von Beteiligten noch von Dritten zur Verfügung gestellt werden.

Die Verfahrensbeteiligten wurden zur Einstellung des Bodenordnungsverfahrens angehört. Gründe, die der Einstellung des Verfahrens entgegenstehen könnten, wurden von den Beteiligten nicht vorgetragen.

Aufgrund der Einstellung des Verfahrens waren die für das Verfahrensgebiet mit dem Beschluss vom 31.07.2012 und durch 1. Änderungsbeschluss vom 25.09.2013 festgesetzten Verfügungsbeschränkungen sowie der im Grundbuch auf Ersuchen der Flurneuordnungsbehörde eingetragenen Zustimmungsvorbehalte aufzuheben.

2. Rechtsbehelfsbelehrung

Gegen diesen Einstellungsbeschluss kann innerhalb eines Monats beim Landesamt für Ländliche Entwicklung, Landwirtschaft und Flurneuordnung, Karl-Marx-Straße 21, 15926 Luckau Widerspruch erhoben werden.

Luckau, den 25.04.2024

Im Auftrag

gez. I. Reppmann
(Regionalteamleiterin)

Anlage: Karten