Titel Logo
Die neue Brücke – Das Amtsblatt der Lutherstadt Wittenberg
Ausgabe 4/2023
Amtliche Bekanntmachungen
Zurück zur vorigen Seite
Zurück zur ersten Seite der aktuellen Ausgabe

Bebauungspläne, Flächennutzungspläne, Offenlegungen

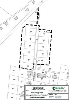
Bebauungsplan A2 "Wohngebiet Bibergrund" Abtsdorf

Der Fachbereich Stadtentwicklung der Lutherstadt Wittenberg unterrichtet die Öffentlichkeit über die Planungsabsichten sowie die voraussichtlichen Auswirkungen der Planung des o.g. Bauleitplanes. Der Bebauungsplan A2 "Wohngebiet Bibergrund" Abtsdorf ist mit Beschluss-Nr. I/347-27-22 vom 01.06.2022 aufgestellt worden.

Der räumliche Geltungsbereich des o. g. Bauleitplanes ist in dem zu dieser Bekanntmachung gehörenden Kartenausschnitt kenntlich gemacht.

Ziel und Zweck dieser Planung:

Ausweisung von Wohnbauflächen

Aussagen aus dem Flächennutzungsplan für den Geltungsbereich:

Ausweisung von Wohnbauflächen

Aussagen aus dem Stadtentwicklungskonzept für den Geltungsbereich:

Die Gestaltung gleichwertiger Lebensverhältnisse erfordert, Themen der Siedlungsentwicklung, die alle Siedlungsbereiche gleichermaßen betreffen, einheitlich zu behandeln.

Hierzu zählen insbesondere Klima, Umwelt, Energie, Wohnungsbau, Daseinsvorsorge, Mobilität und Kommunikation.

In städtebaulich begründeten Einzelfällen kann in Ortschaften wie Abtsdorf, die im Leitbild der Siedlungsstruktur als Versorgungszentren und Knotenpunkte gekennzeichnet sind, für eine begrenzte Zahl von Baugrundstücken eine verbindliche Bauleitplanung aufgestellt werden.

Die Öffentlichkeit kann sich über die allgemeinen Ziele und Zwecke sowie die wesentlichen Auswirkungen der Planung in der Zeit vom 27.02.2023 bis 30.03.2023 im Neuen Rathaus, Bürgerbüro, Lutherstraße 56 während der Dienstzeiten informieren:

Montag

von

8.00 Uhr

bis

12.00 Uhr

Dienstag

von

8.00 Uhr

bis

18.00 Uhr

Mittwoch

von

8.00 Uhr

bis

12.00 Uhr

Donnerstag

von

8.00 Uhr

bis

18.00 Uhr

Freitag

von

8.00 Uhr

bis

12.00 Uhr

Samstag

(1. und 3. im Monat)

von

9.00 Uhr

bis

12.00 Uhr

Die Unterlagen können Sie auch auf der Homepage der Lutherstadt Wittenberg www.wittenberg.de/stadtplanung einsehen.

Lutherstadt Wittenberg, den 09.02.2023

Der Oberbürgermeister