Titel Logo
Amts- und Mitteilungsblatt der Gemeinde Schönwölkau
Ausgabe 2/2025
Öffentliche Bekanntmachungen
Zurück zur vorigen Seite
Zurück zur ersten Seite der aktuellen Ausgabe
-

Öffentliche Bekanntmachung

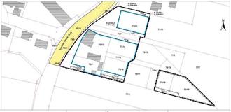
über die Klarstellungs- und Ergänzungssatzung „Krostitzer Straße“, OT Gollmenz, gemäß § 34 Abs. 4 Nr. 3 BauGB der Gemeinde Schönwölkau

Der Gemeinderat der Gemeinde Schönwölkau hat in seiner öffentlichen Sitzung am 16.01.2025 mit Beschluss 02/25 die Klarstellungs- und Ergänzungssatzung „Krostitzer Straße“, OT Gollmenz, mit folgendem Wortlaut beschlossen:

Der Gemeinderat der Gemeinde Schönwölkau beschließt gemäß §34 Abs. 4 Nr. 3 BauGB die Klarstellungs- und Ergänzungssatzung „Krostitzer Straße“, OT Gollmenz, (Stand 27.12.2024) als Satzung. Die Begründung wird gebilligt.“

Die Klarstellungs- und Ergänzungssatzung „Krostitzer Straße“, OT Gollmenz, der Gemeinde Schönwölkau, tritt mit dieser Bekanntmachung in Kraft.

Ab sofort kann der Bebauungsplan mit Begründung auf Dauer in der Gemeindeverwaltung Krostitz, Bauamt, Dübener Straße 1, 04509 Krostitz während der Dienstzeiten eingesehen werden und über den Inhalt Auskunft verlangt werden (§ 6 Abs. 5 BauGB).

Auf die Voraussetzungen für die Geltendmachung der Verletzung von Verfahrens- und Formvorschriften und von Mängeln der Abwägung sowie der Rechtsfolgen des § 215 Abs. 1 BauGB wird hingewiesen.

Unbeachtlich werden demnach

1.

eine nach § 214 Abs. 1 Satz 1 Nrn. 1 bis 3 BauGB beachtliche Verletzung der dort bezeichneten Verfahrens- und Formvorschriften und

2.

nach § 214 Abs. 3 Satz 2 BauGB beachtliche Mängel des Abwägungsvorgangs,

wenn sie nicht innerhalb eines Jahres seit Bekanntmachung der Klarstellungs- und Ergänzungssatzung schriftlich gegenüber der Gemeinde Krostitz als erfüllende Gemeinde geltend gemacht worden sind. Der Sachverhalt, der die Verletzung oder den Mangel begründen soll, ist darzulegen.

Auf die Vorschriften des § 44 Absatz 3 und 4 BauGB über die fristgemäße Geltendmachung etwaiger Entschädigungsansprüche für den Eingriff in eine bisher zulässige Nutzung durch diese Satzung und über das Erlöschen etwaiger Entschädigungsansprüche wird hingewiesen.

Nach § 4 Abs. 5 i. V. m. Abs. 4 der Sächsischen Gemeindeordnung (SächsGemO) kann die Verletzung von landesrechtlichen Verfahrens- und Formvorschriften gegen diese o.g. Ergänzungssatzung nach Ablauf eines Jahres seit Bekanntmachung nicht mehr geltend gemacht werden.

Dies gilt nicht, wenn:

1.

die Ausfertigung der Klarstellungs- und Ergänzungssatzung „Krostitzer Straße“, OT Gollmenz, der Gemeinde Schönwölkau, nicht oder fehlerhaft erfolgt ist,

2.

Vorschriften über die Öffentlichkeit der Sitzungen, die Genehmigung oder die Bekanntmachung der Klarstellungs- und Ergänzungssatzung verletzt worden sind,

3.

der Bürgermeister dem Beschluss nach § 52 Abs. 2 SächsGemO wegen Gesetzwidrigkeit widersprochen hat,

4.

vor Ablauf der im § 4 Abs. 4 Satz 1 SächsGemO genannten Frist

a)

die Rechtsaufsichtsbehörde den Beschluss beanstandet hat oder

b)

die Verletzung der Verfahrens- oder Formvorschrift gegenüber der Gemeinde unter Bezeichnung des Sachverhaltes, der die Verletzung begründen soll, schriftlich geltend gemacht worden ist.

Ist eine Verletzung nach Ziffern 3 oder 4 geltend gemacht worden, so kann auch nach Ablauf der in § 4 Abs. 4 Satz 1 SächsGemO genannten Frist jedermann diese Verletzung geltend machen.

Schönwölkau, 18.02.2025

Kottenhahn
Bürgermeister