Titel Logo
Amtsblatt der Stadt Oranienbaum-Wörlitz mit den Ortschaften
Ausgabe 4/2023
Amtlicher Teil
Zurück zur vorigen Seite
Zurück zur ersten Seite der aktuellen Ausgabe
-

Öffentliche Bekanntmachung FNP der Stadt Oranienbaum Entwurf

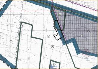
Übersichtsplan, Quelle: Sachsen-Anhalt viewer, Auszug vom 14.03.2023

Geltungsbereich der Änderung des Flächennutzungsplanes, ohne Maßstab

Frühzeitige Beteiligung der Öffentlichkeit gem. § 3 Abs. 2 BauGB zur Änderung des Flächennutzungsplanes Oranienbaum der Stadt Oranienbaum-Wörlitz

Der Stadtrat der Stadt Oranienbaum-Wörlitz hat in seiner öffentlichen Sitzung am 26.03.3021 den Aufstellungsbeschluss für Änderung des Flächennutzungsplanes Oranienbaum in der Stadt Oranienbaum-Wörlitz beschlossen. Der Aufstellungsbeschluss wurde am 03.11.2021 ortsüblich bekannt gemacht.

Ziel und Zweck der Planung

Der Flächennutzungsplan Oranienbaum wurde 1999 wirksam und ist als vorbereitender Bauleitplan das Planwerk für die gesamtgemeindliche Entwicklung im OT Oranienbaum. Der Flächennutzungsplan stellt als Teilflächennutzungsplan der Stadt Oranienbaum-Wörlitz die beabsichtigte städtebauliche Entwicklung für das Gemarkungsgebiet des OT Oranienbaum dar und ist damit das Ergebnis eines grundsätzlichen, politischen sowie fachlichen Planungsprozesses auf Grundlage des Baugesetzbuches.

Im Rahmen des vorliegenden Änderungsverfahrens soll eine Änderung erfolgen, die im weiteren Sinne als Fortschreibung bzw. Anpassung an künftig beabsichtigte Nutzungen zu verstehen ist. Hierzu zählen Entwicklungsabsichten im Bereich des ehemaligen militärischen Geländes an der B 107 mit der teilweise beabsichtigten Nutzung für eine Freiflächenphotovoltaikanlage. Mit dieser Änderung möchte die Stadt Oranienbaum-Wörlitz den geänderten städtebaulichen Zielen Rechnung tragen.

Öffentlichkeitsbeteiligung

Im Rahmen der Öffentlichkeitsbeteiligung gem. § 3 Abs. 2 BauGB liegt in der Zeit

vom 12.04.2023 bis einschließlich 12.05.2023

der Entwurf der Änderung des Flächennutzungsplanes Oranienbaum mit Begründung in der Stadtverwaltung Oranienbaum-Wörlitz, OT Oranienbaum, Franzstr. 1, 06785 Oranienbaum-Wörlitz zu folgenden Zeiten

Montag

geschlossen

Dienstag

9.00 - 12.00 Uhr und 13.00 - 18.00 Uhr

Mittwoch

9.00 - 12.00 Uhr

Donnerstag

9.00 - 12.00 Uhr und 13.00 - 16.00 Uhr

Freitag

geschlossen

zu jedermanns Einsicht öffentlich aus.

In dieser Zeit wird der Öffentlichkeit nach § 3 Abs. 2 BauGB die Gelegenheit zur Äußerung gegeben. Während der Auslegung können von jedermann Stellungnahmen zu den ausgelegten Unterlagen bei der Stadt Oranienbaum-Wörlitz unter o. g. Anschrift abgegeben oder zur Niederschrift vorgetragen werden. Anregungen und Stellungnahmen können auch per E-Mail abgegeben werden, an: bauamt@oranienbaum-woerlitz.de.

Die nachfolgend aufgeführten Planunterlagen, die ausgelegt werden, sind im Zeitraum der frühzeitigen Beteiligung gemäß § 4a Abs. 4 BauGB auch auf der Internetseite der Stadt Oranienbaum-Wörlitz eingestellt und können unter der Adresse:

https://www.oranienbaum-woerlitz.de ⇒ Bürger & Verwaltung ⇒ Bauleitplanung

sowie auf der Internetseite des Landesportals von Sachsen-Anhalt unter der Adresse:

https://www.lvermgeo.sachsen-anhalt.de/de/viewer-gdi-kommunen/main.html

eingesehen werden.

Es wird darauf aufmerksam gemacht, dass Dritte (Privatpersonen) mit der Abgabe einer Stellungnahme der Verarbeitung ihrer angegebenen Daten, wie Name, Adressdaten und E-Mail-Adresse zustimmen. Gemäß Art. 6 Abs. 1c EU-DSGVO werden die Daten im Rahmen des Bebauungsplan-Verfahrens für die gesetzlich bestimmten Dokumentationspflichten und für die Informationspflicht Ihnen gegenüber genutzt.

Die Teilfläche für die beabsichtigte Änderung ist auf der nachfolgenden Übersicht erkennbar:

Nachfolgende Unterlagen sind Bestandteil der öffentlichen Auslegung:

-

Entwurf der Änderung des Flächennutzungsplanes Gegenstand: „Freiflächenphotovoltaikanlage an der B 107“ (Stand Dezember 2022)

-

Begründung zum Entwurf der Änderung des Flächennutzungsplanes Gegenstand: „Freiflächenphotovoltaikanlage an der B 107“ (Stand Dezember 2022)

-

Umweltbericht als Bestandteil der Begründung zur Änderung des Flächennutzungsplanes, mit Ausführungen:

-

Beschreibung und Bewertung der Umweltbelange bei Durchführung des Vorhabens zu den Schutzgütern Mensch, Pflanzen, Tiere und Artenschutz, Boden, Wasser, Klima/Luft, Landschaftsbild, Kultur- und sonstige Sachgüter, Wechselwirkungen

-

Entwicklungsprognosen des Umweltzustandes bei Durchführung

-

Beschreibung der Maßnahmen zur Vermeidung, Verringerung und zum Ausgleich nachteiliger Umweltauswirkungen

-

Prüfung von Planungsalternativen

-

Beschreibung der Maßnahmen des Monitoring

Nicht fristgerecht abgegebene Stellungnahmen können gemäß § 4a (6) BauGB bei der Beschlussfassung über die Änderung des Flächennutzungsplanes unberücksichtigt bleiben. Es wird ebenfalls darauf hingewiesen, dass ein Antrag nach § 47 Verwaltungsgerichtsordnung (VwGO) unzulässig ist, soweit mit ihm Einwendungen geltend gemacht werden, die vom Antragsteller im Rahmen der öffentlichen Auslegung nicht oder verspätet geltend gemacht wurden, aber hätten geltend gemacht werden können.

Oranienbaum-Wörlitz, den 05.04.2023

Strömer
Dienstsiegel
Bürgermeister

Im Original unterschrieben und gesiegelt.