Titel Logo
Zwenkauer Nachrichten - Amtsblatt der Stadt mit ihren Ortsteilen
Ausgabe 12/2023
Amtliche Bekanntmachungen
Zurück zur vorigen Seite
Zurück zur ersten Seite der aktuellen Ausgabe

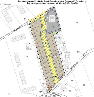
Öffentliche Bekanntmachung der Stadt ZwenkauBebauungsplan Nr. 43 der Stadt Zwenkau „Alte Gärtnerei“ GroßdalzigBebauungsplan der Innenentwicklung §13a BauGBÖffentliche Auslegung des Entwurfes, Beteiligung der Öffentlichkeit

Quelle Kartengrundlage: cardo.geoportal-lkl.de Lageplan Bebauungsplan Nr. 43 „Alte Gärtnerei“ Großdalzig, Ausschnitt Planzeichnung

Der Stadtrat der Stadt Zwenkau hat am 30.11.2023 mit Beschluss Nr. 2023/112-1 in öffentlicher Sitzung dem Entwurf des Bebauungsplanes Nr. 43 der Stadt Zwenkau „Alte Gärtnerei“ Großdalzig in der Fassung vom 10.11.2023 zugestimmt und die Öffentlichkeitsbeteiligung gemäß § 3 Abs. 2 BauGB sowie die Beteiligung der Behörden, Nachbargemeinden und sonstigen Träger öffentlicher Belange gemäß § 4 Abs. 2 BauGB beschlossen.

Das Bebauungsplangebiet befindet sich in Großdalzig, einem Ortsteil der Stadt Zwenkau. Der Geltungsbereich umfasst die Flurstücke 231, 232 und 234 der Gemarkung Großdalzig.

Der Geltungsbereich wird begrenzt durch:

-

die Straße „Am Milchwinkel“ im Süden,

-

der „Eythraer Straße“ im Norden,

-

einem Grundstück mit Mehrfamilienhäusern und Gartennutzung, sowie einem Einfamilienhaus an der Straße „Am Milchwinkel“ im Westen und

-

Einfamilienhäusern, der Halle und Nutzflächen eines Landwirtschaftlichen Betriebes im Osten

Die Art der baulichen Nutzung wird im Flächennutzungsplan als gemischte Baufläche festgesetzt.

Im Nordosten wird eine Fläche für ein Gewerbegebiet gemäß § 8 BauNVO (Gewerbegebiete), ca. 2000 m² groß und auf weiteren Flächen werden Grundstücke für ein Dörfliches Wohngebiet gemäß § 5a BauNVO vorgesehen. Es wird eine lockere, durchgrünte Bebauung mit 11 Einfamilien- oder Doppelhäusern auf ca. 620 bis ca. 765 m² großen Grundstücken angestrebt.

Der Entwurf des Bebauungsplanes Nr. 43 „Alte Gärtnerei“ Großdalzig besteht aus:

-

Zeichnerische und textliche Festsetzungen, Stand 10.11.2023

-

Begründung, Stand 10.11.2023, einschließlich Anlagen

Folgende umweltbezogene Fachgutachten liegen als Anlagen zur Begründung vor:

-

Geotechnischer Bericht, FCB GmbH, Stand 31.05.2021

-

Geruchsemissions- / -immissionsprognose, Ingenieurbüro Ulbricht GmbH, Stand 09.06.2023

-

Schalltechnisches Gutachten, Ingenieurbüro Ulbricht GmbH, Stand 24.07.2023

Der Bebauungsplan Nr. 43 „Alte Gärtnerei“ wurde als Bebauungsplan der Innenentwicklung gemäß § 13a BauGB aufgestellt und wird im beschleunigten Verfahren bearbeitet.

Im beschleunigten Verfahren gemäß § 13a Abs. 2 Nr. 1 BauGB gelten die Vorschriften des vereinfachten Verfahrens nach § 13 Abs. 2 und 3 Satz 1 entsprechend; d.h. es wird

-

von der frühzeitigen Unterrichtung und Erörterung nach § 3 Abs. 1 und § 4 Abs. 1 BauGB abgesehen,

-

die Auslegung nach § 3 Abs. 2 BauGB durchgeführt,

-

die Beteiligung der berührten Behörden und sonstigen Träger öffentlicher Belange nach § 4 Abs. 2 BauGB durchgeführt und

-

von der Umweltprüfung nach § 2 Abs. 4, von dem Umweltbericht nach § 2a, von der Angabe nach § 3 Abs. 2 Satz 2, welche Arten umweltbezogener Informationen verfügbar sind, sowie von der zusammenfassenden Erklärung nach § 6 Abs. 5 Satz 3 und § 10 Abs. 4 abgesehen.

Der Entwurf des Bebauungsplanes Nr. 43 der Stadt Zwenkau „Alte Gärtnerei“ Großdalzig mit Planzeichnung, textlichen Festsetzungen und Begründung, Stand 10.11.2023, wird

vom 22.12.2023 bis einschließlich 31.01.2024

bei der

Stadtverwaltung Zwenkau – Information, Haus A

Bürgermeister-Ahnert-Platz 1,

04442 Zwenkau

während der Dienststunden

Montag/Mittwoch

9.00 Uhr bis 12.00 Uhr und

13.00 Uhr bis 15.30 Uhr

Dienstag

9.00 Uhr bis 12.00 Uhr und

13.00 Uhr bis 18.00 Uhr

Donnerstag

9.00 Uhr bis 12.00 Uhr und

13.00 Uhr bis 17.00 Uhr

Freitag

9.00 Uhr bis 12.00 Uhr

(Ausnahme sind die Schließtage zwischen den Feiertagen vom 27.12. bis 29.12.2023) zu jedermanns Einsicht öffentlich ausgelegt.

Dabei wird Gelegenheit zur Information und Erörterung gegeben. Es wird um vorherige Terminvereinbarung gebeten unter E-Mail: bauamt@stadt-zwenkau.de oder Telefon 034203-509-99.

Der Entwurf des Bebauungsplanes Nr. 43 der Stadt Zwenkau „Alte Gärtnerei“ Großdalzig ist einschließlich der Begründung mit Anlagen im Internet eingestellt und wie folgt abrufbar:

https://www.zwenkau.de /rathaus-verwaltung/bauen-planen/

bebauungsplaene-vorhaben-und-erschliessungsplaene/

oder

https://buergerbeteiligung.sachsen.de/portal/sachsen/beteiligung

Während dieser Auslegungsfrist können von jedermann Hinweise zu den allgemeinen Zielen und Zwecken der Planung, Stellungnahmen, Bedenken und Anregungen zum Bebauungsplanentwurf schriftlich, adressiert an

Stadtverwaltung Zwenkau,

Bauamt,

Bürgermeister-Ahnert-Platz 1

04442 Zwenkau

oder per E-Mail an

bauamt@stadt-zwenkau.de

abgegeben oder im Rathaus der zur Niederschrift vorgetragen werden.

Nicht fristgerecht abgegebene Stellungnahmen können bei der Beschlussfassung über den Bebauungsplan ausgeschlossen werden.

Ein Antrag nach § 47 VwGO (Normenkontrollverfahren) ist unzulässig, soweit mit ihm Einwendungen geltend gemacht werden, die vom Antragsteller im Rahmen der Auslegung nicht oder verspätet geltend gemacht wurden, aber hätten geltend gemacht werden können.

Der Geltungsbereich ist in dem beigefügten Lageplan gekennzeichnet. Der Plan ist unverbindlich und dient nur der ersten Information. Der rechtsverbindliche Geltungsbereich ergibt sich aus dem Original des Bebauungsplans, bzw. aus der Anlage des Stadtratsbeschlusses.

Gleichzeitig mit der Beteiligung der Öffentlichkeit gemäß § 3 Abs. 2 BauGB wird die Beteiligung der Behörden und sonstigen Träger öffentlicher Belange, deren Aufgabenbereiche durch die Planung berührt werden können, gemäß § 4 Abs. 2 BauGB und die Abstimmung mit den Nachbargemeinden gemäß § 2 Abs. 2 BauGB durchgeführt.

Den offengelegten Unterlagen ist ein Datenschutzhinweis beigefügt.

Holger Schulz
Bürgermeister