Titel Logo
Zwenkauer Nachrichten - Amtsblatt der Stadt mit ihren Ortsteilen
Ausgabe 3/2024
Amtliche Bekanntmachungen
Zurück zur vorigen Seite
Zurück zur ersten Seite der aktuellen Ausgabe

Öffentliche Bekanntmachung der Stadt Zwenkau

Quelle Kartengrundlage: cardo.geoportal-lkl.de

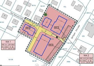
Quelle: Planungsbüro Hanke, Machern Ausschnitt Planzeichnung B-Plan 50 „Rüssen-Kleinstorkwitz, Erweiterung Gartenstraße“

Bebauungsplan Nr. 50 der Stadt Zwenkau „Rüssen-Kleinstorkwitz, Erweiterung Gartenstraße“

Frühzeitige Beteiligung der Öffentlichkeit

Der Stadtrat der Stadt Zwenkau hat am 25.01.2024 mit Beschluss Nr. 2023/142 in öffentlicher Sitzung dem Vorentwurf des Bebauungsplanes Nr. 50 der Stadt Zwenkau „Rüssen-Kleinstorkwitz, Erweiterung Gartenstraße“ in der Fassung von 19.12.2023, zugestimmt und die frühzeitige Öffentlichkeitsbeteiligung gemäß § 3 Abs. 1 BauGB sowie die Beteiligung der Behörden und Träger öffentliche Belange gemäß § 4 Abs. 1 BauGB beschlossen.

Das Bebauungsplangebiet befindet sich im Ortsteil Rüssen-Kleinstorkwitz, nahe des Ortszentrums, an der Zeitzer Straße (B2) und der Gartenstraße.

Der Geltungsbereich wird begrenzt durch:

-

die Zeitzer Straße im Osten,

-

die bebauten Grundstücke an der Gartenstraße und der Lindenstraße im Norden und Westen,

-

Feldflächen im Süden.

Der räumliche Geltungsbereich des Plangebietes umfasst eine Größe von insgesamt rd. 0,5 ha und beinhaltet folgende Flurstücke der Gemarkung Rüssen: 92/32 (Teilfläche) und 92/41.

Der Vorentwurf legt ein städtebauliches Konzept mit einer Vorzugsvariante zur Bebauung der Fläche mit 6 Einfamilienhäusern vor. Das Referenzquartier ist die Bebauung in der bestehenden Gartenstraße und direkt am Siedlungsweg. Die Gebäudegrößen orientieren sich am Bestand sind aber aufgrund der geänderten Anforderungen an die Wohnbedürfnisse der Bauherren in geringem Maße größer als die vorhandenen Siedlungshäuser. Die Ausrichtung sowie die versiegelten Flächen greifen ebenfalls die im Bestand vorzufindenden Parameter auf. Eine GRZ von 0,25 wie im B-Plan als Festsetzung vorgeschlagen, liegt bezogen auf die Haupt- und Nebengebäude im Bestand der Gartenstraße auch vor.

Der Entwurf sieht für die Erschließung die Verlängerung der Gartenstraße und die Einordnung einer Wendeanlage als Leipziger Modell vor. Die Gartenstraße kann zukünftig zur südlich angrenzenden Fläche weitergeführt werden. Zur Zeitzer Straße wird der bestehende Trampelpfad als vollwertiger Geh- und Radweg eingeordnet, so dass die Erschließung der Ortsmitte deutlich verbessert wird.

Durch die Aufstellung des Bebauungsplanes sollen die Planungsrechtlichen Zulässigkeitsvoraussetzungen für eine wohnbauliche Entwicklung geschaffen werden.

Die Art der baulichen Nutzung wird gemäß Flächennutzungsplan als allgemeines Wohngebiet festgesetzt. Demnach sind Festsetzungen gemäß § 4 BauNVO (Allgemeine Wohngebiete) möglich.

Der Vorentwurf des Bebauungsplanes Nr. 50 „Rüssen-Kleinstorkwitz“ besteht aus:

-

Zeichnerische und textliche Festsetzungen, Stand 19.12.2023

-

Begründung, Stand 19.12.2023

Zur frühzeitigen Unterrichtung der Öffentlichkeit und zur Information über die allgemeinen Ziele und Zwecke der Planung und die voraussichtlichen Auswirkungen der Planung werden die Unterlagen zum Vorentwurf mit Begründung in der Zeit

vom 25.03.2024 bis einschließlich 30.04.2024

bei der

Stadtverwaltung Zwenkau – Information, Haus A

Bürgermeister-Ahnert-Platz 1, 04442 Zwenkau

Während der Dienststunden

Montag/Mittwoch

09.00 Uhr bis 12.00 Uhr und

13.00 Uhr bis 15.30 Uhr

Dienstag

09.00 Uhr bis 12.00 Uhr und

13.00 Uhr bis 18.00 Uhr

Donnerstag

09.00 Uhr bis 12.00 Uhr und

13.00 Uhr bis 17.00 Uhr

Freitag

09.00 Uhr bis 12.00 Uhr

zu jedermanns Einsicht öffentlich ausgelegt. Dabei wird Gelegenheit zur Information und Erörterung gegeben. Um vorherige Terminvereinbarung wird dabei gebeten:

E-Mail: b-plan50@stadt-zwenkau.de oder Telefon 034203 509-99.

Der Vorentwurf des Bebauungsplanes Nr. 50 der Stadt Zwenkau „Rüssen-Kleinstorkwitz, Erweiterung Gartenstraße“ ist einschließlich der Begründung mit Anlagen im Internet wie folgt abrufbar:

https://www.zwenkau.de/rathaus-verwaltung/bauen-planen/bebauungsplaene-vorhaben-und-erschliessungsplaene/

oder

https://buergerbeteiligung.sachsen.de/portal/zwenkau/beteiligung/themen

Während dieser Auslegungsfrist können von jedermann Hinweise zu den allgemeinen Zielen und Zwecken der Planung, Stellungnahmen, Bedenken und Anregungen zum Bebauungsplanvorentwurf

per E-Mail gesendet an:

b-plan50@stadt-zwenkau.de

oder schriftlich, adressiert an:

Stadtverwaltung Zwenkau,

Bauamt,

Bürgermeister-Ahnert-Platz 1

04442 Zwenkau

abgegeben oder im Rathaus der zur Niederschrift vorgetragen werden.

Nicht fristgerecht abgegebene Stellungnahmen können bei der Beschlussfassung über den Bauleitplan unberücksichtigt bleiben.

Der Geltungsbereich und die zeichnerischen Festsetzungen des Vorentwurfes sind in den beigefügten Lageplänen dargestellt. Die Pläne sind unverbindlich und dienen nur der ersten Information. Der rechtsverbindliche Geltungsbereich und die Festsetzungen des Vorentwurfes ergeben sich aus dem Original des Bebauungsplans, bzw. aus der Anlage des Stadtratsbeschlusses.

Lageplan Geltungsbereich B-Plan 50 „Rüssen-Kleinstorkwitz, Erweiterung Gartenstraße“

Parallel zur frühzeitigen Öffentlichkeitsbeteiligung erfolgt entsprechend § 4 Abs. 1 BauGB die Beteiligung der Behörden und sonstigen Träger öffentlicher Belange, deren Aufgabenbereich durch die Planung berührt werden kann, auch im Hinblick auf den erforderlichen Umfang und Detaillierungsgrad der Umweltprüfung nach § 2 Abs. 4 BauGB.

Den offengelegten Unterlagen ist ein Datenschutzhinweis beigefügt.

Holger Schulz
Bürgermeister