Titel Logo
Amtskurier des Amtes Treptower Tollensewinkel
Ausgabe 2/2024
Amtliche Bekanntmachungen
Zurück zur vorigen Seite
Zurück zur ersten Seite der aktuellen Ausgabe

Amtliche Bekanntmachung

Betr.:

2. Änderung des Flächennutzungsplans der Gemeinde Gnevkow

hier:

Bekanntmachung des Aufstellungsbeschlusses sowie der frühzeitige Öffentlichkeitsbeteiligung gemäß § 3 Abs. 1 BauGB

Die Gemeindevertretung der Gemeinde Gnevkow hat in öffentlicher Sitzung vom 22.03.2023 die Erstellung einer 2. Änderung des Flächennutzungsplanes beschlossen. Der Beschluss der Aufstellung der Flächennutzungsplanänderung wird gemäß §2 Abs. 1 BauGB hiermit bekannt gemacht.

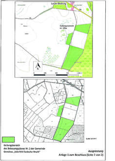
Der Änderungsbereich beläuft sich auf die Planungsräume A) zwischen den Ortslagen Gnevkow und Letzin, östlich der Bahnstrecke Berlin-Stralsund sowie B) südlich der Ortslage Letzin-Siedlung und umfassen eine Fläche von A) 48 ha sowie B) von ca. 22ha. Die Geltungsbereiche beinhalten nachstehende Flure und Flurstücke:

A)

In der Gemarkung Gnevkow, Flur 2 die Flurstücke 139/2, 144/1, 186 und 189 (jeweils teilweise); die Flurstücke 187, 188, 190, 191, 192, 193, 194, 195, 196, 197, 198, 199, 201, 202, 203/1, 204 und 205 sowie in der Gemarkung Letzin, Flur 2 die Flurstücke 134, 151/2 und 169 (jeweils teilweise) und die Flurstücke 136, 150, 152, 153,

154, 155, 156, 157, 158, 159, 160, 161, 162, 163, 165, 166 und 282 sowie

B)

in der Gemarkung Letzin, Flur 4 die Flurstücke 9/2 und 15 (beide teilweise) sowie die Flurstücke 12 und 13.

Planungsziel ist die Änderung des Flächennutzungsplans im Parallelverfahren zum Bebauungsplan Nr. 2 „Solarfeld Tacksche Bruch" sowie zum Bebauungsplan Nr. 1 „Solarfeld am Pappelberg" der Gemeinde Gnevkow gemäß § 8 Abs. 3 BauGB.

Die gemäß § 3 Abs. 2 BauGB vorgesehene Unterrichtung der Öffentlichkeit soll in Form einer öffentlichen Auslegung durchgeführt werden. Dazu liegt der Vorentwurf der 2. Änderung des Flächennutzungsplanes, der in der Gemeindevertretersitzung der

Gemeinde Gnevkow am 27.09.2023 gebilligt wurde, mit dem Stand vom 21.08.2023 mit deren Begründung in der Zeit vom

12.02.2024 bis einschließlich 15.03.2024

im Amt Treptower Tollensewinkel, Bauamt, Rathausstraße 1, 17087 Altentreptow während folgender Zeiten öffentlich aus:

montags

von 9:00 - 16:00 Uhr

dienstags

von 9:00 - 18:00 Uhr

mittwochs

von 9:00 - 16:00 Uhr

donnerstags

von 9:00 - 16:00 Uhr

freitags

von 9.00 - 12:00 Uhr

(außerhalb dieser Zeiten nach Vereinbarung)

Zusätzlich können die Planunterlagen des Vorentwurfes auf der Homepage des Amtes Treptower Tollensewinkel https://www.altentreptow.de/Amt-Gemeinden/Gemeinden-

von-A-G/Gnevkow/Bekanntmachungen-br-Ortsrecht/ eingesehen werden.

Während des Auslegungszeitraumes können von jedermann Stellungnahmen zur 2.Änderung des Flächennutzungsplanes der Gemeinde Gnevkow vorgebracht werden.

Diese werden in die weitere Planung einfließen. Es wird darauf hingewiesen, dass nicht innerhalb der Auslegungsfrist abgegebene Stellungnahmen bei der Beschlussfassung über den Bebauungsplan unberücksichtigt bleiben können.

Gnevkow, den 17.01.2024
Bürgermeisterin

(Dienstsiegel)