Titel Logo
Amtskurier des Amtes Treptower Tollensewinkel
Ausgabe 4/2023
Amtliche Bekanntmachungen
Zurück zur vorigen Seite
Zurück zur ersten Seite der aktuellen Ausgabe

-Amtliche Bekanntmachung- Betr.: Bebauungsplan Nr. 2 „Solarfeld Tacksche Bruch“ der Gemeinde Gnevkow hier: Bekanntmachung der frühzeitigen Öffentlichkeitsbeteiligung gemäß § 3 Abs. 1 BauGB

Betr.: Bebauungsplan Nr. 2 „Solarfeld Tacksche Bruch“ der Gemeinde Gnevkow

hier:

Bekanntmachung der frühzeitigen Öffentlichkeitsbeteiligung gemäß § 3 Abs. 1 BauGB

Die Gemeindevertretung der Gemeinde Gnevkow hat in der Sitzung am 01.03.2023 die Aufstellung des Bebauungsplans Nr. 2 „Solarfeld Tacksche Bruch“ beschlossen. Eine Umweltprüfung wird durchgeführt.

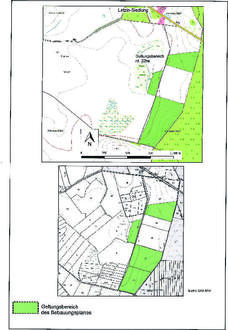
Der räumliche Geltungsbereich des Bebauungsplans beläuft sich auf eine Fläche von insgesamt ca. 22 ha und ist dem als Anlage 1 beigefügten flurstücksbezogenen Lageplan zu entnehmen. Er umfasst in der Gemarkung Letzin, Flur 4 die Flurstücke 9/2 und 15 (beide teilweise) sowie die Flurstücke 12 und 13.

Die gemäß § 3 Abs. 1 BauGB frühzeitige Unterrichtung der Öffentlichkeit soll in Form einer öffentlichen Auslegung durchgeführt werden. Dazu liegt der Vorentwurf des Bebauungsplans Nr. 2 „Solarfeld Tacksche Bruch“ mit Stand Februar 2023 mit der Begründung in der Zeit vom

17.04.2023 - 19.05.2023

im Amt Treptower Tollensewinkel, Bauamt, Rathausstraße 1, 17087 Altentreptow während folgender Zeiten öffentlich aus:

montags

von 9:00 - 16:00 Uhr

dienstags

von 9:00 - 18:00 Uhr

mittwochs

von 9:00 - 16:00 Uhr

donnerstags

von 9:00 - 16:00 Uhr

freitags

von 9.00 - 12:00 Uhr

(außerhalb dieser Zeiten nach Vereinbarung)

Zusätzlich können die Planunterlagen des Vorentwurfes auf der Homepage des Amtes Treptower Tollensewinkel https://www.altentreptow.de/Amt-Gemeinden/Stadt-Altentreptow/Bekanntmachungen-Ortsrecht/ eingesehen werden.

Während des Auslegungszeitraumes können von jedermann Stellungnahmen zum Bebauungsplan Nr. 2 „Solarfeld Tacksche Bruch“ vorgebracht werden. Diese werden in die weitere Planung einfließen. Es wird darauf hingewiesen, dass nicht innerhalb der Auslegungsfrist abgegebene Stellungnahmen bei der Beschlussfassung über den Bebauungsplan unberücksichtigt bleiben können.

Delies
Bürgermeisterin

Anlage 1

Quelle: GAIA M-V

Geltungsbereich des Bebauungsplanes